Zwei Häuser in Oropesa
Paredes Pedrosa Arquitectos

NEUES LEBEN IN RUINEN
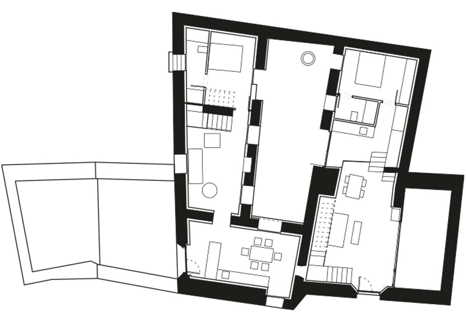
Unter jahrhundertealten Bögen entstanden zwei Wohnhäuser aus den Ruinen ihrer Vorgänger, die Bezug auf die Geschichte ihrer Umgebung nehmen und dennoch hohen Wohnkomfort bieten.
Oropesa liegt am Fuße der Sierra de Gredos. Von hier aus hat man einen grandiosen Blick über schneebedeckte Berggipfel und Olivenhaine. Die Kleinstadt ist bekannt für ihre Burg aus dem Jahr 1402. Sie sollte über nie fertiggestellte Arkaden mit der Kirche Nuestra Señora de la Asunción verbunden werden. In diesen aus Bögen und Mauern bestehenden Arkaden, die die Stadt durchkreuzen, sind die Häuser verborgen. Zunächst waren es drei kleine Häuser. Hinter der Fassade, die über Jahre unverändert erhalten blieb und durch große Backsteinbögen geprägt ist, lagen ursprünglich zwei Innenhöfe. Die wenigen Fenster sorgten nur unzureichend für Luftzirkulation und Lichteinfall. Da eine Vorgabe des Projekts in der Erhaltung der Fassade bestand, schuf man im Inneren einen langen und breiten Hof, an dessen Seiten die beiden ungleichen Häuser für die Geschwister gestaltet wurden.
Dieser längslaufende Innenhof gibt nun einen wunderbaren Blick auf den Kirchturm aus dem 16. Jahrhundert frei. Durch den Hof werden die Gebäude zudem mit viel natürlichem Licht durchflutet. Beide Häuser sind zum zentralen Hof hin geöffnet, eines der Häuser hat zudem einen kleinen privaten Innenhof. Die alten Mauern bestehen aus einem unregelmäßigen Mix aus Back- und Natursteinmauerwerk, genannt „Aparejo Toledo“. Die zum Teil stark beschädigten Sockelbereiche des Mauerwerks sowie der Hofboden wurden mit einem Gitter aus Ziegelriemchen überzogen, das als verstärkende Deckschicht dient. Die restaurierten Wände wurden weiß gestrichen passend zu den sandsteinfarbenen Backsteinen.
Paredes Pedrosa Arquitectos