Weltquartier
Gerber Architekten

Kraftvolles Tor zum Viertel
Zwei Neubauten in Hamburg-Wilhelmsburg vervollständigen das neue „Weltquartier“ und markieren mit ihrer eigenständigen Architektursprache gleichzeitig ein Tor zum Stadtviertel.
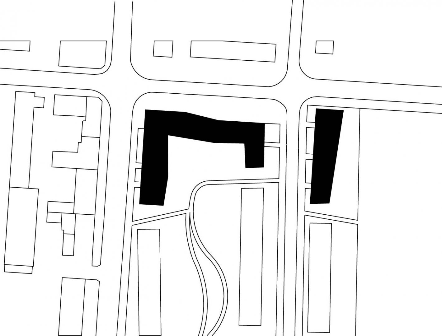
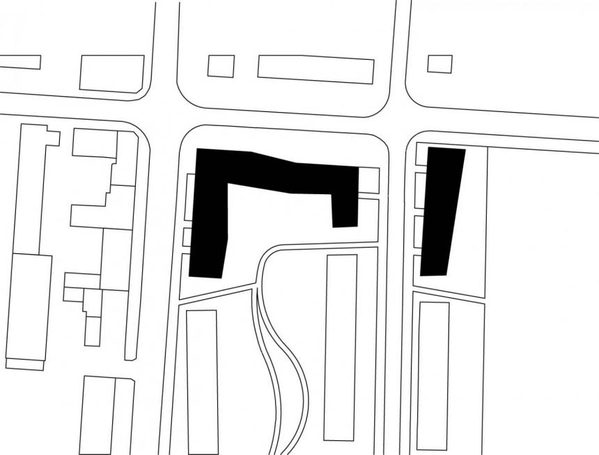
Im Rahmen der Internationalen Bauausstellung [IBA] 2013 entstand im Hamburger Stadtteil Wilhelmsburg das „Weltquartier“ – ein Modellprojekt für interkulturelles und zukunftsfähiges Wohnen für mehr als 1.700 Bewohner aus unterschiedlichen Ländern. Die ehemalige Arbeitersiedlung aus traditionellen roten Backsteinbauten in Zeilenbauweise wurde durch zwei Neubauten – bestehend aus dem westlich gelegenen U-Haus und dem östlich gelegenen T-Haus – ergänzt, die die Siedlung in ihrer städtebaulichen Struktur schließen. Von der Qualität und den baulichen Grundelementen des Bestandes inspiriert, interpretieren die beiden Kopf bauten diese in einer eigenständigen Architektursprache mit skulpturalen Formen neu, verknüpft mit den Anforderungen an ein energetisch hocheffizientes Passivhaus.
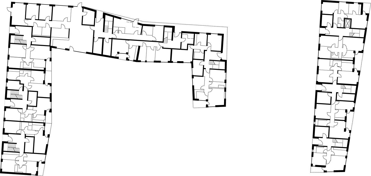
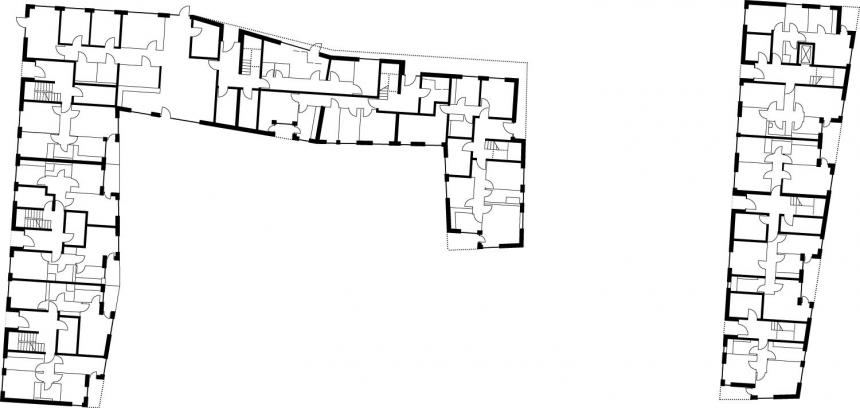
Die Einheitlichkeit des Gesamtquartiers wird dabei besonders durch den Einsatz des mit dem Bestand harmonisierenden Backsteins betont und gestärkt, der auf typische hanseatische Art, reliefartig, mit Vor- und Rücksprüngen akzentuiert eingesetzt und als zweischaliges, kerngedämmtes Mauerwerk ausgeführt wurde. Der Entwurf orientiert sich zudem an den jeweiligen Gebäudefluchten und -höhen der Bestandsbebauung sowie an dem benachbarten Energiebunker und führt auch das Thema der geneigten Dachform des Bestandes fort. Mit ihrer asymmetrischen Satteldachlandschaft und ihren gelegentlichen Hochpunkten markieren die Neubauten das städtebauliche „Tor“ zum Weltquartier und dienen als Orientierung für die gesamte Umgebung. Die 75 öffentlich geförderten Wohneinheiten unterschiedlicher Größe und Wohnform – vom Zweizimmer-Single-Appartement bis hin zur Vierzimmer-Familienwohnung – sorgen für einen abwechslungsreichen Wohnungs-Mix und fördern eine soziale Durchmischung des Weltquartiers.
Gerber Architekten