Holzsilo Plange Mühle Campus
ingenhoven architects

Vom Silo zum Loft
Aus einem denkmalgeschützten ehemaligen Getreidesilo im Düsseldorfer Hafen wurde ein neungeschossiges Loftgebäude. Der Charakter des Industriebauwerks blieb dabei überzeugend erhalten.
Anfang des 20. Jahrhunderts wurde an der Plange Mühle am Düsseldorfer Hafen das bekannteste deutsche Haushaltsmehl der Region produziert: das Diamant-Mehl. Zehn Jahre nach der Hamburger Gründung der Firma Georg Plange entstand in Düsseldorf 1906 die zweite Dampfmühle des Unternehmens. Das fünfteilige Gebäudeensemble, das damals aus einem Hauptgebäude mit adlergeschmücktem Turm, zwei Getreidesilos, Werkstätten und dem Obermüllerhaus bestand, wurde durch den Zweiten Weltkrieg, den Wiederaufbau sowie durch laufende Umbauten zur Produktionsanpassung stark verändert. Dennoch weisen einige Gebäudeteile wie das Holz- und Betonsilo, der Turm, die Werkstätten und das Obermüllerhaus die ursprüngliche Bausubstanz auf. Heute steht das gesamte Ensemble unter Denkmalschutz.
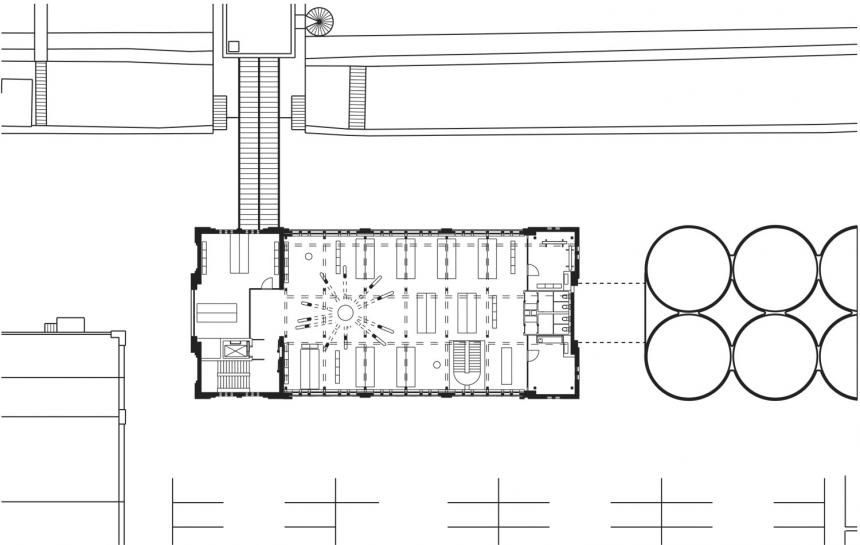
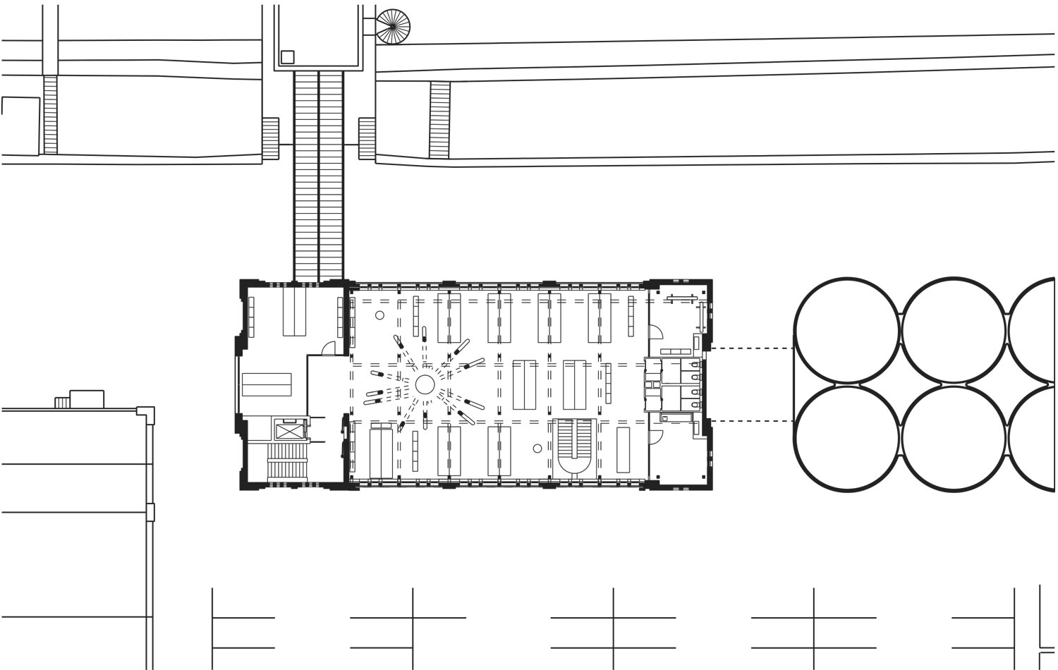
Das sogenannte Holzsilo, das seinen Namen den aus Holz bestehenden Vorratskammern im Inneren des Backsteingebäudes verdankt, wurde 1906 erbaut. 1929 wurden in einer einfachen kubischen Form die zylindrischen Betonsilos ergänzt. In den 90er-Jahren wurde der Standort als Mehlmühle aufgegeben und die Industriebrache in die Neuordnung des Düsseldorfer Medienhafens einbezogen. Die beiden Silogebäude auf dem Plange Mühle-Campus werden derzeit als Kreativstandort weiter ausgebaut, wiederbelebt und einer neuen Nutzung zugeführt. Das Holzsilo wurde 2016 in ein modernes Loftgebäude für neue Arbeitswelten transformiert und dient heute gewerblichen Nutzungen aus der Mode- und Medienbranche. Darüber hinaus bietet das Erdgeschoss Raum für gastronomische Einrichtungen und bindet den Standort in das soziale Umfeld zwischen Hafenbecken und Campus ein.
Die Umbauarbeiten an dem benachbarten Betonsilo werden voraussichtlich 2019 abgeschlossen sein. Das Holzsilo konnte mit seinen industriellen Bestandteilen nahezu vollständig erhalten werden und spiegelt in seiner äußeren und inneren Erscheinung den Charakter der Industriekultur wider. Durch das Entfernen der ursprünglichen Silozellen und das Einfügen von Geschossebenen gewinnt das Gebäude deutlich mehr Nutzfläche. Im äußeren Erscheinungsbild wird das Holzsilo von dem Wechsel zwischen Backstein- und Putzflächen geprägt. Über den Backsteinsockel wird der Bereich der ehemaligen Silozellen gekennzeichnet durch fast gebäudehohe Rundbogenfenster. Der Erhalt und die Sanierung der ursprünglichen Fassade, Gitterfenster, Bestandswände, Brücke, Bögen und des Turms in enger Zusammenarbeit mit dem Denkmalschutz standen bei dem Projekt besonders im Fokus.
Im Inneren des alten Backsteingebäudes waren die Silozellen in Holz erstellt, die sich im Außenbau durch runde Telleranker andeuten. Der Innenteil des Silos, das Dach und die Putzfelder wurden sensibel zurückgebaut. Die „Fehlstellen“ in der Fassade, die Granatsplitter aus dem Zweiten Weltkrieg enthält, machen die Zeichen der Zeit ablesbar. Die östliche Zweiturmfront wurde ursprünglich durch einen turmartigen Aufsatz im Westen ergänzt. Die Aufbauten wurden jedoch nach dem Zweiten Weltkrieg in schlichten, kubischen Backsteinformen erneuert. Zum Silogebäude gehört ein Schiffselevator, der am ursprünglichen Standort 1949 als turmförmiger Backsteinbau erneuert wurde.
ingenhoven architects