Empfangsgebäude Drägerwerk

Max Dudler

Empfangsgebäude Drägerwerk

Reminiszenz an das alte Lübeck

Gekonnt greift das Empfangsgebäude des Drägerwerks in Lübeck Elemente des norddeutschen Backstein-Expressionismus auf und übersetzt sie virtuos in die Gegenwart.

 

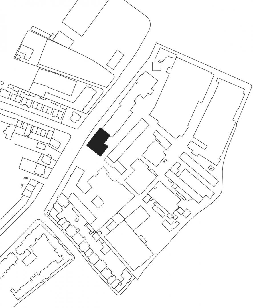
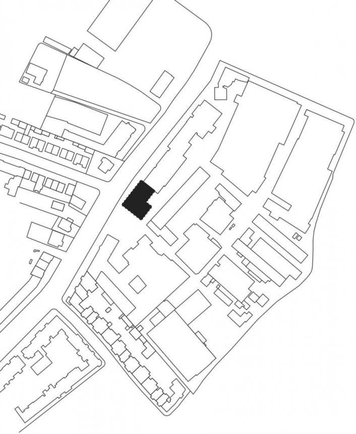
Mit dem neuen Empfangsgebäude erhält die Zugangssituation zum Hauptsitz des Unternehmens Dräger in Lübeck ein neues Gesicht. An der Stelle des Werktors, das noch zu Beginn des 20. Jahrhunderts das Unternehmen vom öffentlichen Raum der Stadt trennte, definiert das Gebäude einen dreiseitig gefassten, zur Straße hin geöffneten Platz. Der öffentliche Platzraum will die Verbindung des Unternehmens mit der Stadt Lübeck unterstreichen und gibt zugleich den Blick auf das zentrale Unternehmens-Ensemble im Inneren frei. Neben dem neuen Empfangsgebäude umschließen zwei weitere Gebäude aus unterschiedlichen Epochen der Werksgeschichte den Platz. Diese kleine Unternehmensgeschichte in Form eines städtebaulichen Panoramas wird durch die leichte Verdrehung des Empfangsgebäudes zum gegenüberliegenden Haus raffiniert eröffnet.

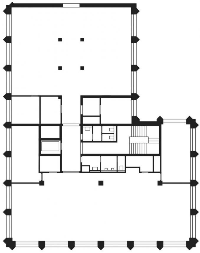
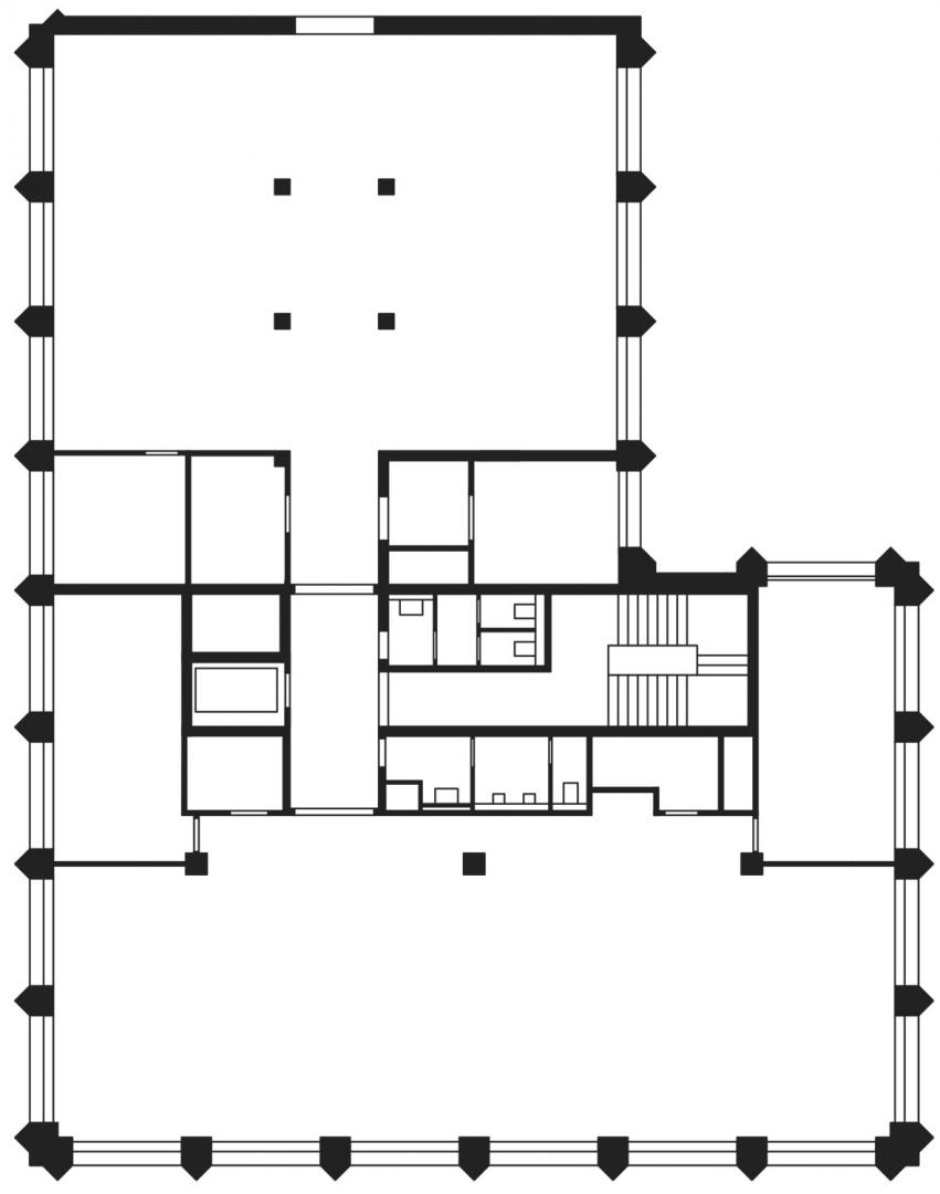
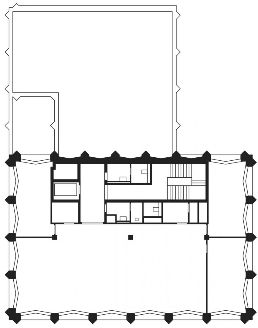
Um das Gebäude in Beziehung zur Architektur der Stadt Lübeck und ihrer Geschichte zu setzen, greift der Ziegelbau Elemente der baukünstlerischen Tradition Norddeutschlands auf und überträgt sie in eine zeitgenössische Sprache. Die mit Backstein verkleideten Fassadenstützen sind lisenenartig über die gesamte Höhe des Hauses geführt und als nach vorne spitz zulaufende Pfeiler ausgeführt. Die Tragstruktur bildet sich in Form von über alle Stockwerke laufende Pilaster auf der Fassade ab. Zwischen den Lisenen sind außergewöhnlich großzügige, rahmenlose Fensterflächen angeordnet. In den beiden oberen Geschossen sind diese Fenster nach innen hin leicht geknickt, wodurch eine konische Wirkung entsteht. Der obere Abschluss des Gebäudes bildet durch diese Faltung eine Krone, wie sie typisch für den norddeutschen Backsteinexpressionismus ist. Das Empfangsgebäude ist einer der ersten Bauten in Deutschland, der mit einer Closed-Cavity-Fassade ausgestattet ist.

Die zweischalige Fassade mit komplett geschlossenem Zwischenraum ermöglicht eine vollständig kontrollierte Lüftung und reduziert den Energieverbrauch auf ein Minimum. Der Zwischenraum wird mechanisch gelüftet, wodurch keine Kondensation stattfindet und auch der Reinigungsaufwand minimiert wird. Für die Fassade wurden Wasserstrichziegel verwendet, die ihr einen rauen, handwerklichen Charakter verleihen. Insbesondere durch die Kombination aus sehr großen, abstrakten Glasscheiben und den handwerklich bearbeiteten Backsteinen stellt das Gebäude eine Beziehung zwischen der langen Tradition der Firma Dräger einerseits und ihrer Zukunftsgewandtheit andererseits her. Es ist ein modernes Gebäude entstanden, dessen Architektur zugleich das Traditionsbewusstsein des Unternehmens und der Stadt spiegelt. Der Neubau umfasst auf acht Stockwerken insgesamt 3.150 Quadratmeter Nutzfläche und bietet Platz für bis zu 200 Arbeitsplätze.

 

Max Dudler

City
Lübeck, Deutschland
Client
Drägerwerk AG & Co. KGaA
Architect profile
Plot size
4.900 m²
Built-up area
4.900 m²
Usable area
3.150 m²
Enclosed volume
21.000 m³
Construction time
2013 – 2015
Construction costs
11,5 Mio. EUR