The Wedge

A-lab

The Wedge

Ikonische Backstein-Kuben

Das elfgeschossige Projekt „The Wedge“ steht mit seiner rauen Backsteinfassade und seinen Kuben in scharfem Kontrast zu den anderen Hochhäusern des Osloer Stadtviertels Barcode.

 

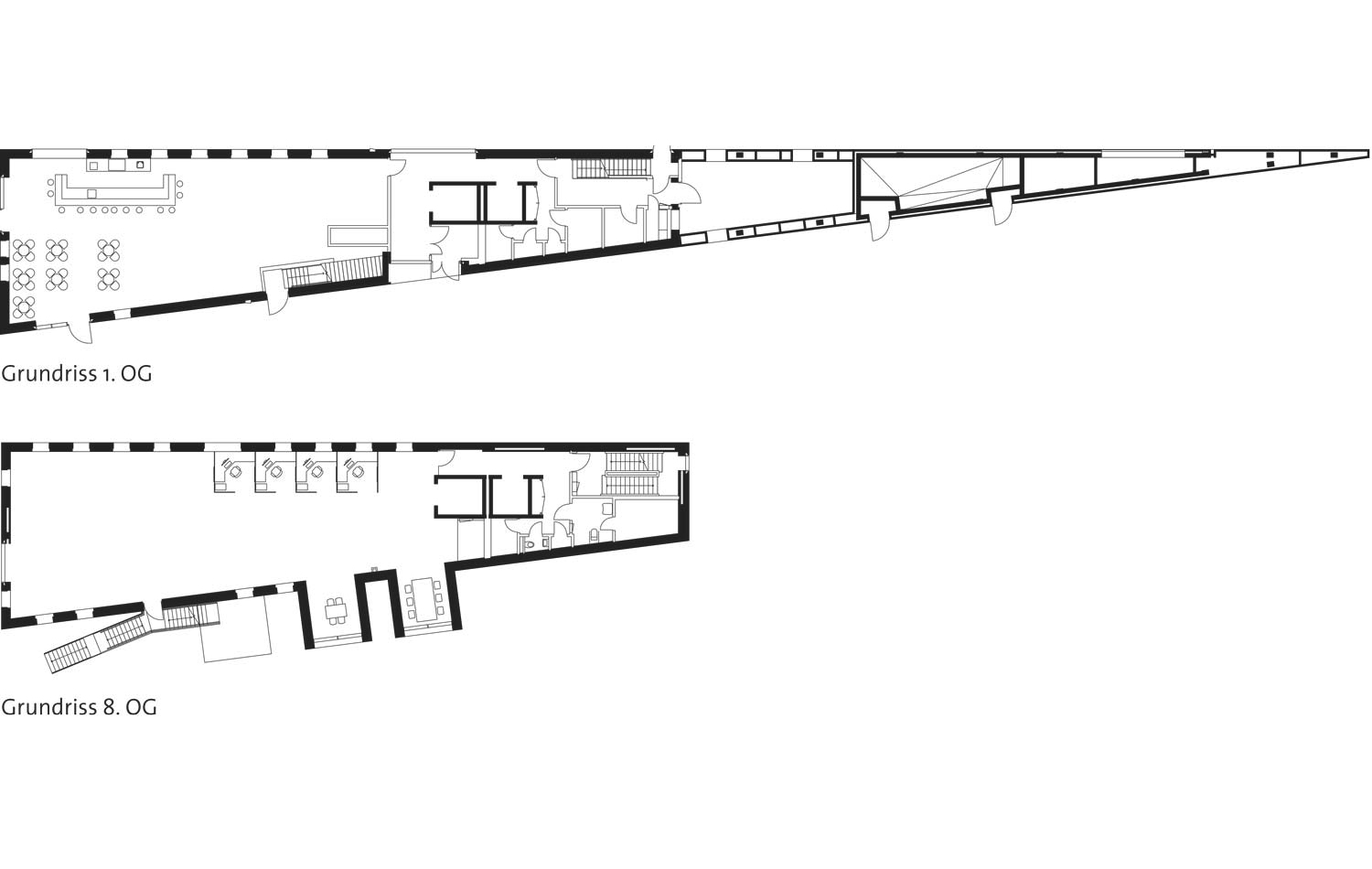
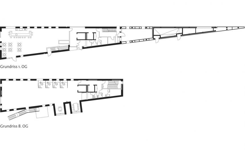
Dieses elfstöckige Gebäude ist das östlichste der 13 Häuser des Barcode-Projekts und wurde als letztes fertiggestellt. Da es auf einem schmalen, keilförmigen Grundstück errichtet wurde, haben seine Büros nur eine Breite von fünf bis zehn Metern. Jede Büroetage verfügt über Konferenzräume, die freitragend aus der östlichen Fassade herausragen. Durch diesen platzsparenden Kniff gewinnt die Architektur des Gebäudes besondere Lebendigkeit. Zwischen den Konferenzraumboxen schlängelt sich eine Außentreppe/Feuerleiter die Fassade empor und unterstreicht die ikonische und bildhauerische Anmutung des Gebäudes. Mit Blick auf den Middelalderparken im Osten und Oslofjord im Süden bildet es einen würdigen Abschluss der langen Reihe an Fassaden des Barcode-Projekts.

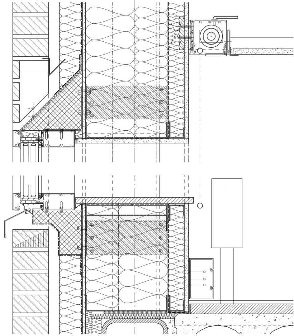
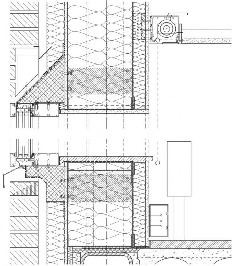
Offene Flächen ohne Stützpfeiler geben den Mietern ein hohes Maß an Flexibilität und sichern allen Mitarbeitern ein lichtdurchflutetes und luftiges Arbeitsumfeld. Bodentiefe Fenster bringen viel Tageslicht in die Räume und eröffnen eine spektakuläre Aussicht auf den Höhenzug Ekeberg im Osten, den Oslofjord im Süden und die Bjørvika-Bucht im Westen. Die rohe Backsteinfassade schafft einen beeindruckenden Kontrast zu den anderen Barcode-Gebäuden und fügt dem Stadtviertel ein interessantes visuelles Element hinzu. Im Dachgarten herrschen attraktive immergrüne Sedum-Stauden vor. Im gesamten Bauprozess wurden beständige, umweltfreundliche Materialien und Produkte verwendet. Hauptsächlich kamen Ziegel, Stahl und Holz zum Einsatz, und in Bezug auf Material und Verarbeitung wurde auf höchste Qualität geachtet.

Beim Design der Büroflächen wurde besonderes Augenmerk auf eine effiziente Flächennutzung gelegt sowie darauf, den Nutzern des Gebäudes häufige informelle Kontakte zu ermöglichen: Es gibt einen gemeinsamen Aufzug mit direktem Zugang zu den Empfangs- und Arbeitsflächen. Die Außentreppe/Feuerleiter ist perfekt dafür geeignet, ungezwungene Gespräche zu führen oder frische Luft zu schnappen. Außerdem stellt sie eine alternative Verbindung zwischen den einzelnen Etagen dar und ermöglicht den Zugang zu den Gemeinschaftsbereichen in den obersten Stockwerken. Die wichtigsten Treffpunkte sind das gemeinsame Restaurant und die Lounge im 10. Stock sowie die Dachterrasse im 11. Stock, von der aus sich ein wunderbarer Blick auf Oslo und den Fjord eröffnet. Im Untergeschoss befinden sich Duschen, Garderoben, Lagerräume, Fahrradabstellmöglichkeiten, Parkplätze sowie Ladestationen für Elektroautos.

Diese Einrichtungen sollen Anreize für ein umweltfreundliches Pendeln zum Arbeitsplatz schaffen. Das einladende öffentliche Restaurant im Erdgeschoss zieht Fußgänger an und stellt eine Verbindung zwischen dem Gebäude und der lokalen Bevölkerung her. Eines der Hauptziele dieses Bürogebäudes ist es, kleinen, innovativen Unternehmen die Möglichkeit zu geben, sich im Barcode – Oslos neuem zentralen Geschäftsviertel – anzusiedeln. Die Räumlichkeiten sind maßgeschneidert für kleinere Firmen mit 15 bis 35 Mitarbeitern, die alle auf einer Etage arbeiten sollen. Ein gesunder Unternehmensmix wird die Zusammenarbeit zwischen den unterschiedlichen Berufsgruppen anregen und damit Innovationen befeuern. So fördert dieses mittelgroße Gebäude die Vielfalt letztendlich sogar stärker, als dies bei vielen der großen, multinationalen Unternehmen der Fall ist, deren Büros sich in der Nähe befinden.

 

A-lab

City
Oslo, Norwegen
Client
Oslo S Utvikling/Vedal
Architect
A-lab
Plot size
500 m²
Built-up area
470 m²
Usable area
3.200 m²
Enclosed volume
15.300 m³
Construction time
2015 – 2016
Construction costs
ca. 18 Mio. EUR