Ehemaliges Kloster S. Maria in Gonzaga

LR-architetti

Ehemaliges Kloster S. Maria in Gonzaga

Altes Kloster trifft auf Gegenwart

Durch die Verbindung zwischen Alt und Neu wird ein Veranstaltungsort geschaffen, der Geschichte erzählt und erlebbar macht. Hinzugefügte neue Elemente ergänzen den Bestand.

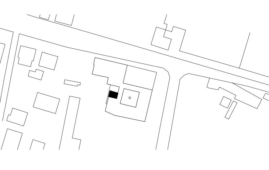
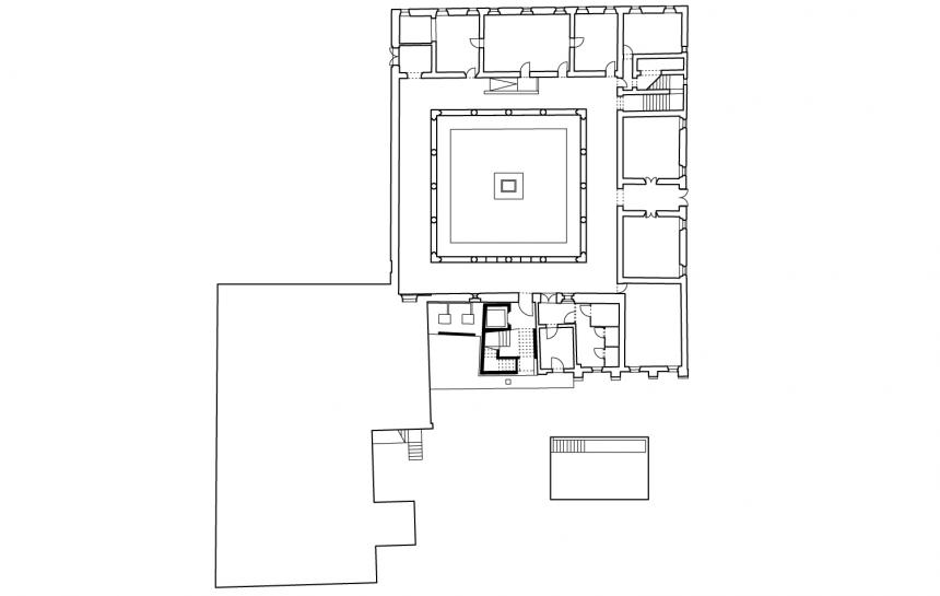
Die Adaptation des ehemaligen Klosters von Santa Maria ist ein Beispiel von Stadterneuerung durch Anpassung von einem öffentlichen Gebäude der behindertengerechten Zugänglichkeit. Das Projekt für ein ehemaliges Kloster aus dem späten 15. Jahr-hundert in der Gemeinde Gonzaga (Mantua, Italien) vornimmt die Umnutzung einige Räume an den zwei Etagen des Baukomplexes, wo die Stadtbücherei schon aufgestellt ist, sowie der Neubau eines zusätzlichen Treppenhauses, das als Notausgang benutzt werden kann. Dieser Neubau wird an die Nordflügel des Komplexes hinzugefügt, so dass ein moderner Kopfbau für das alte Gebäude entsteht.

Der turmartige Block ersetzt eine alte Stahlfeuerleiter, die in einer Baulücke nach außen früher aufgestellt worden war. An dieser Stelle wird eine massive Konstruktion aus Sichtbeton eingesetzt, die die Treppe und einen behindertengerechten Fahrstuhl beherbergt, und nach außen mit Ziegelfliesen bezogen ist. Dieser Kopfbau beendet den Nordtrakt der ursprünglichen Klosterfassade, die durch vier etwa gleich weit entfernte Mauerstützen gekennzeichnet ist. Der Neubau übernimmt teilweise den Rhythmus der alten Flügel, unterscheidet sich aber durch die freie Verlegung der Fenster, die die Lage der inneren Treppenabsätze zeigen. Somit werden die Konfiguration der Treppe und die Natur der äußeren Beschichtung offen gelegt. Die Verwendung von Ziegelfliesen anstatt Ziegel ergibt ein Verhältnis zwischen Ziegelhöhe und Mörtel von etwa zwei zu eins, sodass das Aussehen eines alten Mauerwerks entsteht, und ein Dialog mit dem ursprünglichen Gebäude erfolgt. Hierzu wirkt das Eckfenster besonders auffällig.

Von innen aus ermöglicht das Fenster Ausblicke zur Ruine der naheliegenden Kirchenapsis und lässt zugleich auf den Treppeninnenraum schauen. Im Außenbereich wird das Projekt durch einfache Aufschüttung mit Kies der anliegenden Freiflächen und durch Einsetzung eines kleineren Mauertrakts nach Osten, um einigen Klima anlagen abzuschirmen, abgerundet. Somit wird ein neuer Eintrittsplatz zum Baukomplex und zu den angrenzenden grünen Freiflächen erschaffen. Ein durch Ziegel gepflasterter Haupteingangsplatz vor dem östlichen Trakt des Klosters wartet noch auf Realisierung. Mit konsequenter Einfachheit werden die kleineren Einrichtungs- und Baumaßnahmen im Inneren des Klosterbaues geschaffen. Einige gewölbte Säle im Erdgeschoss sind jetzt als Ausstellungsräume benutzt durch Einsatz von mobilen, mit braunem Linoleum beschichtetem Sperrholzpaneelen, die auf einem Stahlgestell gehalten sind. Hölzerne Rampen als neue Einrichtungselemente überwinden die Höhenunterschiede zwischen Kreuzgang und Ausstellungsräumen am Erdgeschoss und zwischen Korridor und Lesesälen am Obergeschoss, wo neue Service- und Toilettenräume in der umgebauten ehemaligen Hausmeisterwohnung Platz finden. Die Außenseiten der Rampen bilden niedrige Regale, um zur Präsentation von Zeitschriften, Flyern und Programmankündigungen ebenso zu dienen wie als kleine temporäre Sitzbänke für die Besucher.

 

LR-architetti

City
Gonzaga, Italien
Client
Gemeinde Gonzaga
Architect profile
Plot size
187 m²
Built-up area
32 m²
Usable area
187 m²
Enclosed volume
235 m³
Construction time
2014 – 2015
Construction costs
230.000 EUR