Boarding Haus mit Hotel am Michel

Wandel Lorch Architekten

Boarding Haus mit Hotel am Michel

Tradition Zeitgemäss Interpretiert

Staffelgeschosse, weiche Konturen und geschosshohe Bänder bilden beim Boarding Haus am Michel einen plastischen Baukörper heraus. Hell glasierte Backsteine lockern die Fassade weiter auf.

 

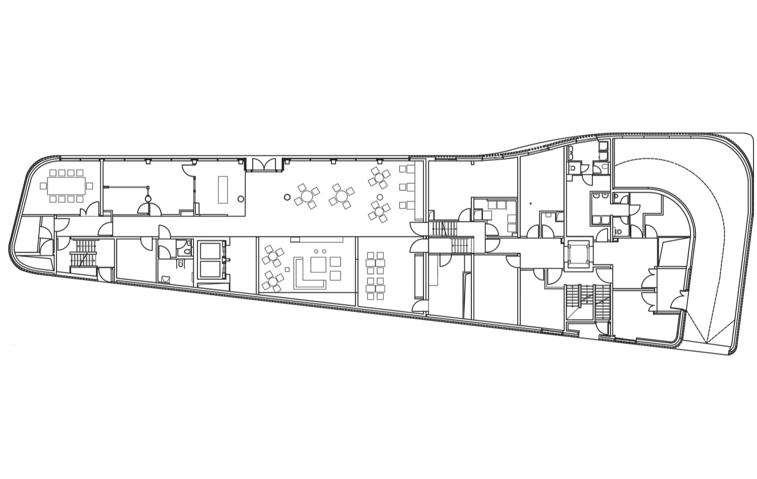
Beim Boarding Haus und Hotel am Michel werden die grundsätzliche Kubatur, Höhenentwicklung, Grundrissgestaltung und Raumausnutzung beibehalten. Die vorgegeben Volumina werden durch präzise geometrische Operationen verändert und damit gestalterisch aufgewertet. Die Konturen des Gebäudes werden weich. Der Baukörper wird zu einer homogenen, durch Backstein geprägten Figur, die mit subtilen Gestaltungsmitteln akzentuiert wird. Das Entwurfskonzept basiert auf horizontalen, geschosshohen Bändern, die sich an drei strategisch wichtigen und prominenten Bereichen leicht voneinander absetzen. Eingang und Foyer springen zurück und schaffen eine einladende, öffentliche Situation.

Die Klinkerfassade wird zugunsten einer Glasfassade zurückgenommen und öffnet sich zum städtischen Raum. Aus dem geometrischen Prinzip der Verschiebung von Geschossen entwickelt sich ebenso die Logik der Staffelgeschosse – und damit auch eine attraktive fünfte Fassade. Die dem Michel zugewandte Ecke zeigt eine minimale Verschiebung der einzelnen Geschosse, so dass der Baukörper an dieser stadträumlich prominenten Situation mit zurückhaltenden Mitteln akzentuiert wird. In der Wahrnehmung entsteht eine subtile Veränderung von Licht, Schatten und Blickbeziehungen.

Die Materialstrategie vereint unterschiedliche architektonische Maßstäbe: das Detail und die städtebauliche Dimension. Das Boarding-Haus und Hotel am Michel soll Teil der Stadt sein und zugleich für eine zeitgemäße Interpretation eines städtischen Gebäudes stehen. In der Tradition von hamburgischen Architekturen wie Fritz Högers Chilehaus wird eine architektonische Kubatur durch den Versatz von einzelnen Klinkerformaten entwickelt. Entsprechend dem Leitbild des „roten Hamburgs“ wird roter Backstein eingesetzt. In einer Variation des roten Klinkers werden hell glasierte Ziegel in der Fassade eingestreut, analog zur Baukörperhöhe mit zunehmender Anzahl. Durch diesen vertikalen Verlauf löst sich das Gebäude gewissermaßen nach oben hin auf und strahlt trotz seiner Baumasse visuelle Leichtigkeit aus.

 

Wandel Lorch Architekten

City
Hamburg, Deutschland
Client
GBI Hamburg Teilfeld GmbH & Co. KG
Architect profile
Plot size
1.050 m²
Built-up area
ca. 930 m²
Usable area
ca. 5.700 m²
Enclosed volume
ca. 130.930 m³
Construction time
2011 – 2013
Construction costs
12 Mio. EUR