Alters- und Pflegeheim Rosenhügel
blgp architekten

Der helle Backstein verbindet
Der Erweiterungsbau des Pflegeheims ist geprägt durch seine helle Fassade mit weiß gedämpftem Wasserstrich-Ziegel aus Kohlebrand. Der Backstein der Außenfassade wird bis in die Kapelle fortgeführt.
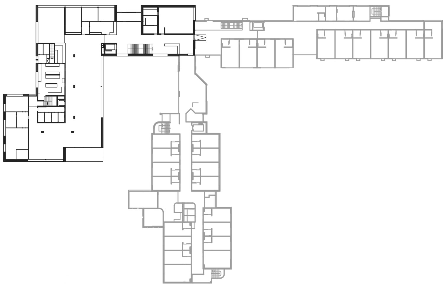
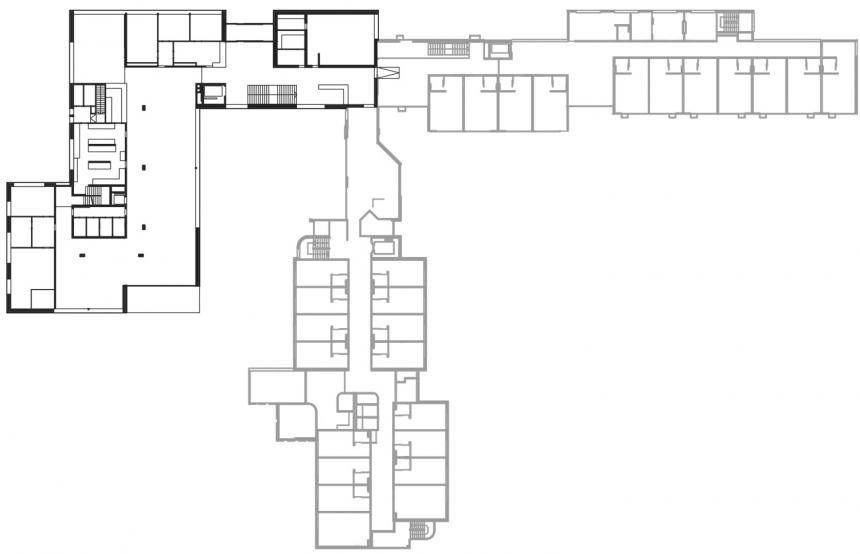
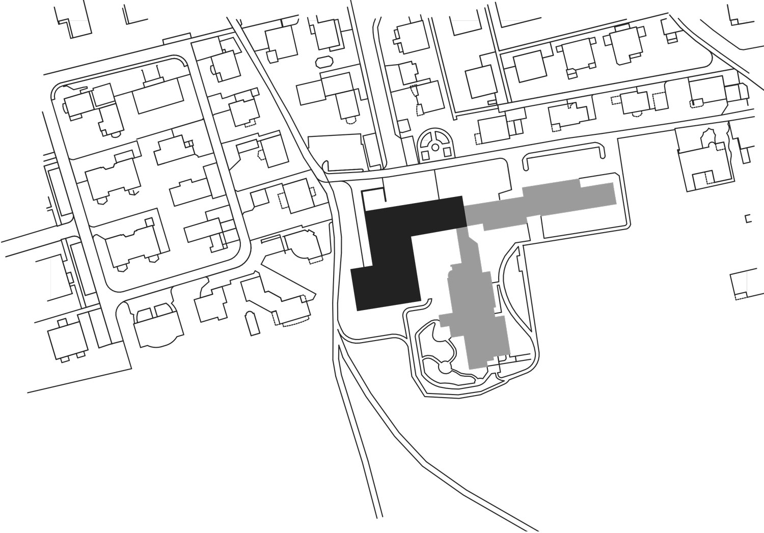
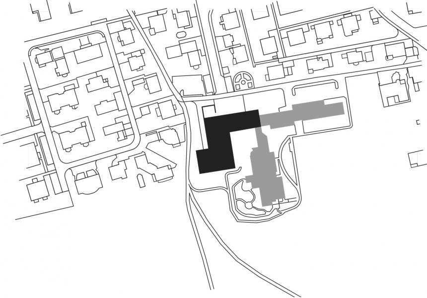
Das Haus Rosenhügel der Residio AG wurde im Laufe seiner Geschichte mehrfach erweitert. Ursprünglich bestand es aus den drei Bauteilen Ost-, Süd- und Westtrakt, die über den Mittelbau miteinander verbunden waren. Der Mittelbau mit den zentralen Einrichtungen verknüpfte die einzelnen Pflegeabteilungen. Ein Neubau ersetzt den ältesten Bauabschnitt im Westen, da dieser weder die heutigen Anforderungen an die Altenpflege noch den gesteigerten Bedarf an Pflegezimmern weiterhin erfüllen konnte. Mit dem Rückbau des Westtraktes und des Mittelbaus knüpft der winkelförmige Neubau an den verbliebenen Bestand an. Er schließt die städtebauliche Lücke im Norden und Westen und formuliert als Mitte der Anlage den neuen Innenhof zwischen Erweiterung und Altbau.
Im Erweiterungsbau liegt der neue Haupteingang zur Gesamtanlage, vom offenen Foyer aus werden alle neuen und bestehenden Pflegeabteilungen erschlossen. Sämtliche öffentliche Einrichtungen – Kapelle, Cafeteria, Speisesaal, Administration – liegen im Erdgeschoss des Neubaus. Zusätzlich befinden sich auf zwei Geschossen 38 neue Pflegezimmer. In Zusammenhang mit den Sanierungsarbeiten im bestehenden Gebäude wurde auch der Verbindungstrakt im Südflügel neu gestaltet. Es entstand ein zweiter Zugang zum Innenhof, das Erdgeschoss wurde zu einer neuen Demenzabteilung umgenutzt. Prägendes Element des Neubaus ist die Fassade, die mit einer Vorsatzschale aus Sichtmauerwerk gestaltet wurde. Der verwendete Backstein ist ein weiß gedämpfter Wasserstrich-Ziegel aus Kohlebrand.
Abgestimmt auf den Farbton der Ziegel wurden die Geschossplatten durch vorgefertigte Betonelemente mit Jurakalk-Zuschlägen akzentuiert. Der Ziegelstein der Außenfassade wird bei der Kapelle im Innenraum fortgeführt. Dadurch entsteht in diesem besonderen Raum der Andacht eine einmalige Atmosphäre. Die gesamte Anlage ist kompakt konzipiert und eröffnet dank den Panoramafenstern, gerade an den Flurenden, fantastische Ausblicke von jedem Punkt aus.
blgp architekten