Umbau und Aufstockung eines Industriedenkmals
Ernst Niklaus Fausch Partner AG
ZUKUNFTSFÄHIGE INDUSTRIEKULTUR
Nach Umbau und Aufstockung der unter Denkmalschutz stehenden ehemaligen MaggiFabrik ist der markante Backsteinbau bestens gerüstet, den Bogen vom Industriedenkmal in eine moderne Arbeitswelt zu schlagen.

Das ehemalige Industrieareal der Firma Maggi liegt entlang der Bahnlinie zwischen Winterthur und Zürich. Das Areal gilt mit seiner einheitlichen und markanten Backsteinarchitektur von Anfang des 20. Jahrhunderts als wichtiger Zeuge der industriellen Geschichte der Schweiz und ist als schützenswertes Ortsbild ISOS Typ A klassifiziert. Das Areal wird wiederbelebt, geöffnet und zu einem hochwertigen Arbeitsplatzgebiet ausgebaut.Ernst Niklaus Fausch Partner AG haben für das ehemalige Maggi-Areal den neuen Masterplan erstellt und darauf aufbauend den Gestaltungsplan entwickelt.
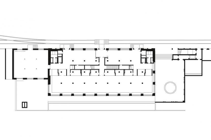
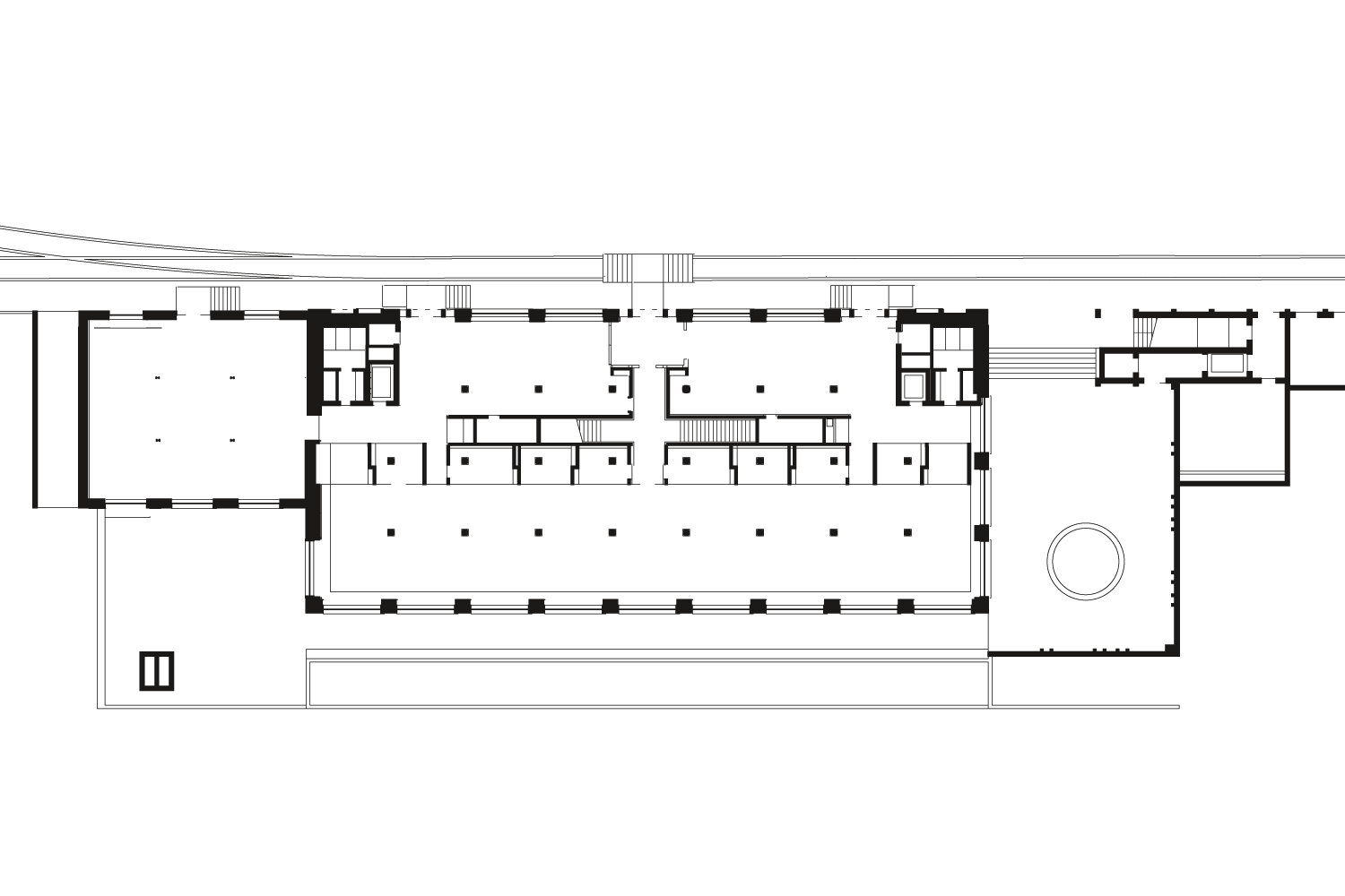
Das unter kantonalem Denkmalschutz stehende Gebäude Nr. 1246 – die ehemalige Suppenabfüllerei und Kistennaglerei von Maggi – ist ein markanter Backsteinbau mit eckbetonenden Treppenhauskernen. 1931 wurde das Gebäude von Debrunner+Blankart Architekten, welche als eigentliche „Hausarchitekten” einen Großteil des gesamten Maggi-Areals geplant haben, als Kistennaglerei erstellt. Bereits 1940 wurde das Gebäude von den gleichen Architekten um zwei Geschosse aufgestockt. Dabei wurden neben dem prägenden Material – einem hellen Klinker aus Pfungen – auch die Proportionen und die Statik des bestehenden Baus aufgenommen und weitergeführt. Dies zeigt sich unter anderem am Wechsel von Stützen mit Kapitellen im Erdgeschoss zu eigentlichen Pilzstützen in den oberen Geschossen und an der – im Gegensatz zum Erdgeschoss – vertikal modulierten Fassade der beiden Obergeschosse. Innenräumlich ist das Gebäude geprägt durch überhohe Geschosse mit Galerien, welche den Produktionsprozess widerspiegelten – die Zulieferung des Materials auf den Galerien oben und das Abfüllen in den Hallen unten.
Diese einzigartige Struktur und die Fassaden zu erhalten und zu stärken, war die architektonische Herausforderung für den Umbau und die Aufstockung des Gebäudes für 200 hochinstallierte Arbeitsplätze. Heizung, Lüftung, Kühlung, Kommunikation und Elektro wurden horizontal in einem extra entwickelten Brüstungselement geführt und die komplette vertikale Haustechnik-Erschliessung und Erdbebenaussteifung wurde im Umriss der bestehenden Treppenhauskerne neu erstellt. Die bauphysikalisch notwendige Wärme- und Akustikdämmung wurde über eine innere Verkleidung gewährleistet. So konnten die gesamten Räume technisch auf den neuesten Stand gebracht und trotzdem die Fassade im ursprünglichen Erscheinungsbild erhalten werden. Der prägende Raumeindruck bleibt erhalten. Eigens zusammen mit der Innenarchitektin Verena Frey und Zumtobel Licht AG entwickelte textile Kugelleuchten nehmen Bezug auf die ursprünglichen Leuchten und stärken so anschaulich den hallenähnlichen Raumeindruck. Die Nutzung orientiert sich an der räumlichen Struktur des Gebäudes. In den Hallen sind kompakte Arbeitsplätze in Clusterbüros angeordnet, unter den Galerien die unmittelbar dienenden Strukturen und auf den Galerien die Orte des informellen Kontaktes und Rückzugs. Die zweigeschossige Aufstockung beherbergt die Cafeteria mit Tagungszentrum und die Räume der Geschäftsleitung.
Die Materialisierung der Räume stellt das Raumerlebnis in den Vordergrund. Schattierungen von Grau prägen die Räume – vom dunkleren Grau der PU-Beläge über die hellen Grautöne der Holzverkleidungen bis hin zu den roh belassenen und beinahe weiß gestrichenen Betondecken und Stützen. Die zweigeschossige Aufstockung führt die Grundstruktur des Gebäudes weiter. An den Fassaden liegen die überhohen und im Innern des Gebäudes die eingeschossigen Räume. Die überhohen Räume sind als Orangerien mit für die Aromaproduktion relevanten Pflanzen ausgeführt – hier ist der Ort für informellen Kontakt und Austausch, während im Innern des Gebäudes zwei einzelne Geschosse die Sitzungsbereiche und die Open-Space-Räume der Geschäftsleitung aufnehmen. Die bestehenden Fenster waren in einem nicht mehr sanierbaren Zustand und wurden mit originalen Beschlägen und Gläsern sowie in einer farbarchäologisch ermittelten Farbigkeit in Holz nachgebaut. Dabei dienen diese Fenster nun als Vorfenster, welche den neuen textilen Sonnenschutz aufnehmen und die Innenräume vor dem Lärm der Autobahn schützen. Im Innern interpretieren dreifach verglaste Holzfenster die Proportionen des Bestandes.
Im Rahmen der Fassadensanierung wurden ursprünglich vorgesehene und dann zugemauerte Fenster wieder geöffnet oder die Brüstung runtergeschnitten und Spuren des letzten Umbaus teilweise zurückgebaut. Die Fenster der ehemaligen Treppenhäuser wurden in Beton abgegossen und spiegeln nun die dahinter liegende massive Erdbebenwand wider. Die Fenster und Pfeiler der Aufstockung bauen auf den Grundmassen, Proportionen und der Materialisierung des Bestandes auf. Dies einerseits durch die Weiterführung der modulierten Pfeiler und die deutliche Zweigeschossigkeit der Fensteröffnungen und andererseits durch den vertikal und um 45 Grad abgedreht versetzten Klinker, welcher im Sonnenlicht ein vertikales Schattenspiel entstehen lässt. So wird die Vertikalität der ersten Aufstockung verstärkt – die Geschichte der Aufstockung wird weitererzählt.
Ernst Niklaus Fausch Partner AG