Erweiterung und Renovierung des Museums De Lakenhal
Happel Cornelisse Verhoeven

NEUES MUSEUMSERLEBNIS
Dank einer neuen Struktur und mit Hilfe der verbindenden Wirkung von Ziegelmauerwerk wird das Museum De Lakenhal in Leiden zu einem intuitiv erfahrbaren Gesamtraum mit ästhetischer Strahlkraft. Zeitgenössische Elemente unterstreichen den Charakter der einzigartigen historischen Architektur.
ERWEITERUNG ÜBER JAHRHUNDERTE
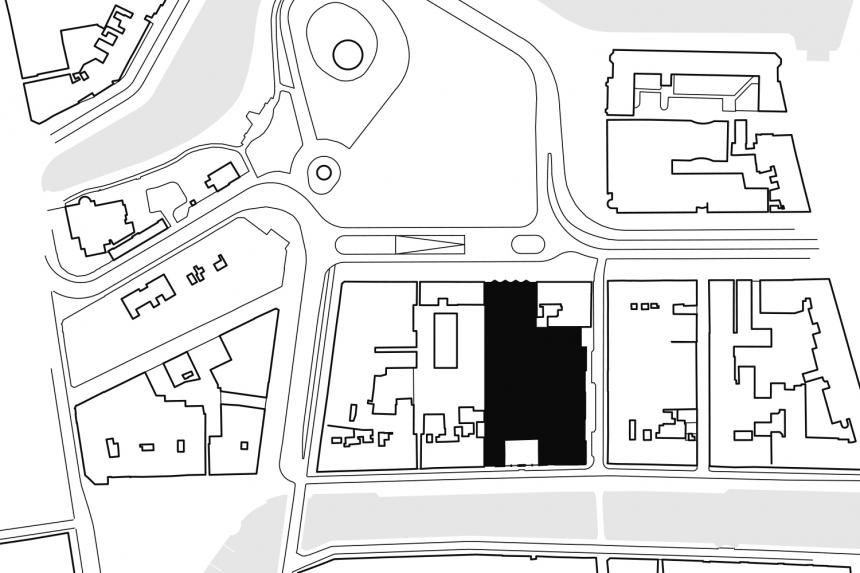
Das Museum De Lakenhal, seit 1874 das städtische Museum für Kunst und Geschichte im niederländischen Leiden, befindet sich in der monumentalen Laecken-Halle, dem 1642 erbauten Tuchhaus des Architekten Arent van’s Gravesande. Das dreigeschossige, klassizistische Gebäude wurde ursprünglich von den Tuchhändlern als Halle für die Qualitätskontrolle von Wollstoffen genutzt. Nach dem Anbau des Hartevelt-Saals 1890 und des Pape-Flügels 1921 war eine vielfältige Palette von Backstein-Gebäuden entstanden, die jeweils einen ganz eigenen architektonischen Charakter hatten. Im Laufe der Jahre wurde das Museum immer wieder erweitert, wodurch jedoch der ursprüngliche Grundriss zunehmend komplexer und unübersichtlicher wurde. Diese Problematik wurde mit der aktuellen Neukonfiguration behoben.
INTUITIV ERFAHRBARE NEUE STRUKTUR
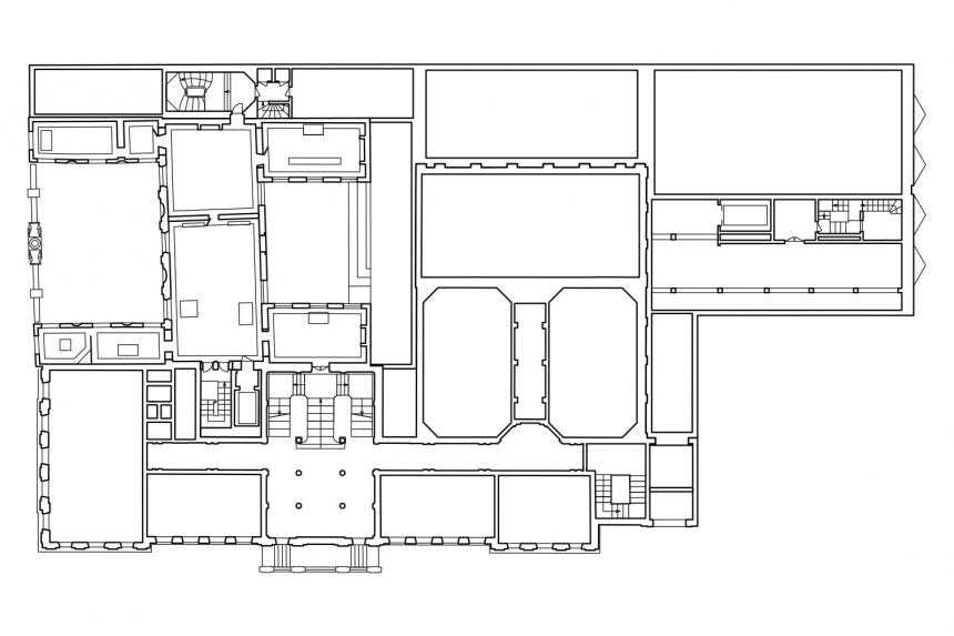
Der Eingang, der Vorplatz, der Vorhof und die Ausstellungsräume wurden neu konzipiert. Durch die Hinzufügung des Innenhofes Achterplaets, den nahtlosen Übergang von der alten Tuchhalle in die späteren Anbauten sowie das neue Van-Steijn-Ausstellungsgebäude eröffnet sich dem Besucher nun eine intuitiv erfahrbare und klarer strukturierte Anordnung der Räume. Das Van-Steijn-Gebäude erstreckt sich teleskopartig zwischen dem Kanal Oude Singel und dem Lammermarkt. Das Erdgeschoss bietet Platz für verschiedene Ausstellungsräume, ein Museumscafé und die Versandabteilung. Auf dem Lammermarkt wurde mit dem neuen und nach oben zurückgesetzten Volumen Raum für Büros und Werkstätten geschaffen.
VERBINDENDE BACKSTEIN-ELEMENTE
Die vier Gebäude – Laecken-Halle, Hartevelt-Saal, Pape-Flügel und Van-Steijn-Gebäude – unterscheiden sich zwar, doch verbindet sie eine gemeinsame DNA: Alle zeichnen sich durch großzügige Proportionen aus und sie bestehen alle aus Ziegelmauerwerk, wobei die Backsteine verschiedene Farbgebungen aufweisen. Die hinzugefügten zeitgenössischen Elemente unterstreichen den Charakter der einzigartigen historischen Architektur und ergänzen sie durch einen Neubau aus dem 21. Jahrhundert. Neben der Laecken-Halle präsentiert sich die neue Fassade des Cafés aus Ziegelsteinen mit einem wiederkehrenden Reliefmuster in einer weichen, gewebten Anmutung. Auf dem Lammermarkt ist der neue Bau durch vier identische spitz zulaufende Erkerfenster und Backstein-Rundbögen gekennzeichnet. Der Sockel besteht aus Formsteinen in einem Zickzackmuster, die in einem Winkel von 30 Grad zueinander angeordnet sind, wodurch die Nordfassade ihr Licht erhält. Die Mauerziegel werden nach einem ersten Brennvorgang ein zweites Mal in einer sauerstoffarmen Umgebung gebrannt. Dadurch erhalten sie ihre gelb-graue Farbe, die eine Verbindung zu den älteren Gebäuden mit ihren Elementen aus Bentheimer Sandstein herstellt.
VISUELLER BEZUG
Im Achterplaets wurden beschädigte oder unschöne neue Mauerziegel vorsichtig herausgelöst und durch deckungsgleiche wiederaufbereitete Ziegel ersetzt, wobei die reparierten Flächen dann mit neuen Kalkmörtelfugen versehen wurden, sodass sie mit dem sich anschließenden historischen Ziegelmauerwerk harmonieren. Das neue Mauerwerk vor dem Hartevelt-Saal besteht aus speziell angefertigten akustischen Ziegeln mit offenen Bindesteinen, die rückseitig mit schalldämmendem Material versehen wurden. Es handelt sich um den gleichen Backstein, der auch für die neuen Fassaden benutzt wurde, wodurch ein visueller Bezug zwischen Außen und Innen entsteht.
Happel Cornelisse Verhoeven