Nakasone House
Escobedo Soliz
WEIL DAS INNERE ZÄHLT
Als weitsichtige Reaktion auf die ansteigende dichte Bebauung in Mexiko-Stadt kreiert ein Haus mit einfachsten Mitteln einen Rückzugsort im Innersten.

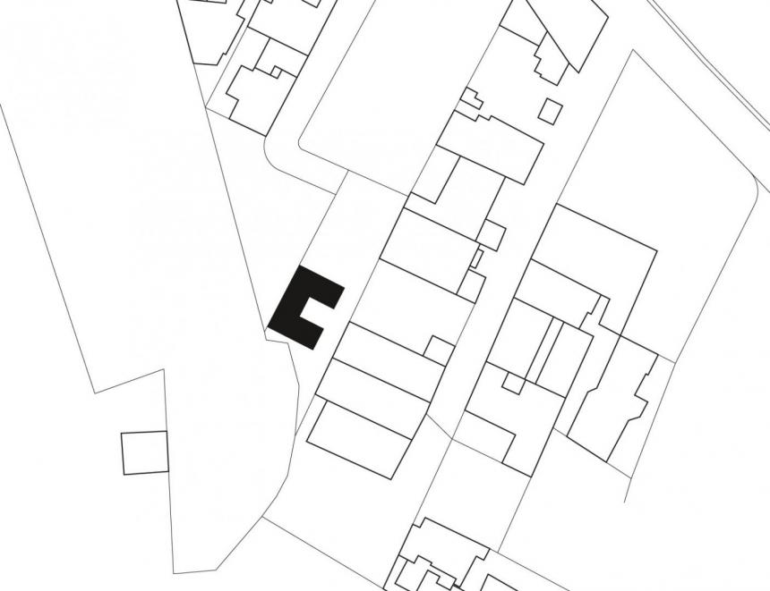
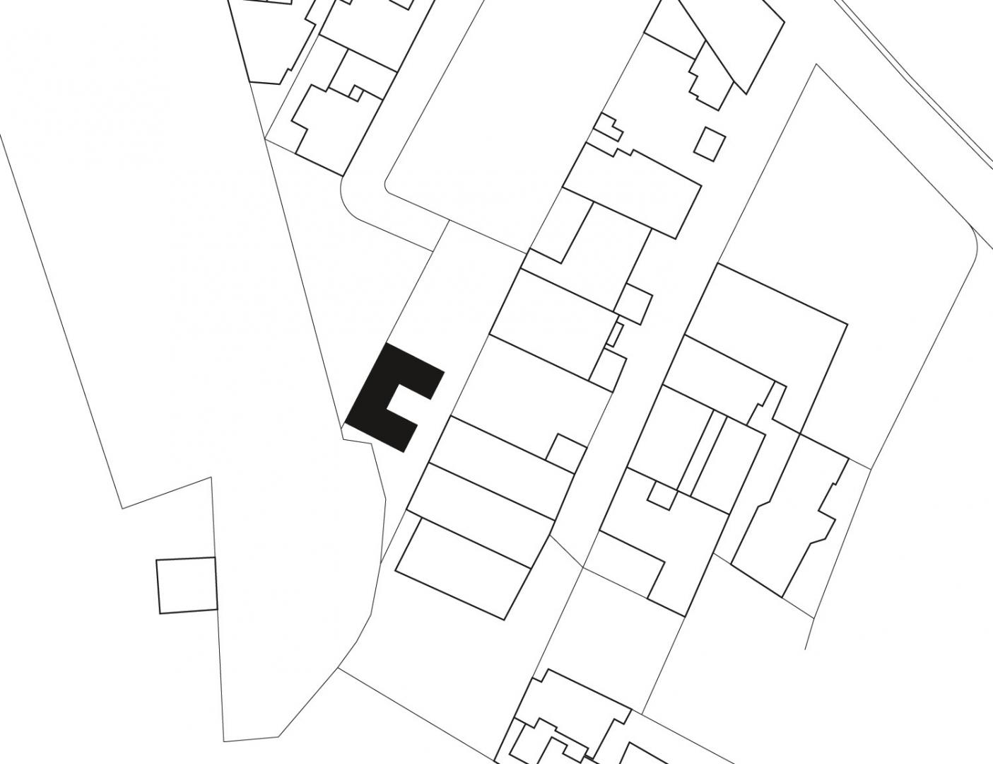
Das Nakasone House von Escobedo Soliz Haus befindet sich in einem offenen Viertel an der Peripherie von Mexiko-Stadt. Gebaut wurde das mit 110 m2 eher kleine Haus für einen pensionierten Lehrer. Ursprünglich sollten zwei gleiche Atriumhäuser auf dem begrenzten Grundstück entstehen. Nach Baubeginn wurde das Vorderhaus jedoch nicht realisiert. Stattdessen entstand ein großer Garten vor dem Haus.
Aufgrund des zunehmenden und schnellen Bevölkerungswachstums in dieser Gegend schätzen die Planer, dass die umliegenden Grundstücke in den kommenden fünf bis sieben Jahren bebaut sein werden. Ihre Vermutung: Bald schon wird das Haus von anderen Wohneinheiten eingeschlossen sein. „Wegen dieser Erwartungen für das unmittelbare Umfeld haben wir uns für einen dominanten Ziegelkörper mit Betonskelett entschieden, der sich zu einem Innenhof öffnet, um Sichtschutz vor den Nachbarn des Grundstücks zu bieten“, erklären die Architekten.
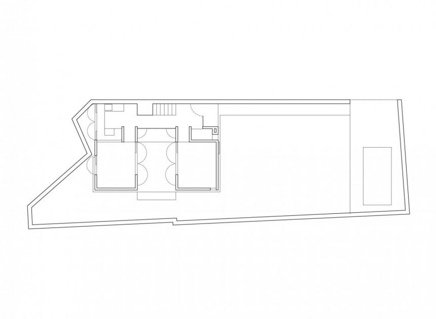
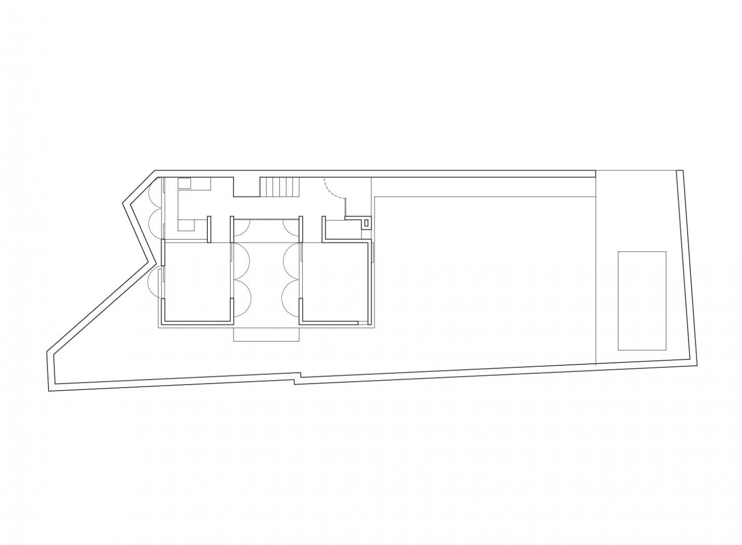
Dieser Innenhof (Patio) ist das Herzstück des gesamten Projekts. Das begrenzte Budget des Auftraggebers war zugleich eine Chance: So bot sich den Planern die Gelegenheit, die ebenso günstigen wie authentischen Produkte der regionalen Bauindustrie zu verwenden. Einer dieser Baustoffe ist ein Standard-Vollziegel mit den Abmessungen 7x14x28 cm, der aufgrund seiner Haltbarkeit, seiner thermischen Eigenschaften und seiner Verfügbarkeit in diesen Vierteln häufig verwendet wird. „Wir arbeiteten Hand in Hand mit örtlichen Handwerkern, um ihr Wissen im Bereich des lokalen Mauerwerkbaus zu nutzen und auch neu zu interpretieren, um ein einfaches, aber wirkungsvolles Ergebnis zu erzielen“, schildern die Architekten ihr Vorgehen. „Durch die Verwendung des einfachen Läuferverbands aus Ziegeln und einer dicken Mörtelfuge konnten wir die Wände mit wenig Material in kurzer Zeit errichten.“
Um den Ziegelsteinen eine glattere Textur zu ge- ben, wurden sie mit einem anderen Ziegelsteinblock abgeschliffen, während der Mörtel noch frisch war. Pavel Escobedo und Sandres Soliz: „Mit dieser Rohbearbeitung der Wände haben wir versucht, diesem schlichten Baustoff gebührende Geltung zu verschaffen. Das Haus ist durch ein Betontragwerk verstärkt, um den in der Gegend häufiger auftretenden Erdbeben standzuhalten. Wir verwendeten den vor Ort vorkommenden Vulkanstein, um Fundamente, Bodenplatten, Treppen und Außenwände anzulegen. Der Vulkanstein reguliert zusammen mit der Ziegelhaut die Temperatur des Hauses während des Tages und der Nacht.“
Die beiden Schlafzimmer befinden sich oberhalb einer hellen Holzterrasse, die den darunter liegenden gemeinschaftlichen Haupträumen als eine warme und schöne Holzdecke dient. Alle Service- und Verkehrsbereiche liegen entlang eines mittig angelegten Versorgungstrakts, während die Wohnräume in den Flügeln des Hauses den Innenhof umschließen. Dieser zentrale offene Raum gliedert Wohnund Esszimmer. Aufgrund des guten Wetters in der Region kann der Innenhof als eine Erweiterung der beiden gemeinschaftlichen Räume im Erdgeschoss genutzt werden und sorgt zudem für die Belüftung der Haupträume.
Das grelle Sonnenlicht in diesem Breitengrad ruft zusammen mit der Materialität der Ziegelflächen an den Wänden und auf den Böden tagsüber sehr schöne Farbfolgen und Texturen hervor. Der Lichteinfall in jeden Raum des Hauses ist anders und von unterschiedlicher Intensität und bestimmt die Aktivitäten, die darin stattfinden. Baustoffe, Bausystem und Struktur dieser bescheidenen Behausung offen und ehrlich sichtbar zu machen, war die Prämisse für dieses Projekt.
Escobedo Soliz