Civic Center
HARQUITECTES
Vergangenheit trifft Moderne
Dreieckig, rostrot, historisch: Das öffentliche Gebäude in Barcelona verbindet geschickt die heutigen Ansprüche an Denkmalschutz und kreatives Design.

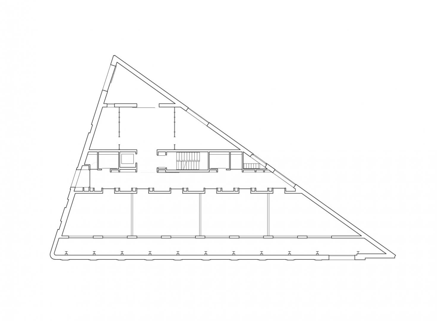
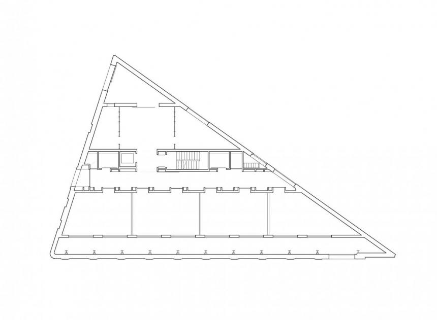
Diese öffentliche Einrichtung beherbergt auf einem dreieckigen Grundstück im Parlamentsviertel eine Volkshochschule, ein Konsortium zur Standardisierung von Sprache sowie ein Hotel. Zwei der drei Seiten des Geländes werden durch die denkmalgeschützte Fassade der ehemaligen Glasfabrik Planell definiert, die 1913 in der Calle Anglesola gebaut wurde.
Das Gebäude nutzt das gesamte Grundstück und fungiert als fester Bestandteil der Stadtlandschaft, obwohl die dreieckige Form und die spezifischen Fassaden verhindern, dass das zur Verfügung stehende Areal komplett vereinnahmt wird. Das Projekt verteilt sich auf vier Ebenen, die von der nach Süden ausgerichteten, unter Denkmalschutz stehenden Fassade zurückgesetzt sind. Das so entstandene Atrium bringt Konstruktion und Denkmalschutz in Einklang, verbessert die natürliche Beleuchtung der Klassenräume und bietet eine Wärme- und Schallbarriere. Dieser lange, schmale Innenhof wird am nördlichen Scheitelpunkt nachgebildet, der zwar die Geometrie ausschöpft, aber die Aufgabe als Beziehungssystem zwischen den administrativen Nutzungen des Gebäudes und dem Außenbereich übernimmt.
Der Gebäudeabschnitt zeigt, wie der Luftfluss unter natürlichen Bedingungen gesteuert und genutzt werden kann. Im Winter ist es notwendig, den Wärmeverlust durch Lufterneuerung zu steuern, indem die durch die Wandstruktur träge gewordene Luft mit Frischluft aus dem Atrium in Bewegung gebracht wird, das so für eine natürliche Ventilation sorgt. Im Sommer muss die Wärme durch die Bewegung eines möglichst großen Luftvolumens abgeführt und die Frischluft auf Basis von Sonnenkaminen und Aufsätzen, die den Venturi-Effekt nutzen, zugeführt werden. Das Gebäude ist in jedem Nutzungsabschnitt von einer langgezogenen strukturellen Unterbrechung gekennzeichnet, in der die Luft vertikal zirkuliert und durch Sonneneinwirkung in den Kaminen „nach oben gezogen“ wird, die dem Gebäude zudem eine Silhouette und eine unverwechselbare, transparente Materialität verleihen.
HARQUITECTES