Große Bleichen 19

TCHOBAN VOSS ARCHITEKTEN

Große Bleichen 19

MITTELSMANN AM FLEET

Eine 80 Meter tiefe und nur 14 Meter breite Baulücke füllt das Geschäftshaus „Große Bleichen 19“ gekonnt im historischen Kontext. Der Trick: Linienfortführung und eine plastische Staffelung.

 

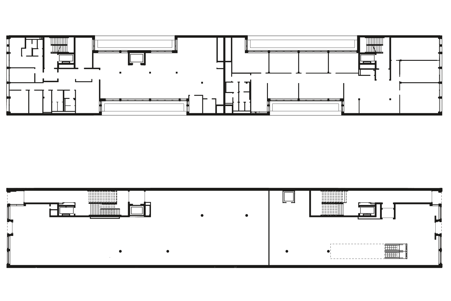
Direkt am denkmalgeschützten Gebäude der Alten Post am belebten Bleichenfleet in der Hamburger Innenstadt entstand das Geschäftshaus „Große Bleichen 19“ mit Einzelhandelsnutzung. Der sechsgeschossige Neubau füllt eine 80 Meter tiefe und nur 14 Meter breite Baulücke und fügt sich nahtlos in die Umgebung ein. Das Gebäude vermittelt geschickt zwischen seinen Nachbarn Alte Post und Galleria Hamburg, die seit kurzem ebenfalls unter Denkmalschutz steht: Die unterschiedlichen Traufhöhen werden weitergeführt und durch abgewinkelte Abschnitte in der Fassade vereint. Das Straßenbild bleibt stimmig, während der eigenständige Gebäudecharakter durch Staffelungen hervorgehoben wird. Die reiche Architektursprache der Umgebung mit ihren traditionellen Backsteinbauten findet sich in den Fassaden des Neubaus wieder. Raumhohe Fenster mit dezenten Rahmen aus eloxiertem Aluminium strukturieren die Oberflächen. In den Obergeschossen werden zusätzlich dezente Glasbrüstungen als Elemente französischer Fenster eingeführt.

 

Die Einzelhandelsflächen der Nachbarbauten im Erdund ersten Obergeschoss konnten nun sowohl zur Straße als auch zum Wasser durchgehend verbunden werden. Vom zweiten bis zum fünften Obergeschoss entstanden kleinteilige sowie zusammenhängend vermietbare Büroflächen, die im Mittelteil durch Lichthöfe belichtet werden. Die Anforderungen für das Bauprojekt waren vielschichtig. Einerseits sollte sich der Neubau in das Gesamtbild der Einkaufsmeile einfügen und zwischen den unterschiedlich hohen Nachbargebäuden vermitteln, andererseits sollte er durch eine prägnante Gestaltung einen weiteren wichtigen Stadtbaustein in der Hamburger Innenstadt bilden.

 

Für die Fassade wurde mit Klinker ein für Hamburg typisches, traditionelles Baumaterial gewählt, das auch das Straßenbild der Große Bleichen prägt. Bei der Auswahl des Klinkers entschieden sich Bauherr und Planer für einen Ziegel im Dänischen Normalformat DNF 228 x 108 x 54 mm. Der Hersteller verarbeitet vor allem Ton aus der unmittelbaren Umgebung des Ziegelwerks. Die eingesetzten Techniken für die Herstellung der wassergestrichenen Kohlebrandziegel spiegeln die Verarbeitungsmethoden aus der Zeit wider, als sie noch von Hand gefertigt wurden. Durch das Brennen der Ziegel mit Kohle entsteht ein individuelles Farbenspiel in hellen und dunklen Nuan- cen. Kein Stein ist wie der andere, was für lebendige Fassaden sorgt. Die Art der Fertigung verleiht dem Ton eine optimale Textur mit Kapillaren und Poren. Eindringendes Wasser, das zu Eis gefriert, kann sich ausdehnen, ohne den Stein zu zerstören. Somit besteht kein Risiko für Frostschäden durch die ermöglichte Wasseraufnahme.

 

Tchoban Voss Architekten

City
Hamburg, Deutschland
Client
Aachener Grundvermögen Kapitalverwaltungsgesellschaft mbH, Köln
Architect profile
Plot size
1.174 m²
Built-up area
1.174 m²
Usable area
5.644 m²
Enclosed volume
27.783 m³
Construction time
2014 – 2018