Wohnhaus Schiffahrter Damm
Reinhard Martin Architekt

Durchdacht Erweitert
16 moderne, großzügige Wohnungen sind heute Teil eines sanierten Backstein-Altbaus in Münster. Ein Anbau mit Holzbau-Elementen unterstreicht zusätzlich die spezielle Kombination aus Alt und Neu.
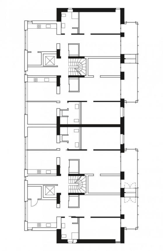
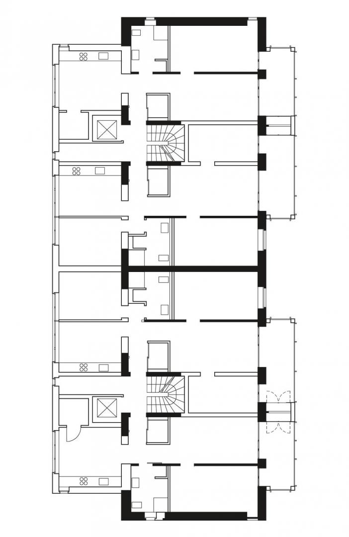
Das Haus ist in dritter Generation in Familienbesitz. Die 21 Kleinstwohnungen und der kleine Laden entsprachen nicht mehr den heutigen Bedürfnissen. Auf der Suche nach geeigneten Wegen der Transformation lautete die Vorgabe, die vorhandene Bausubstanz weitgehend zu erhalten. 420 m² Ziegelmauerwerk und 390 m² solide Holzbalkendecken wurden weiterverwendet. Ziel war es, den Altbau durch Erweiterungen weiterzudenken, das Haus fit zu machen für die ökologischen und gesellschaftlichen Rahmenbedingungen der nächsten Generation. Es entstanden 16 Wohnungen von 62 m² bis 86 m² Wohnfläche für Singles, Paare und Kleinfamilien aller Altersklassen.
Die Planer experimentierten zunächst mit einem schmalen Anbau über die ganze Länge der Westfassade als „Schild“ gegen den Straßenlärm. Der Dachstuhl sollte entfernt und durch vier Maisonetten in Holzrahmenbauweise ersetzt werden. Die Modellstudien zeigen Varianten dieser Wohnungen, für die jeweils geschützte Dachterrassen und nach Süden geneigte Dachflächen zur Installation von Solarthermie angedacht waren. „Der gesetzliche Rahmen des § 34 BauGB und die aufwendige Lastabtragung ließen uns diesen Weg leider nicht weiterverfolgen“, bedauern die Architekten.
In der weiteren Bearbeitung wurde der als „Schild“ gedachte Anbau zur Straßenseite auf Raumtiefe erweitert. Die klare Großform der neuen Ziegelfassade und das ruhige Zusammenspiel von Fläche und Öffnung zitieren die zurückhaltend-qualtitätvollen Fassaden der gegenüberliegenden Nachbarhäuser, sind aber selbstbewusst und erkennbar zeitgenössisch formuliert. Das Staffelgeschoss in Holzrahmenbauweise und unbehandelter Lärchenfassade bildet übergreifend die Klammer zwischen Altbau und Anbau. Durch das Zusammenwirken und Sichtbarmachen der Bausteine aus Altbau und Erweiterungen entsteht ein Wohnhaus mit ganz eigenständiger Qualität im Kontext der Nachbarschaft.
Alle Wohnungen sind nach einem ähnlichen Prinzip organisiert: Der große Raum im Anbau zur Straße ist der Multifunktionsraum für Kochen und Essen. Die sichtbar belassene Backsteinwand des Altbaus wird hier zur Innenwand. Die Räume zur ruhigen Hof-/ Gartenseite sind in ihrer Nutzung nicht definiert. Alle Räume zur Hofseite verbinden sich durch Fenstertüren mit der großzügigen Loggia, die einen wettergeschützten Außenraum bietet. Die vier Wohnungen im EG haben eine direkte Verbindung mit ihrem privaten kleinen Garten.
Nach dem Prinzip des „Durchwohnens“ besteht eine Sichtverbindung über fast 15 m vom Multifunktionsraum über den offenen Mittelbereich bis in die Loggien an der Ostseite. Dies lässt die Wohnungen hell und großzügig erscheinen. Alle Wohnungen sind barrierefrei. Es ist dem Bauherren ein Anliegen, dass optional lebenslanges Wohnen möglich ist. Ein ehrgeiziges Energiekonzept mit dem Standard KfW-Effizienzhaus 70 wurde umgesetzt, obwohl die Gesamtkubatur zu etwa 65 % aus der Altbau- und nur zu etwa 35 % aus der Neubausubstanz besteht. Dies wurde erreicht durch die hochwärmegedämmte Gebäudehülle – im Altbau durch die Innendämmung aus 10 cm Kalziumsilikat, im Anbau durch 14 cm Mineralwolledämmung – und die sehr gute Wärmedämmung der Kellerdecke und des Holzrahmenbaus. Die Beheizung und Warmwasserbereitung erfolgt ausschließlich über Wärmepumpen / Geothermie.
Die massiven sichtbar belassenen Backsteinwände des Altbaus regulieren mit ihrer speicherfähigen Masse das Raumklima. Aus dem robusten und etwas düsteren Altbau ist durch Transformation und Weiterbauen ein komplexes Gebäude entstanden, dessen einzelne Bauglieder durch Material und Bauzeit klar ablesbar sind. Das schöne Backsteinmauerwerk des Altbaus, der etwas hellere Backstein des Anbaus aus einer kleinen westfälischen Ziegelei, das wie eine Klammer wirkende Staffelgeschoss und die Loggien, verputzt wie der Sockel des Altbaus und als eigenständiges Bauwerk vor die Backsteinfassade gestellt, erscheinen wie aus einem Baukasten zusammengefügt. Im Ergebnis erscheint das Gebäude trotz größerem Volumen differenzierter, weniger massig und einladender als der Ursprungsbau.
Reinhard Martin Architekt