Seniorenwohnungen Wielewaal
KAW

Von der Natur Inspiriert
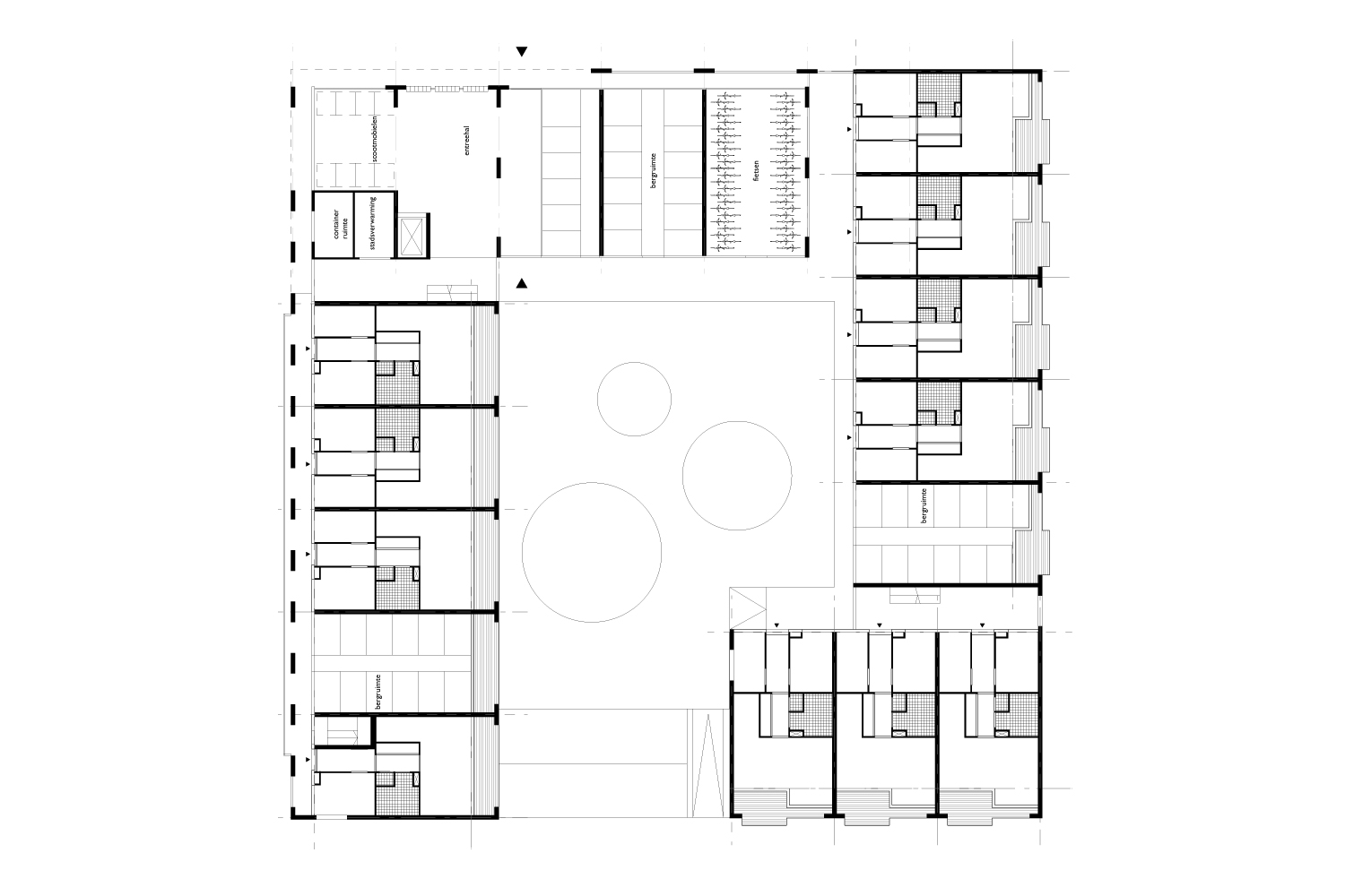
Die 109 neuen Apartments des Nachkriegsviertels Wielewaal in Rotterdam sind entworfen für Senioren, die gerne in ihrer vertrauten Umgebung alt werden wollen. Die Bewohner sind begeistert, der grüne Innenhof ist ein Platz für gemeinsame Aktivitäten und Entspannung geworden: „Wir haben das Gefühl, dass wir in Spanien wohnen!“
Das in Rotterdam berühmte Nachkriegsviertel „Wielewaal“ bestand ursprünglich aus kleinen, auf Sand gebauten Notwohnungen. Diese Wohnungen entsprachen mit relativ großen Gärten und kleinem Wohnraum nicht mehr den heutigen Wohnanforderungen. Die Bewohner durften für den Neubau den Architekten selbst wählen und haben sich mit einer Mehrheit von 80 Prozent für KAW entschieden. Die neuen Apartments entsprechen den altersgerechten Bedürfnissen von Senioren: Es sind hauptsächlich Zwei-Zimmer-Wohnungen mit großen Balkonen mit Aussicht auf die parkartige Umgebung.
Der Leitfaden der sozialen Mietwohnungen ist: maximale Wohnqualität zu bezahlbarer Miete. Die Gebäudestruktur ist einfach und rational aufgebaut. Die Innenhöfe sind identisch, durch Formgebung und Anordnung hat dennoch jeder einen unterschiedlichen Charakter. Alle Wohnungen haben eine optimale Ausrichtung und große, private Außenräume. Der Komplex wird durch die Bewohner wie ein kleines Wohnviertel erfahren. Die Architektursprache wird geprägt durch typische Merkmale aus der Nachkriegsperiode: Fassaden mit flachen, horizontalen Bändern. Ausgeführt in hochwertigen Materialien, die auch nach Jahren noch stilvoll aussehen. Jeden der Blöcke ziert ein prächtiges Fassadenkunstwerk des Künstlers Raymond de Vries. Seine beigefarbenen Schmetterlinge stehen als Symbol für die bunte Insektenwelt des Gebietes. Die Gebäude werden so Teil der Natur. Sechs goldfarbene Steine geben den Kunstwerken extra Glanz.
KAW