Kloosterbuuren

Hans van der Heijden Architect

Kloosterbuuren

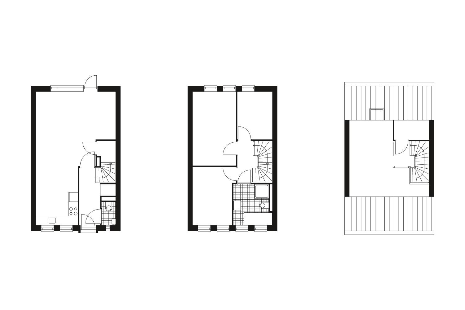
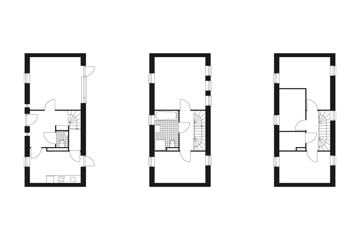
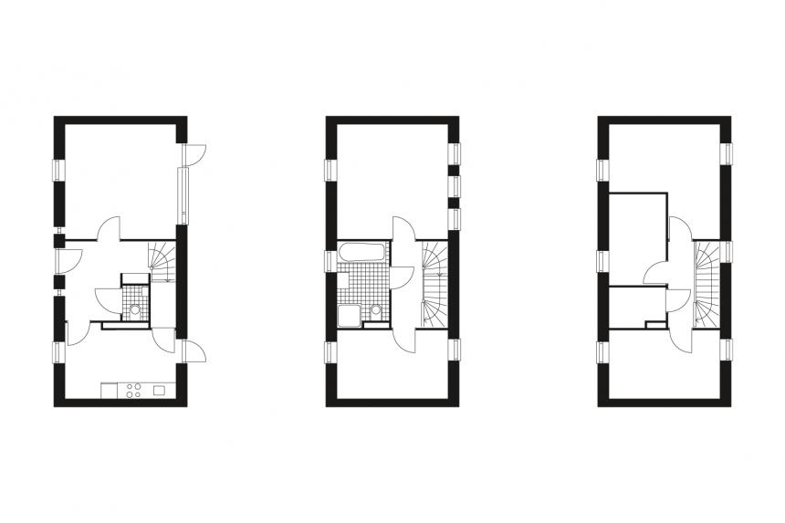
Material als Thema

Um eine kirchliche Schule und zwei klösterliche Gebäude herum ist ein Wohn-Ensemble entstanden, das sich ganz selbstverständlich an das Bestehende anlehnt und die Nachbarschaft dennoch neu definiert.


Das Wohnungsbauprojekt befindet sich im Den Haager Stadtteil Moerwijk und gliedert sich rund um eine charakteristische Kirche und zwei Klostergebäude. Die Außenkanten des Areals orientieren sich an den weitläufigen Sichtachsen, die das urbane Moerwijk prägen.


Der Kern des neuen Quartiers ist jedoch kleinteilig und an die bestehenden Gebäude angepasst. Die inneren Teile des Areals blieben, wo immer möglich, frei von Autos. Die Pflasterung der öffentlichen Räume besteht aus Backsteinen, die vor Ort wiedergewonnen wurden.


Die Gestaltung der Gebäude und der öffentlichen Räume beruht auf der Bosschen Schularchitektur, die vor allem religiöse Ensembles in den Fokus nimmt. Das Zusammenspiel von Urbanismus, Architektur und die Gestaltung des öffentlichen Raums blieb in einer Hand und konnte so genau aufeinander abgestimmt werden.


Hans van der Heijden

City
Den Haag, Niederlande
Client
ERA Contour, Stadt Den Haag
Plot size
30.000 m²
Built-up area
14.000 m²
Usable area
12.000 m²
Enclosed volume
29.000 m³
Construction time
2014 – 2016
Construction costs
15 Mio. EUR