Zentrum für Kultur und Ökologie
Studierende der Hochschule München
GELEBTE GEMEINSCHAFT
In Zusammenarbeit mit der Gemeinde ist ein Ort entstanden, der tief mit der Region verbunden ist. Sowohl das Kulturschaffen als auch agrarökologische Nutzung finden hier einen Raum.

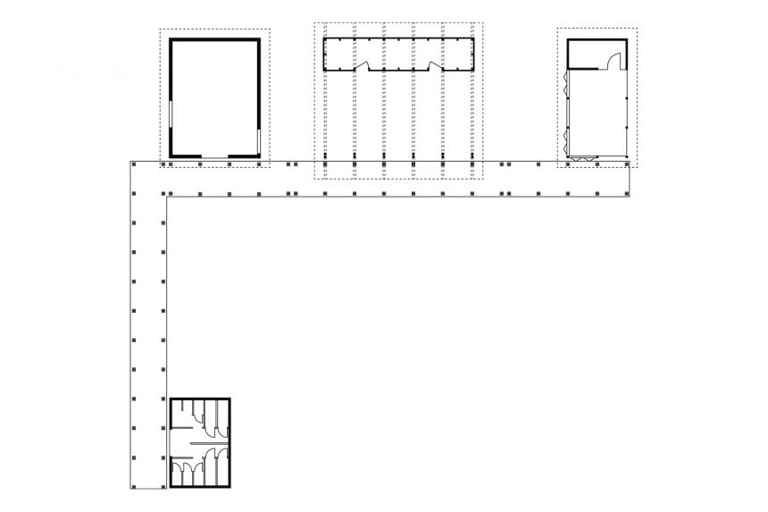
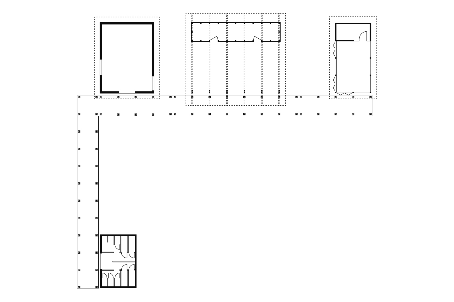
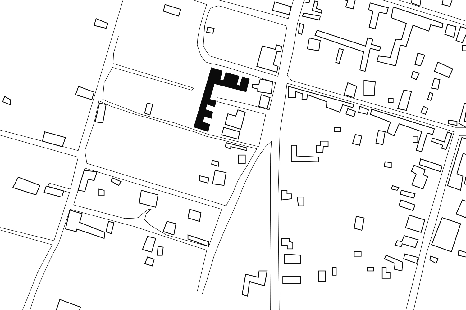
Das neue Zentrum für Kultur und Ökologie in Santa Catarina Quiané bietet der Gemeinde Raum, ihre kulturellen Aktivitäten auszuüben und Gemeinschaft zu leben, aber auch agrarökologische und nachhaltige Techniken zu lernen. Zu dem Gesamtkonzept gehören eine umschlossene Aula, eine überdachte Halle, ein Sanitärgebäude mit Kleinkläranlage, eine Gemeinschaftsküche sowie eine offene, L-förmige Galerie, die den zentralen Veranstaltungsplatz einrahmt und an der sich die verschiedenen Gebäude wie Perlen an einer Kette auffädeln.
Erdbebengerechtes Bauen, einfache und kostengünstige Bautechnologie, die Verwendung von lokalen, ökologischen und nachhaltigen Materialien wie Lehmstein und Ziegel, die Beachtung von Akzeptanz und Angemessenheit, aber auch die Machbarkeit in einem knappen Zeit- und Kostenrahmen waren die wichtigsten Entwurfskriterien. Alle Gebäude orientieren sich durch ihre ansteigenden Pultdächer am zentralen Platz. Für Küche, Sanitärgebäude so wie Aula wurde ein schwellenloser, modularer Holzständerbaugewählt, dessen Außenwände mit nichtgebrannten Lehmsteinen ausgefacht oder auch mit modulgroßen Fensterelementen, Türen oder Holzlamellen gefüllt sind. Den Rücken der Halle bildet eine Box aus Holzrahmenelementen, die in traditioneller Weise mit einem Lehmputz (Bajareque) verkleidet ist. Alle Dächer sind mit Wellplatten aus recyceltem Tetrapack gedeckt. Das Galerieband erhielt einen Boden aus lokal gebrannten Ziegeln. Das helle Rot der Ziegel, das Braun des ungebrannten Lehms und die Farbe des Holzes bestimmen den Charakter des Zentrums und geben ihm eine warme, willkommen heißende Atmosphäre.
Studierende der Hochschule München