UpTownHouses – Eine Stadthauszeile

Planwerkeins Architekten

UpTownHouses – Eine Stadthauszeile

Einheit der Vielfalt

Durch unterschiedliche Breite, Höhenstaffelung und nicht zuletzt die Wahl des Backsteins ist eine lebendige Häuserzeile mit individuellen Adressen entstanden.


Die Bebauung ist Teil eines Wohnungsbau-Neubaugebietes auf dem Gelände der ehemaligen Frauenklinik Finkenau, im östlich gelegenen Hamburger Stadtteil Uhlenhorst. Auf dem Baufeld 5 entstand im Rahmen eines von der Stadt ausgelobten Wettbewerbs eine Stadthauszeile mit 26 Stadthäusern, entworfen von sechs renommierten Hochbauarchitekten. Bündelung, Ausführung und Umsetzung der verschiedenen Stadthausentwürfe lagen seit Bauantragsstellung in einer Hand.


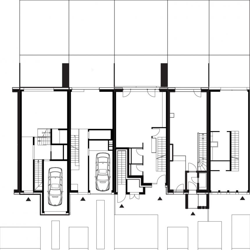
Die Parzellenbreiten variieren von 4,75 bis 6,5 Metern. Durch die unterschiedlichen Breiten und verschiedenen Höhenstaffelungen entsteht eine lebendige Häuserzeile mit individuellen Adressen – zumal die acht Haustypen so konzipiert sind, dass kein Haus die gleichen Nachbarn hat. Verstärkt wird dies zusätzlich durch das Geländegefälle, die wechselnden Vor- und Rücksprünge im Staffelgeschoss sowie durch diverse Vorbauten im Erdgeschoss.


Die Fassaden wurden straßenseitig als steinerne Fassade mit einer rötlichen Verblendansicht ausgeführt, deren Ausformulierung sich je nach Haustyp verändert. Die fein ausgearbeiteten Unterschiede in Farbe, Haptik und Verarbeitung erzeugen eine „Einheit der Vielfalt“ innerhalb der Stadthauszeile.


Gartenseitig beziehungsweise zum Blockinneren wurden unterschiedliche, weiße Putzfassaden umgesetzt. Die Dachflächen sind extensiv begrünt und die gesamte Stadthauszeile entspricht dem Standard KfW-Effizienzhaus 40.


Die Vorgartenzone ist als zusammenhängender Freiraum gestaltet, während hofseitig die parzellenbreiten Privatgärten an die Terrassen anschließen. Die integrierte Tiefgarage reduziert die Überfahrten auf ein Minimum, was den Straßenraum entlastet. Auch die Fahrradstellplätze in den privaten Kellern sind über die Tiefgaragenrampe erreichbar.

 

PLANWERKEINS Architekten

City
Hamburg, Deutschland
Client
wph Wohnbau und Projektentwicklung Hamburg GmbH
Architect profile
Built-up area
1,860 m²
Usable area
4.590 m²
Enclosed volume
24.210 m³