Phoenix Central Park

Durbach Block Jaggers Architects / John Wardle Architects

Durbach Block Jaggers Architects/ John Wardle Architects

Räume für die Kunst 

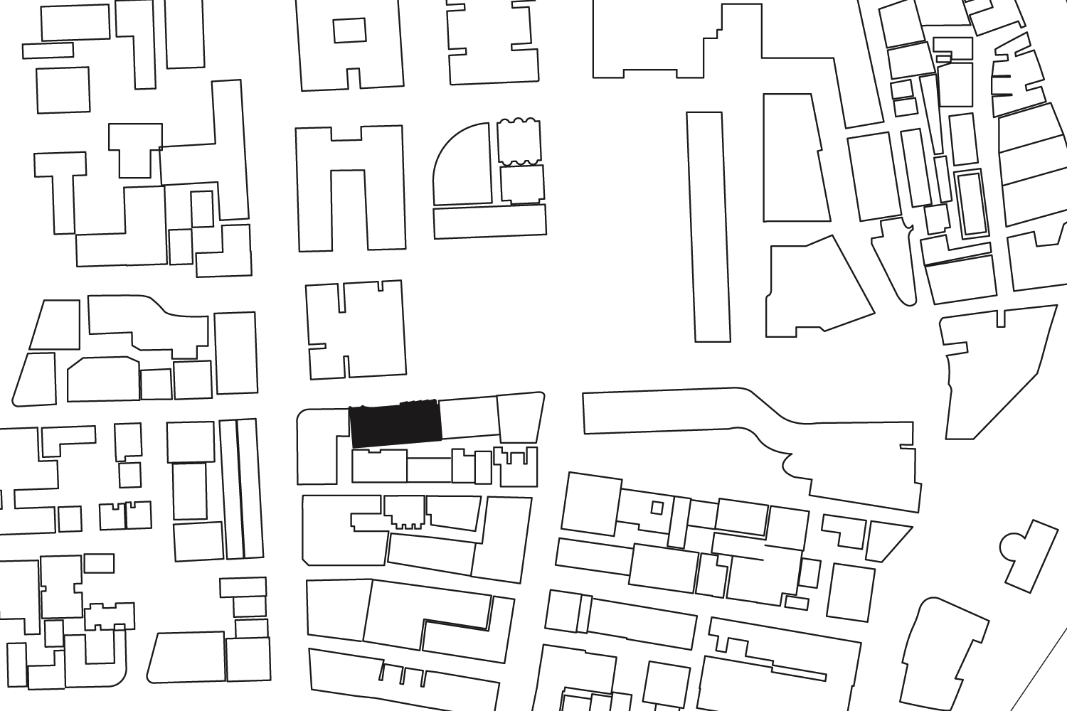
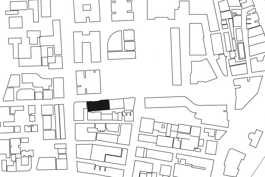
Phoenix Central Park ist ein Ausstellungs- und Veranstaltungsraum in Sydney, Australien. In den Räumlichkeiten werden bildende und darstellende Kunst zusammengeführt. Phoenix ist eine Kooperation von zwei Architekturbüros: Der von John Wardle Architects entworfene Ausstellungsraum im Ostflügel und der Veranstaltungsraum von Durbach Block Jaggers sind durch einen Innenhof und Garten in der Mitte verbunden.

 

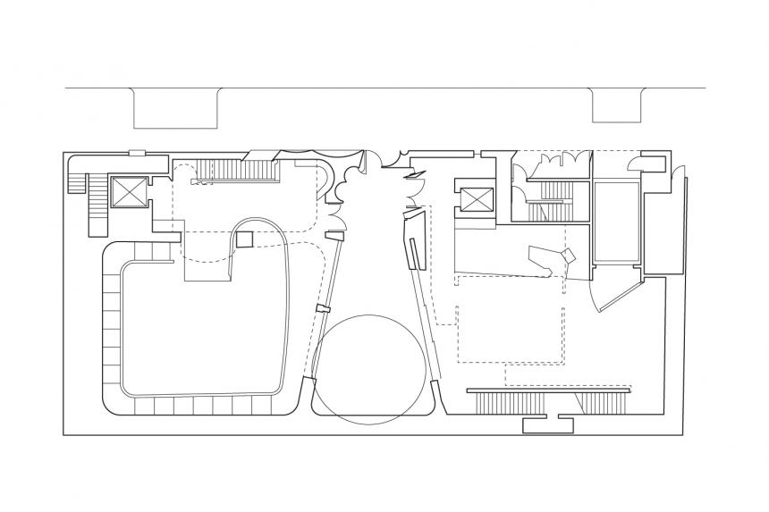
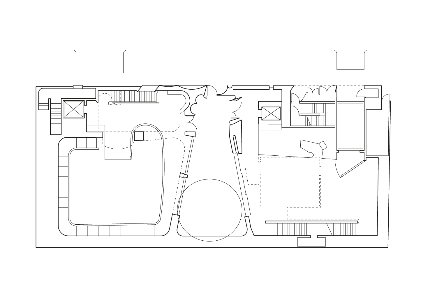
Jeder der Architekten hat für den jeweils von ihm gestalteten Innenraum eine eigene Form- und Materialsprache entwickelt. Die beiden Gebäudeelemente werden vollständig von einer durchgehenden Fassade aus Ziegelsteinen umschlossen. Da es sich weder um ein Museum noch um eine öffentliche Ausstellungsfläche handelt, wurde eine choreografierte Abfolge von Räumlichkeiten geschaffen, von kleinen und intimen Bereichen für die Präsentation einzelner Arbeiten bis zu großzügigen Ausstellungsflächen für ganze Sammlungen. Jeder der Räume eröffnet eine individuelle Kulisse für die Kunst.

 

Durch Rundfenster im Fokus zweier Innenräume im Ausstellungstrakt wurden markante Raumerlebnisse geschaffen. An der gegenüberliegenden Seite der Galerie befindet sich unter dem Garten eine kleine, höhlenartige Kammer mit einem einzelnen Oberlicht zu den darüberliegenden Bereichen. Der Theaterraum hat die Anmutung einer glockenförmigen Lichtung. Wie in einem elisabethanischen Theater ist der Ort der Handlung auf eine Rundumansicht angelegt, was zahlreiche Blickwinkel eröffnet. Ein vorspringender Balkon ragt in den Raum hinein, wodurch eine weitere Bühne bzw. Guckkasten geschaffen wurde. Das überdimensionierte goldene Fenster erlaubt Einblicke von der Straße und sorgt für einen Einfall von natürlichem Licht.

 

Die beiden an dem Projekt beteiligten Architekturbüros haben für die Umsetzung einen intensiven Dialog geführt. Dies entspricht der primären Konzeptidee für Phoenix Central Park, das als künstlerisches Zentrum gedacht ist, an dem die bildende und darstellende Kunst in einen beständigen Dialog treten.

 

Durbach Block Jaggers Architects

John Wardle Architects

City
Sydney, Australien
Client
FDC Group
Plot size
717 m²
Built-up area
717 m²
Usable area
1.185 m²
Enclosed volume
16.800 m³