Johann Jacobs Haus
Felgendreher Olfs Köchling Architekten
Im Zeichen der hanse
In Bremen knüpft das Johann Jacobs Haus an die Backstein- Tradition im Zeichen der Hanse und der Weser-Renaissance an. Verschiedenartige Fragmente und vielschichtige bauzeitliche Bezüge verschmelzen zu einem zeitgenössischen Stadthaus neuen Typs.

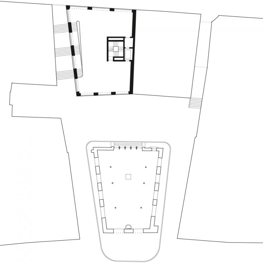
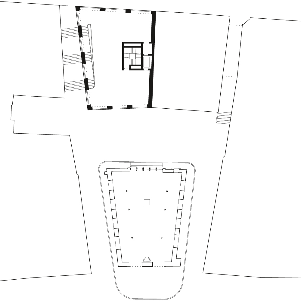
Als erster Baustein einer innerstädtischen Quartiersentwicklung ersetzt das neue Johann Jacobs Haus das alte Stammhaus des Kaffeeunternehmens Jacobs aus der Zeit des Wiederaufbaus. Es zeigt sich als selbstverständlicher Baustein der Stadt. Das Besondere an seiner Lage im Stadtgrundriss ist seine Dreiseitigkeit. So staffelt sich der Baukörper zu drei Seiten und vermittelt präzise zwischen den Traufkanten der historischen Baudenkmäler. Plastizität und Dreiteilung der Fassade vereinzeln das Gebäude in der Reihe und stellen Bezüge zu hanseatischen Stufengiebeln her.
Das dreidimensionale Betonscheibentragwerk prägt maßgeblich die Gestalt des Hauses. Es ermöglicht Stützenfreiheit und somit langfristige Flexibilität. Erschließung und Konstruktion sind zugunsten der offenen und dreiseitig belichteten Räume auf das Wesentliche reduziert. Die Materialität und Farbigkeit der Altstadt findet sich in der Vormauerung mit erdfarbenen Wasserstrichziegeln und sandfarbenen Fugen wieder. Die Sandsteinfiguren des Vorgängerbaus sind in die Fassade des Neubaus integriert.
Bogenförmige Schaufenster leiten die Passanten von der Einkaufsstraße über die Treppe in der Gasse zum neuen Quartiersplatz. Das hofseitige Portal der Stadtwaage wurde denkmalgerecht restauriert und zum neuen Platz geöffnet. Ähnlich wie die Stadtwaage als historisches Baudenkmal Weser-Renaissance und Wiederaufbau zu einem homogenen Ganzen vereint, so transformiert auch der Neubau ortstypische Motive und bauzeitliche Bezüge zu einem zeitgenössischen Bremer Stadthaus.
Felgendreher Olfs Köchling Architekten