Couldrey House
Peter Besley Pty Ltd with Assemblage
Wie ein sicherer Fels
Das Einfamilienhaus in Seven Hills verschmilzt direkt mit dem felsigen Gestein der Umgebung und passt sich beständig sowie schützend dem subtropischen Wetter an.

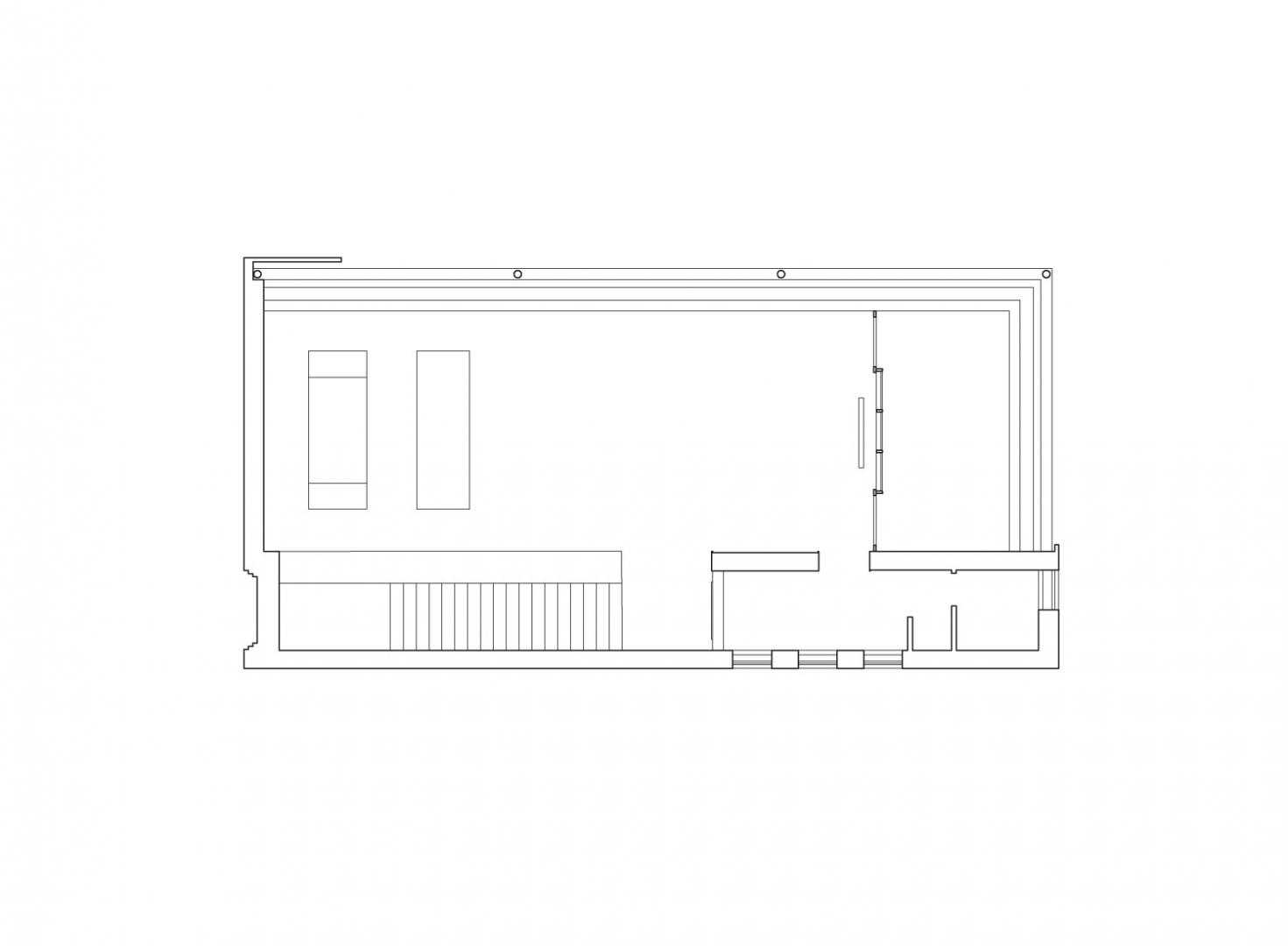
Das Couldrey House wurde für ein Mitglied der Familie des Architekten entworfen. Das Haus verfolgt einen für die australische Wohnarchitektur ungewöhnlichen Ansatz: Viele der Häuser dort schweben über dem Boden und sind aus leichten Baustoffen errichtet. Stattdessen wurde das Couldrey House so entworfen, dass es direkt aus dem unterirdischen Gestein entspringt und aus schweren Materialien besteht, die sehr lange halten. Das Haus liegt auf einem Felssporn in den Ausläufern des Mount Coot-Tha im Westen von Brisbane. Es handelt sich um einen alten und rätselhaften Ort, und die Architektur ist so angelegt, dass der „visuelle Lärm“ wegfallen kann, um das Bewusstsein für die Qualität dieser Landschaft zu schärfen. Das Haus führt die örtliche Tradition fort, kühlende Brisen mit guter Exposition und einer durchlässigen Anordnung einzufangen, stärkt den Kühleffekt jedoch durch eine passive solare Kühlung aus thermischer Masse.
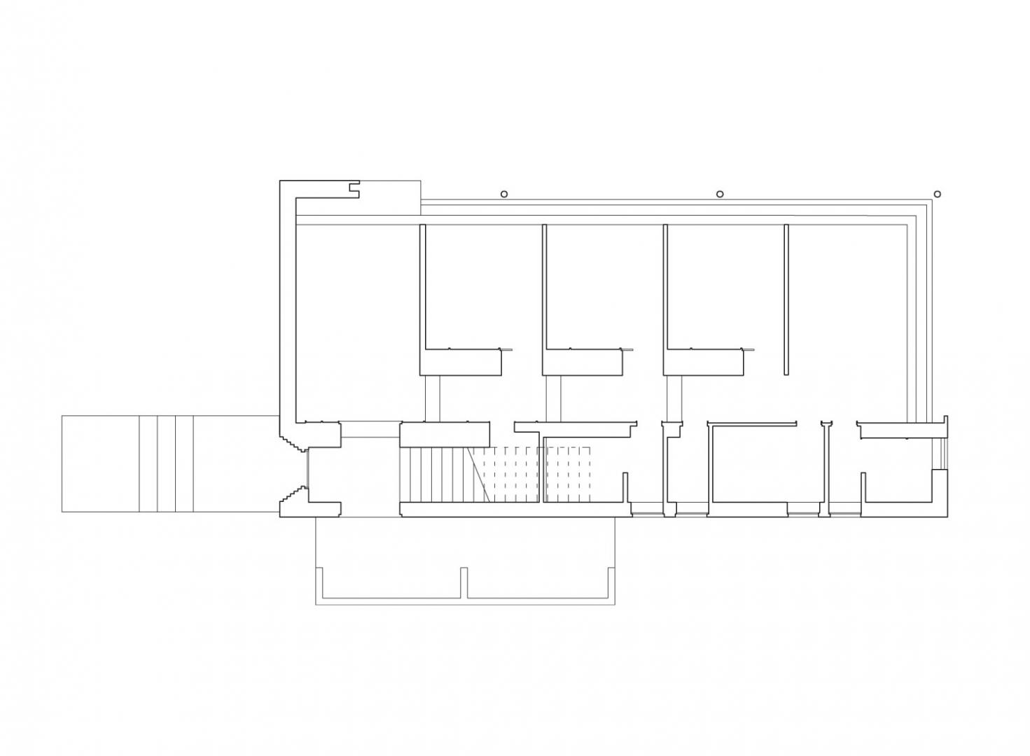
Auf beständiges Mauerwerk zu setzen, war eine frühe Entscheidung. „Backstein wird in Australien mit billigen Wohnblöcken in den Vorstädten assoziiert, aber ich sehe das anders“, erläutert der Architekt. „In Europa und in der Levante haben Backsteinbauwerke und die zugrundeliegenden Kompetenzen eine lange und reiche Geschichte. Backstein gilt als ein Qualitätsbaustoff, der die Beachtung führender Architekten verdient.“ Sein Vorgehen: „Um die große Masse des Hauses habe ich eine Hülle aus Backsteinen gewickelt, die die Form eines einfachen rechteckigen Prismas hat, das im Westen und Süden geschlossen und im Norden und Osten für Ausblicke und Brisen offen ist. Ich wählte einen dünnen, langen cremefarbenen Backstein und ergänzte diesen mit einem passenden weißen Mörtel. Zur rauen Westseite hin, in diesem Fall auch die Straßenseite, sind in die Wände keine Fenster eingelassen. Das Mauerwerk wird stattdessen im Stil einer Ziehharmonika um die Haupteingangstür gefaltet, die die Nachmittagssonne einfängt.“
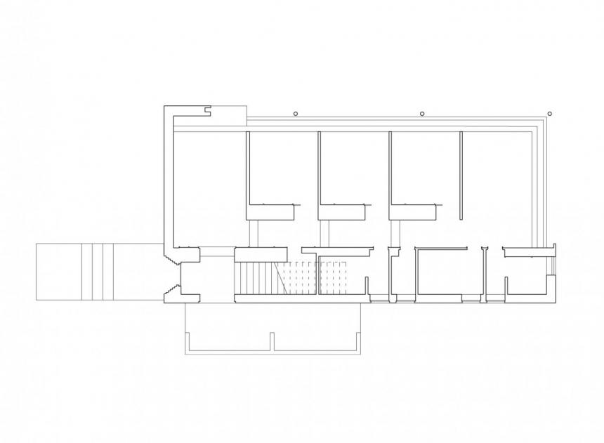
Eine ähnliche Ziehharmonika aus Backsteinmauerwerk erstreckt sich horizontal in Form einer Reihe von großen Zugangstreppen. Im Süden prägen horizontale Schlitze die Fassade, die sowohl Schatten als auch Privatsphäre bieten.
Die Gesamtwirkung ist nüchtern. Ein charakteristisches Merkmal sind die hervorstehenden Mörtel-„Ausbeulungen“. Sie erzeugen ein visuell komplexes Schattenspiel und sorgen im Gegensatz zu den Backsteinen dafür, dass der auffallende Effekt der Textur eine ästhetische Verbindung mit Elementen der umgebenden Landschaft eingeht.
Der tatsächliche Grundriss des Hauses ist einfach, kehrt jedoch die standardmäßige Flächenanordnung um: Die Schlafzimmer befinden sich unten, die Gemeinschaftsräume oben, sodass die Bewohner das Gefühl haben, unter einem Baumkronendach zu leben. Die untere Geschossplatte wiederum bildet die Topographie ab, sodass jedes Schlafzimmer ein eigenes „Stockwerk“ hat.
Der Bau ist abgeschlossen, doch das endgültige „Design“ benötigt Zeit. Pflanzen müssen die gemauerte Hülle überwuchern, das Gebäude wartet darauf, dass es von Wetterzyklen erfasst wird. Die Masse des Hauses und sein emphatischer Sinn für Dauerhaftigkeit, die Nüchternheit seines Mauerwerks und die Sparsamkeit seiner Form vermitteln ein Gefühl heiterer Gleichgültigkeit – eine Eigenschaft, die es aus der alten Landschaft um sich herum bezieht.
Peter Besley