Ursulinen

Label architecture

Gebaute Imagination

GEBAUTE IMAGINATION

Nachverdichtung, die Freiräume schafft: Die Schule ergänzt den Bestand mit zwei Baukörpern und großzügigen Höfen. Zusätzlich spielen an die industrielle Vergangenheit erinnernde Backstein-Fassaden mit der Fantasie der Betrachter. 


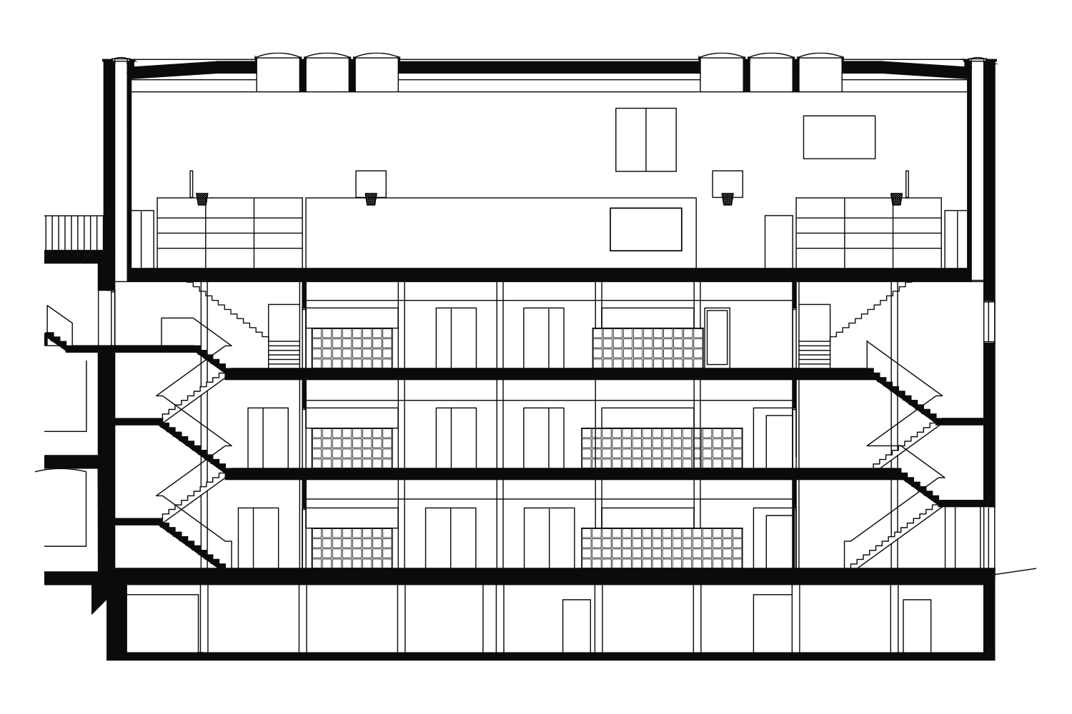
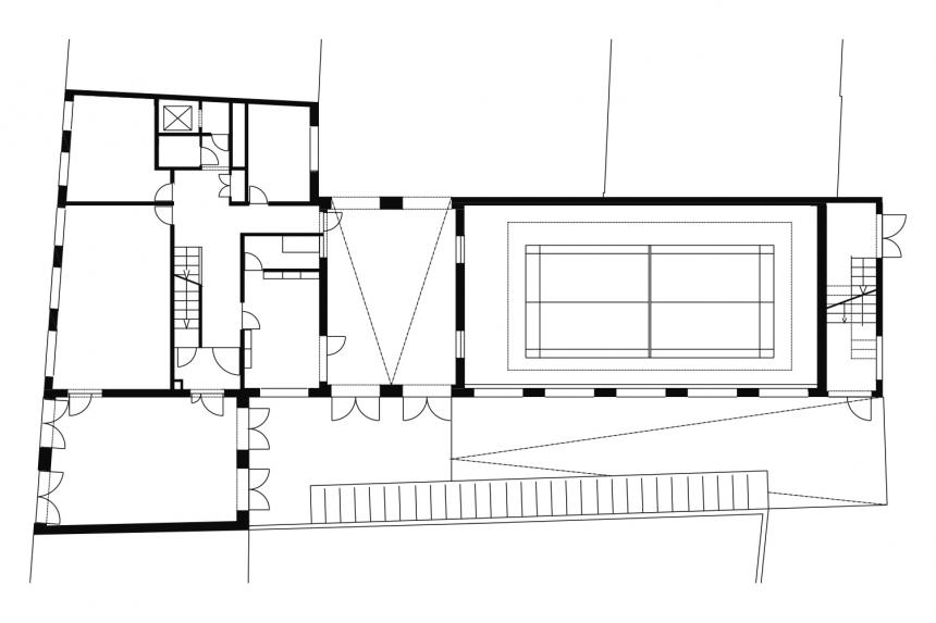
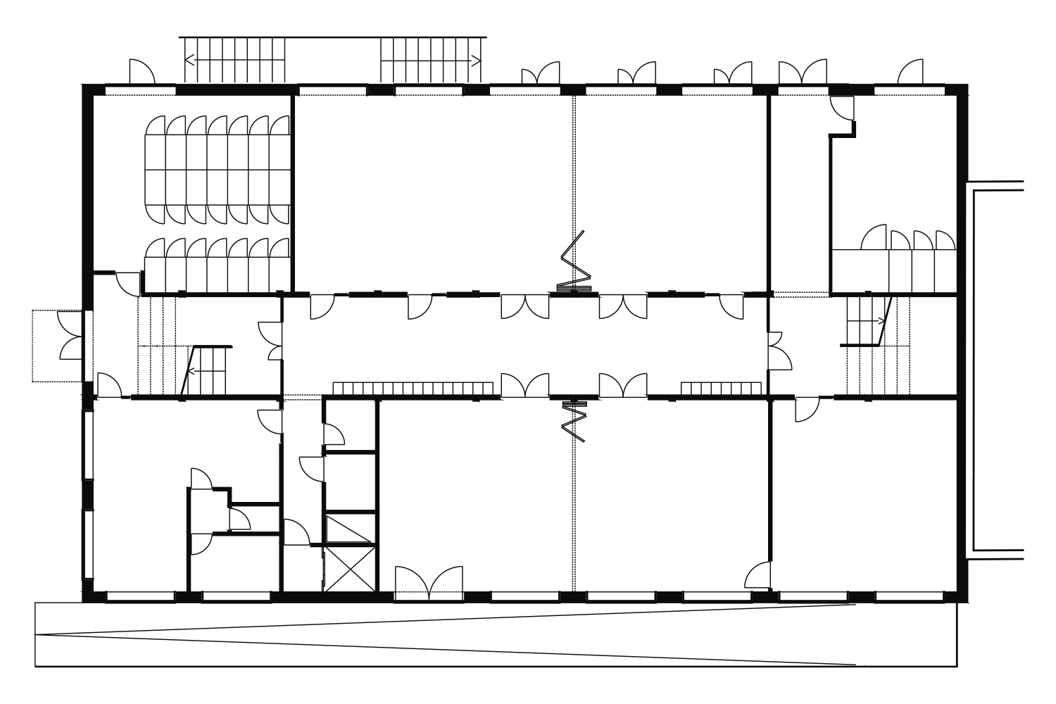
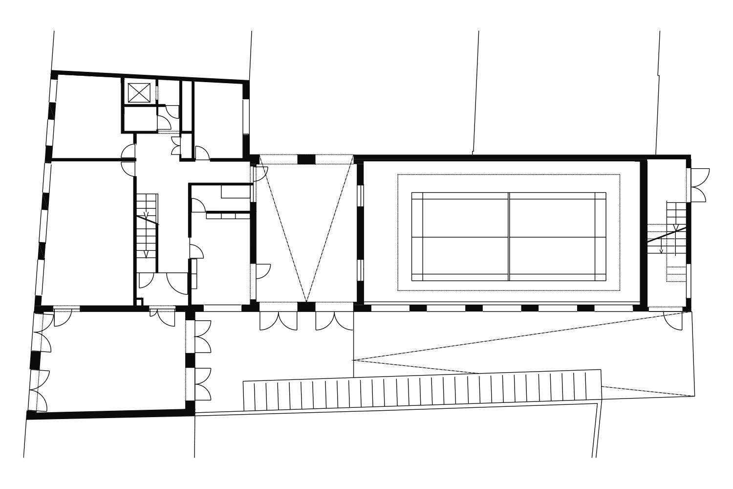
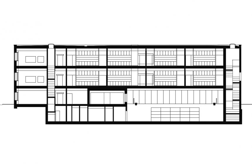
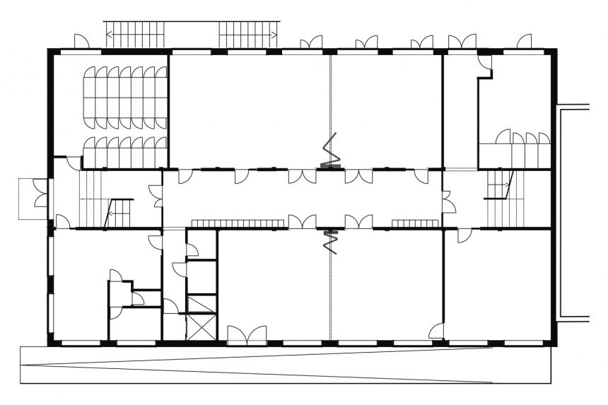
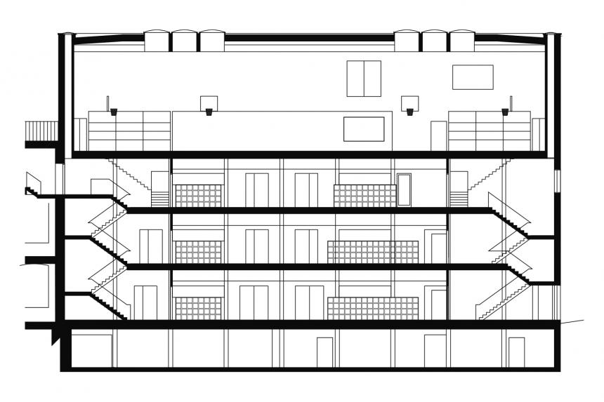
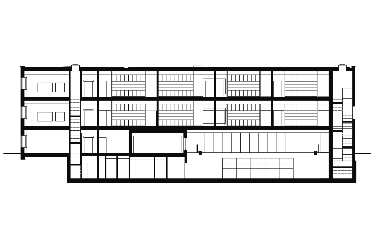
Das Ursulinengelände im Zentrum der belgischen Stadt Mechelen zeichnet sich durch einen undefinierbaren Mix von Gebäudetypen und -stilen aus. Dem dichten, labyrinthischen Geflecht aus öffentlichen Gebäuden und Privatwohnungen wurden zwei weitere Bauten hinzugefügt: Der erste, langgestreckte Baukörper, der an der Straße beginnt und tief in das Gelände hineinreicht, enthält Klassenräume für Kindergarten und Grundschule. Eine halbversenkte Turnhalle und ein überdachter Spielplatz beleben Erdgeschoss und Außenraum. Der zweite Baukörper, ein quadratischer und kompakter monolithischer Block, liegt ein Stück von der Straße entfernt, sodass ein großer Vorplatz entsteht. Darin befinden sich eine Sekundarschule und eine große Sporthalle. 


SPIEL MIT DER ERINNERUNG 
Bei dem Versuch, die Freiflächen des Geländes zu strukturieren, sind eine Reihe von Höfen entstanden, die neben den kompakten Gebäuden große unbebaute Bereiche schaffen und so inmitten des dichten Blocks Raum zum Durchatmen bieten. Der Übergang vom öffentlichen zum privaten Bereich, von der Straße zu den Klassenzimmern, hat eine klare Hierarchie und wird durch die Positionierung und Durchlässigkeit der umgebenden Architektur spürbar. Die Neubauten sind in ihrem Volumen und ihrer Architektursprache in den Bestand integriert. Die vorgefertigten Betonstrukturen sind mit typisch flämischen Ziegeln verkleidet, wobei verschiedene Arten von Mauerwerk und Mörtelfugen verwendet werden. Indem ein Bezug zu den industriellen Archetypen der Vergangenheit hergestellt wird, spielen die Gebäude mit der Erinnerung der Bewohner und stellen die Wahrheit auf den Kopf: Waren die Schulgebäude vielleicht zuerst da, wurden sie ein paar Mal renoviert und wurde der Rest des Gebäudeblocks um sie herum gebaut? 


Label architecture 

City
Mechelen, Belgien
Client
DBFM Scholen van Morgen
Architect profile
Usable area
4.014 m²
Construction time
2017 – 2019
Construction costs
8.334.952,26 EUR