Rathaus Bissendorf

blocher partners

Rathaus Bissendorf

RATHAUS BISSENDORF

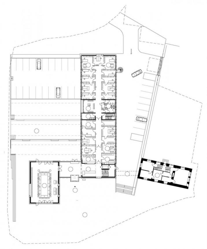
Die Anordnung der Gebäude bildet einen neuen Ortsmittelpunkt für die Gemeinde Bissendorf. Der Stadtraum wird somit neu definiert.

 

Den Neubau des Rathauses von Bissendorf gestalten die Architekten als Gebäudeensemble aus Verwaltungsbau und Bürgersaal. Zwei versetzt angeordnete Baukörper bilden mit dem Kirchplatz und dem Bürgergarten qualifizierte Stadträume aus und definieren die Ortsmitte neu. Die Fassadengestaltung in hellem Klinker entwickelt im Zusammenspiel mit einer modernen Umsetzung einen gelungenen Kontrast zur archetypischen Gebäudeform. Der helle Klinker sorgt in Verbindung mit dem präzise geschnittenen Titan-Zinkblech-Dach für eine zeitgemäße Interpretation des traditionellen Bautypus.

 

blocher partners

City
Bissendorf, Düsseldorf
Client
Gemeinde Bissendorf
Architect profile
Plot size
5.200 m²
Built-up area
982 m²
Usable area
2.017m²
Enclosed volume
10.133 m³
Construction costs
3,7 Mio. EUR