Stadthaus in Rosario

Diego Arraigada Arquitectos

Stadthaus in Rosario

HAUS MIT DURCHBLICK

Dieses Stadthaus im argentinischen Rosario punktet mit einem expressiven Minimalismus. Das gekippte Lochziegelmuster und die schräg angeordneten Fenster verstärken diesen Eindruck.

 

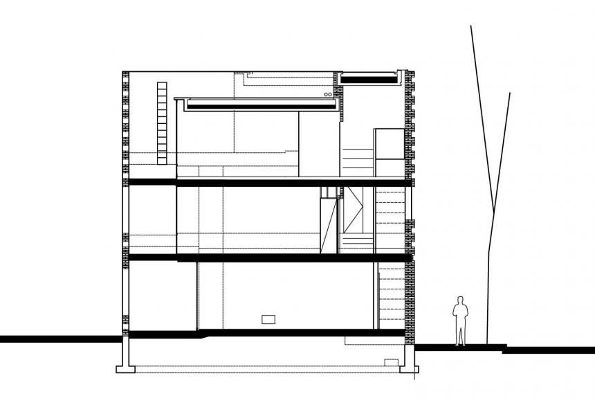
Eine städtische Vorschrift, die die Verwendung von bis zu zwölf Meter hohen tragenden Ziegelwänden vorschreibt, war Ausgangspunkt für eine größere Untersuchung darüber, in welchem Ausmaß Ziegel als strukturelle und konstruktive Grundeinheiten genutzt werden können. Dieses Einfamilienhaus-Projekt wurde in die Untersuchung einbezogen. Das dreistöckige Stadthaus liegt in einem Viertel mit mittlerer Baudichte und zeichnet sich durch eine kompakte Grundfläche mit großem Hinterhof aus. Die Entscheidung, die Ziegel sichtbar zu lassen, zielte darauf ab, eine Beziehung zu den traditionellen Baumethoden der Stadt herzustellen und für einen langfristigen Erhalt der Oberflächen zu sorgen. Drei tragende Mauerwerkswände rechtwinkelig zur Straße sind die wichtigsten Bauelemente, die die Buchten definieren, in denen sich die verschiedenen Räume verteilen.

Parallel zur Fassade verbindet eine Treppe die drei Ebenen. Ausgangspunkt für die Materialgestaltung war eine monolithische Strukturziegelwand, auf die keine zusätzliche Schicht für die Wärmeisolierung oder zum Schutz vor Wasser aufgebracht wurde. Die notwendigen Energie- und Komfortansprüche wurden durch die eigene Masse und den Einsatz eines wasserdichten Mörtels erfüllt. Decken und Böden sind aus Sichtbeton. Untersuchungen über Verbindungs- und Durchbruchsmöglichkeiten in Bezug auf das strukturelle Verhalten führten zu einer Lösung mit einer Kreuzverbindung für Fassade und Innenwand. Der Rest der Fassade wiederholt das gleiche Muster als Basrelief, um überflüssiges Material zu sparen und ein kontinuierliches Gitter zu schaffen, welches das Bauwerk vereinheitlicht. Öffnungen unterschiedlicher Größe wurden angeordnet, um Türen und Fenster innerhalb der diagonalen Logik des Musters zu erschaffen. Gelegentlich wurden Hartglasscheiben ohne sichtbaren Rahmen direkt in die Wände eingelassen.

 

Diego Arraigada Arquitectos

City
Rosario, Argentinien
Client
Diego Arraigada
Architect profile
Plot size
310 m²
Built-up area
280 m²
Usable area
240 m²
Enclosed volume
1.215 m³
Construction time
2012 – 2014
Construction costs
200.000 EUR