Anneliese Prost Musikforum Ruhr

Bez+Kock Architekten

Anneliese Prost Musikforum Ruhr

Im respektvollen Dialog

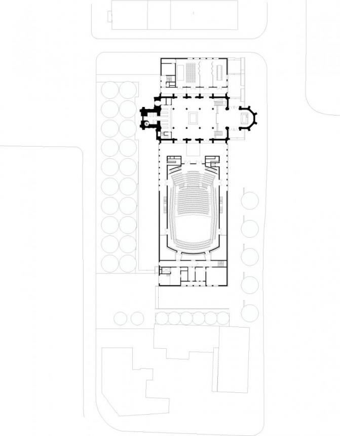
Der Neubau des Musikforums im Zentrum des Viktoria Quartiers in Bochum reagiert auf die besondere städtebauliche Situation dieses Stadtviertels. Während seine Gebäudeflucht an der Viktoriastraße zurückspringt und so einen Vorplatz für das Musikforum bildet, ragt der Chor der profanierten Marienkirche in den Straßenraum hinein, betont dabei deren stadträumliche Dominanz und markiert gleichzeitig den neuen Haupteingang für die Besucher.

Zu beiden Längsseiten der Kirche wurden neue Baukörper angeordnet, die sich unmittelbar an der Größe des Kirchenschiffs orientieren und sich innenräumlich mit diesem verzahnen. Von der Viktoriastraße aus gelangen die Besucher in den Chor der Marienkirche. Wenige Stufen führen hinab in das Kirchenschiff, das nunmehr als wesentlicher Foyer- und Pausenbereich dient und darüber hinaus als zusätzlicher Saal mit ganz eigenem Charakter bespielt werden kann.

Aus den drei mittleren Jochen der Kirche erfolgt der Übergang nach Süden zum großen Konzert- und Veranstaltungssaal (mit rund 1000 Plätzen) und nach Norden zum deutlich kleineren Multifunktionssaal. Der Konzert- und Veranstaltungssaal wird geprägt vom Wunsch nach einer möglichst direkten, geradezu intimen Beziehung zwischen Orchester und Publikum. Der Zuschauerbereich wurde dazu in mehrere kleine Einheiten gegliedert, welche die Bühne allseitig umgeben und mehrere „erste Reihen“ und somit das Gefühl der Nähe zur Bühne und zum Klang erzeugen. Das Bauwerk wird durch wenige, sorgfältig ausgewählte Materialien bestimmt. Die Fassade des Neubaus ist mit einer Vorsatzschale aus weiß geschlämmtem Klinkermauerwerk versehen, dessen Scherben dem des Kirchenbaues entsprechen. Die verglasten Elemente sind mit Kupferprofilen gefasst, die auch im Innenbereich für alle wesentlichen Metallelemente eingesetzt wurden. Die baulichen Änderungen in der Kirche sind an Boden und Wänden in hellem Terrazzo gehalten, Decke und Wände verschmelzen so zu einer modulierten Topografie und werden durch die Möbeleinbauten in Kirschbaumholz kontrastiert.

 

Bez+Kock Architekten

City
Bochum, Deutschland
Client
Stadt Bochum
Architect profile
Plot size
8.620 m²
Built-up area
3.596 m²
Usable area
5.960 m²
Enclosed volume
58.713 m³
Construction time
2013 – 2016
Construction costs
38 Mio. EUR