Wohnhaus Scheinzwerg

Reich + Seiler Freie Architekten BDA

Wohnhaus Scheinzwerg

REDUZIERTE AUSSENWIRKUNG

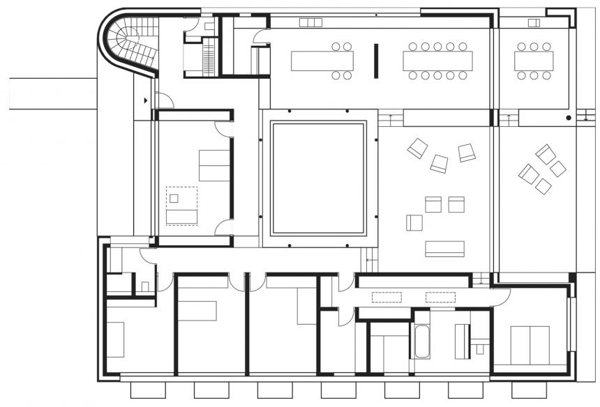
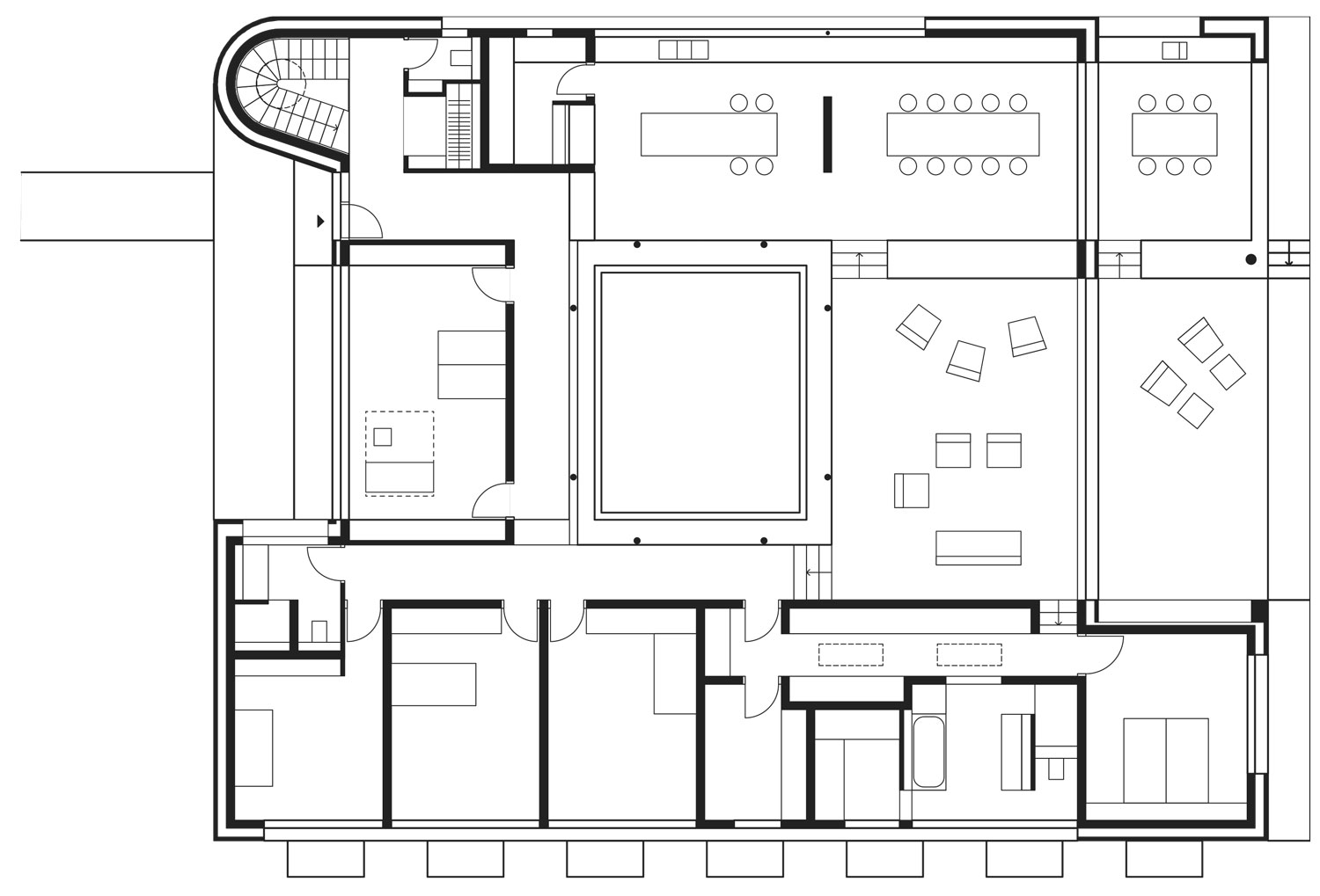
Werthaltige Materialien wie heller Backstein und Muschelkalk geben diesem eingeschossigen Wohnhaus eine reduzierte, aber elegante Außenwirkung. Im Inneren gruppieren sich die Räume um ein Atrium.

 

Nach Abriss eines bestehenden Villen-Gebäudes aus den 50er Jahren wurde auf einem ca. 2.100 qm großen nach Osten, zum Garten, hin abfallenden Grundstück in der Waldstadt von Karlsruhe ein neues Einfamilienhaus errichtet. Wunsch der Bauherrschaft war es, ein in der Außenwirkung reduziert wirkendes Gebäude zu errichten. Das Gebäude ist typologisch eingeschossig um ein offenes Atrium entwickelt und orientiert sich darüberhinaus mehrheitlich zum Gartenraum. Die Wohnräume (Küche, Essen, Wohnen) sind offen, ineinander fließend auf verschiedenen Höhenniveaus und zum Garten abfallend entworfen. Schlaf- und Kinderzimmer sind mitsamt den zugehörigen Nebenräumen (Bäder, Ankleide und Waschraum) in einer eher kompakt organisierten Einheit angeordnet. Die Raumfolgen sind angemessen und zurückhaltend entwickelt.

Die detailmäßige und handwerkliche Umsetzung des Entwurfs erfolgt, dem reduzierten Grundgedanken folgend, präzise und auf baumeisterlichem Niveau. Besonderes Augenmerk gilt dem disziplinierten Fügen der einzelnen Bauglieder. Die Materialisierung ist reduziert auf wenige werthaltige Materialen wie Eichenholz, Muschelkalk und Ziegelstein. Der gewünschte Bauerngarten wird durch terrassierte Ebenen strukturiert und findet seinen Abschluss in Gartenküche und Schwimmbad.

 

Reich + Seiler

City
Karlsruhe, Deutschland
Client
Privat
Architect
Reich + Seiler Freie Architekten BDA
Plot size
2.200 m²
Built-up area
398 m²
Usable area
482 m²
Enclosed volume
2.509 m²
Construction time
2012 – 2013