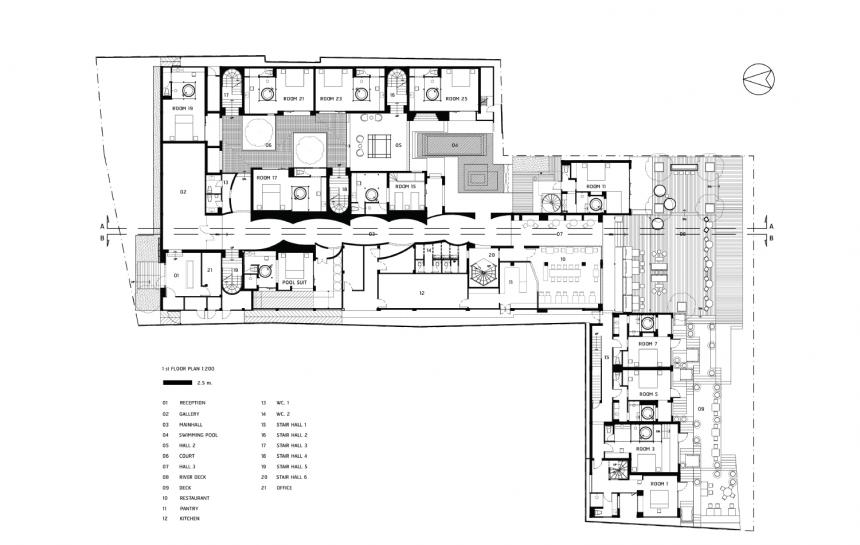
Sala Ayutthaya Hotel

Onion

Sala Ayutthaya Hotel

Tanzende Backsteinmauern

Sala Ayutthaya ist ein Hotel mit 26 Zimmern, in dem wir die lokale Technik des Baus mit handgefertigten Ziegeln erforscht haben, um eine räumliche Wirkung auf die Beschattung und Schattierungen der Wände zu erzielen.

 

Wir haben uns für die Verwendung von Ziegelsteinen entschieden aufgrund optischer Einwirkungen auf den Ziegelbau des Phudthai Sawan Tempels, der direkt gegenüber der Sala Ayutthaya am Südufer des Choa Phraya-Flusses liegt. Die Proportionen sind phantastisch. Wir waren beeindruckt von den Gebäuden und der Atmosphäre, die sie vor allem in der Abenddämmerung und im Morgengrauen ausstrahlten. Wir begannen uns vorzustellen, wie es sich anfühlen würde, durch diese massiven Mauern in das Innere hinein zu spazieren. Das Hauptmerkmal unseres Entwurfs beruht auf dem Gegensatz zwischen der Einfachheit der weißen Wände und den vielgestaltigen Ziegelmauern, die den langen und schmalen Außenhof von Sala Ayutthaya begrenzen. Die formale Qualität der Wand interessierte uns dabei weniger als die ständigen Veränderungen von Beschattung und Schattierung an der Wand selbst. Wir nehmen die kursiven Linien wie ein Element der thailändischen Kunst wahr, was sich an traditionellen Ornamenten, Mustern und Tanzhaltungen zeigt. Gegen 14 Uhr treffen sich die Schatten der beiden parallelen Wände am Boden. Sie bilden die Zeit ab, in Form eines gekrümmten Dreiecks. Wir haben keine Software für die Gestaltung der Ziegelwände verwendet. Die gelungenen Ergebnisse sind weitgehend auf die Fertigkeiten der örtlichen Maurer zurückzuführen. Auch die anfänglichen Architekturzeichnungen wurden mit der Hand erarbeitet. Wir zogen Halbkreise, welche die kreisförmige Treppe umgaben. Als das Gebäude fertig war, sah die Textur der Wände so aus, als seien sie gewebt worden.

Sie waren dynamisch und lebendig. Wir schätzten die Handwerkskunst sehr positiv ein. Es gibt verschiedene Methoden, mit denen die umgebenden Ziegelmauern konstruiert werden können. Die eine Technik besteht darin, massive Wände zu bauen, die von außen und innen blickdicht sind. Die andere Technik besteht darin, einen kleinen Hohlraum zwischen den einzelnen Ziegeln zu lassen, damit Licht durchscheinen und in das Innere der Waschräume vordringen kann. Wir haben auch die Muster der Ziegelschichtung entworfen, um einen interessanteren negativen Raum zu schaffen. Dies ist an der Wand neben dem privaten Swimmingpool in der Poolvilla-Suite zu sehen. Aus diesem Projekt haben wir gelernt, dass es bei handgefertigten Ziegeln keine Grenzen für das Design gibt. Jeder Stein war anders. Das Gleiche galt für die u fritz-hoeger-preis.com/onion Einprägung unseres Namens in den Ziegeln. Jeder Name sah etwas anders aus, obwohl er vom gleichen Block geprägt war. Die Resonanz auf das Projekt in der Öffentlichkeit ist zufriedenstellend. Wir dachten zunächst, dass Sala Ayutthaya ein Boutique-Hotel für junge Liebespaare werden würde. Schlussendlich wurde es zu einem Familienhotel, in dem sich Großeltern und Enkel oder Großfamilien mit vielen Kinder gerne aufhalten. Die Gestalt der historischen Denkmäler des Königreichs von Ayutthaya wurde wieder aufgegriffen. Was wir erreicht haben, ist, neben den Ruinen wie- der Leben einziehen zu lassen.

 

Onion

City
Phra Nakhon Si Ayutthaya, Thailand
Client
Arisara Chaktranon Siriyot Chaiamnuay
Architect profile
Plot size
2.150 m²
Usable area
2.148 m²
Enclosed volume
17.184 m³
Construction time
2011– 2014
Construction costs
9,1 Mio. EUR