NATO-Flugplatz Nordholz

bbp : architekten bda

NATO-Flugplatz Nordholz

Wie eine Trutzburg

Der Triebwerk-Teststand auf dem NATO-Flugplatz Nordholz dokumentiert, dass ein rein funktionales Gebäude höchsten ästhetischen Ansprüchen genügen kann. Was auch am Backstein liegt.

 

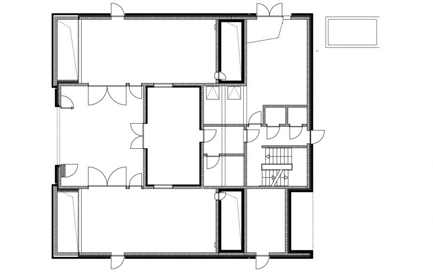
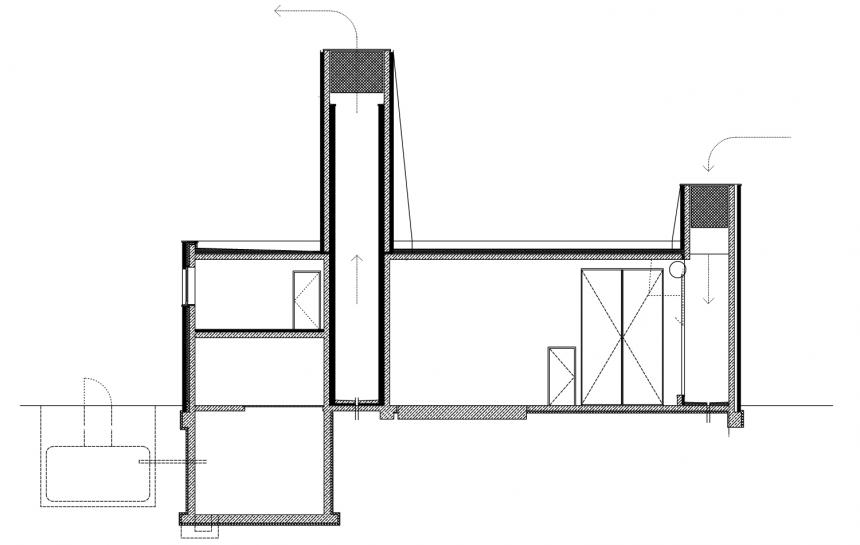
Südlich des Flugfeldes befindet sich in unmittelbarer Nähe des Ersatzteillagers der Triebwerk-Teststand. Die Ausführung erfolgte als Massivkonstruktion mit einem Flachdach. Die Gebäudehülle ist in Stahlbetonbauweise mit einer äußeren Hülle aus Vormauerziegeln erstellt, Fenster und Türen bestehen aus Aluminium bzw. Stahl. Die Gesamtkonstruktion ist durch Einsatz dauerhafter und wartungsfreier/-armer Bauteile für eine lange Lebensdauer ausgelegt und sichert somit einen geringen Unterhaltungsaufwand. Die Haupterschließung des Gebäudes erfolgt von den östlich und westlich angeordneten Zufahrten, welche der Anlieferung dienen. Das rechteckige Gebäude ist in einen ein- und einen zweigeschossigen Teil gegliedert. Beide Gebäudeteile schließen mit derselben Attikahöhe ab. Der eingeschossige Teil wird durch je zwei Zuluft- und Ablufttürme in den Ecken markiert. Auf der westlichen Seite schließt sich der zweigeschossige Teil an. Trotz der profanen Funktion konnte dem Gebäude ein eigener architektonischer Ausdruck verliehen werden.

 

bbp : architekten bda

City
Nordholz, Deutschland
Client
Staatliches Baumanagement Elbe-Weser
Architect profile
Plot size
11.000 m²
Built-up area
733 m²
Usable area
253 m²
Enclosed volume
3.526 m³
Construction time
2009 – 2012
Construction costs
3,2 Mio. EUR