Haus K
Bottega + Ehrhardt Architekten

NATÜRLICHE LEBENDIGKEIT
Das Wohnhaus in bester innerstädtischer Hanglage passt sich mit seinem grau changierenden Backsteinmauerwerk harmonisch an seine Umgebung an.
An einer der zahlreichen innerstädtischen Hanglagen von Stuttgart, mit Blick auf das Neckartal, positioniert sich das Haus K als oberstes Haus am Ende einer Sackgasse in direkter Nachbarschaft zum Waldrand. Das dreigeschossige Gebäudevolumen mit seinen eingeschnittenen Terrassen reagiert vielfältig auf die Topographie des Ortes und fügt sich mit seinem Sichtmauerwerk aus dünnformatigen, grauen, wassergestrichenen und kohlegebrannten Ziegeln als scharfkantige, monolithische Skulptur in seine Umgebung ein. Das Mauerwerk mit seinen individuell gebrannten Steinen und deren changierenden Grautönen erzeugt ein hohes Maß an Stofflichkeit und Wärme und verleiht dem Baukörper seine natürliche Lebendigkeit im Kontrast zur klaren und kubischen Architektursprache.
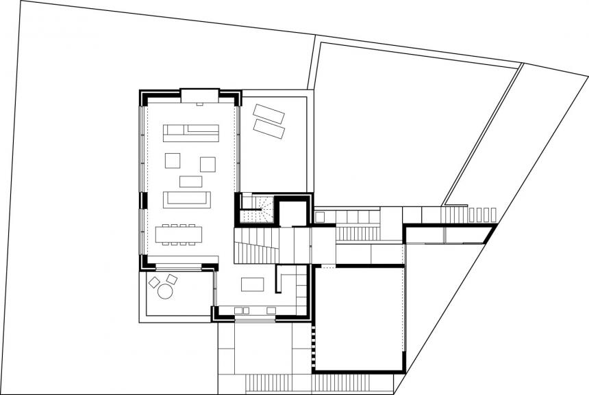
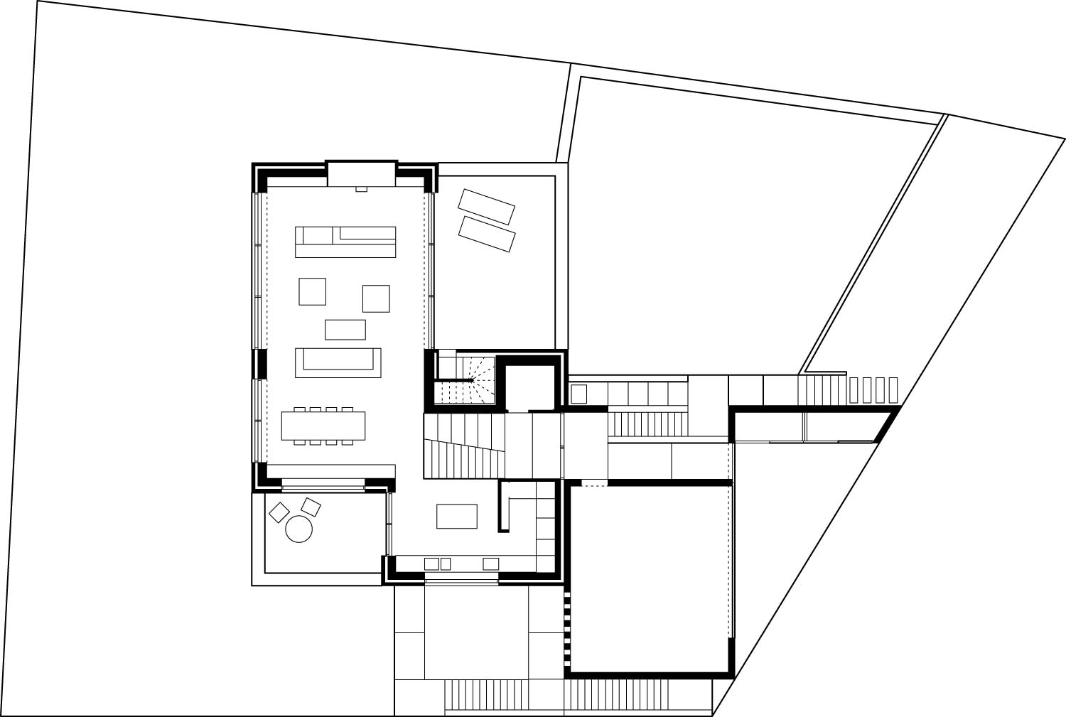
Darüber hinaus harmoniert der graue Klinker mit den Sichtbetonflächen, welche in Form von Fertigteilen auch sämtliche Fenstersimse, Terrassenbrüstungen und Attiken bilden. Das Wohnhaus beinhaltet eine 240 qm große Bauherrenwohnung über zwei Etagen sowie eine 125 qm große Einliegerwohnung im Gartengeschoss. Der Hauseingang befindet sich auf einer Zwischenebene und wird zum Bindeglied der beiden Wohnungsetagen. Eine konisch zulaufende Sichtbetontreppe mit flachen, großen Stufen führt ins offene und lichtdurchflutete Wohngeschoss. Diagonal versetzte Terrasseneinschnitte zonen die offene Küche und den Wohnbereich mit der Arbeitsbibliothek aus. Von der südorientierten Wohnterrasse aus, mit Walaba-Stauseeholz-Dielen belegt, gelangt man über eine ins Gebäude integrierte Wendeltreppe auf die Dachterrasse. Großflächige, raumhohe Holz-Aluminium Schiebefenster erlauben eine größtmögliche Transparenz und thematisieren das Durchwohnen. Eine eingestellte, umlaufbare Wandscheibe mit offenem Kamin trennt die Bibliothek vom Wohnraum.
Im darunterliegenden Geschoss befinden sich die Schlafräume und Bäder sowie der Fitness- und Saunabereich mit einer angegliederten Loggia, die sich in der Fassade mit einem marokkanischen Mauerwerksverband abzeichnet. Eine kreuzförmige Erschließung, mit zahlreichen integrierten Wandschränken, eröffnet Blicke in alle Himmelsrichtungen. Eine homogene mineralische, dunkelgraue Beschichtung in allen Räumen unterstreicht das Prinzip des offenen Grundrisses. Hochwertige Schreinereinbauten in nahezu allen Räumen stärken das durchgängige innenräumliche Ausbaukonzept. Das Wohnhaus verfügt über ein Passivhauskonzept mit einer kontrollierten Be- und Entlüftung mit Wärmerückgewinnung, Niedertemperaturheizungen und Photovoltaik. Vor allem durch seine langlebige und zeitlose Klinkerfassade verpflichtet es sich energetischer und funktionaler Nachhaltigkeit.
Bottega + Ehrhardt Architekten GmbH