Hessenwaldschule in Weiterstadt
wulf architekten
Energieeffiziente Schullandschaft
In drei hellgrau geschlämmte Backstein-Pavillons gliedert sich der Neubau der Hessenwaldschule in Weiterstadt. Er erfüllt zudem alle Anforderungen eines energieeffizienten Gebäudes.

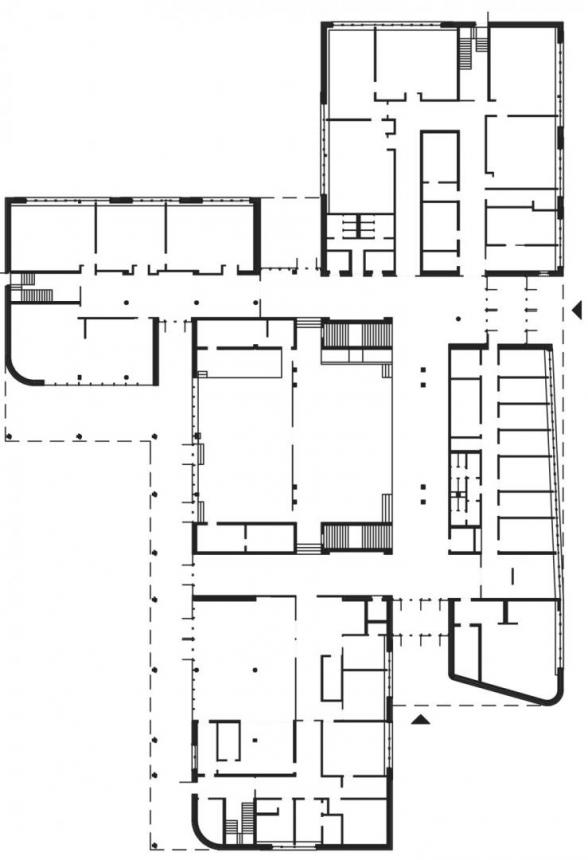
Die Hessenwaldschule befindet sich in einer Waldlichtung nahe der Ortschaft Gräfenhausen, einem Ortsteil von Weiterstadt (Darmstadt). Sie ist eine kooperative Gesamtschule der Sekundarstufe I mit durchlässigen Schullaufbahnen wie Gymnasium, Realschule, Förderstufe und verbundener Haupt-/ Realschule für insgesamt 700 Schüler. Der Neubau gliedert sich in drei pavillonartige Baukörper, die sich um eine gemeinsame Mitte gruppieren.
Die Pavillons schaffen Individualität und Identität für die jeweiligen Jahrgangsstufen und verfügen in ihren beiden Obergeschossen über jeweils einen Differenzierungsraum und fünf Klassenräume. Auf der Eingangsebene der Pavillons befinden sich die Fachklassen, Verwaltung, Mensa und Schulküche. Im Zentrum des neu geschaffenen Ensembles wurden die Gemeinschaftsbereiche wie Aula, Musikraum und Pausenhalle als große „öffentliche Mitte“ ausgebildet. Um diese lichtdurchflutete, zentrale Halle, die mit ihren Holzoberflächen und dem Terrazzoboden die naturnahe Umgebung zitiert, gruppieren sich die Pavillons. Durch den perforierten Sonnenschutz vor der umlaufenden Galerie entsteht dort eine Lichtstimmung, die der unter Bäumen ähnlich ist. Alle Bereiche des Schulensembles sind räumlich koppelbar. Der Entwurf setzt die gewünschte räumliche Trennung und Erkennbarkeit der Jahrgangsstufen baukörperlich um und stärkt den Genius Loci, der in der Besonderheit des Grundstücks und dem Reiz der Waldlichtung liegt. Die Architektursprache der neuen Schule unterstützt die konzeptionelle Klarheit des Entwurfs auf angemessene Weise.
Die ruhig gestalteten Pavillons sind als solche deutlich ablesbar. In ihre Fassaden aus hellgrau geschlämmtem Sichtmauerwerk sind große, liegende Fensteröffnungen mit tiefen Leibungen eingesetzt. Die Sonderbereiche in den Fluren oder im Erdgeschoss sind bewusst transparent entworfen. Damit wird einerseits die baukörperliche Figur artikuliert, andererseits auch im Inneren ein sinnlicher Kontrast zwischen der „Klasse“ und den „Verkehrs- und Gemeinschaftsflächen“ entwickelt.
Für jeden Jahrgangsbereich wurde ein „Lesepodest“ entwickelt, das den flexibel nutzbaren Bereich zwischen den Klassenräumen räumlich zoniert und einen Rückzugsort im Forum schafft. Der Freiraum wird als interpretierbarer Ort verstanden, der vom Wechselspiel aus Kontakt und Rückzug, freiem Spiel und Gruppe lebt. Je nach Bedarf kann er zwischen den Gebäuden und dem Waldrand mit kleinen Gartenräumen wie „Gartenlabor“, „Baumschule“, „Schulgarten“ oder „grünes Klassenzimmer“ bespielt werden. Der hohe energetische Anspruch der Schule dokumentiert sich in der Einhaltung der Kriterien des Passivhaus-Institutes bezüglich des Primärenergiebedarfs des gesamten Gebäudes.
wulf architekten