Hochschule Luzern – Musik

Enzmann Fischer und Büro Konstrukt

Neubau der Luzerner Hochschule für Musik

KLINGENDE MANIFESTATION

Die mineralische Materialwelt des Neubaus der Luzerner Hochschule für Musik ist das Ergebnis einer feinfühligen Auseinandersetzung mit dem Ort und folgt dem Credo der gepflegten Rauheit. 

Klingende Manifestation

Im heterogenen Industriegürtel zwischen Anlieferungsinfrastrukturen und neuer Flaniermeile der Stadt Luzern setzt sich der Neubau an den Landschaftspark Allmend und versteht die Hochschule als weiteren öffentlichen Hotspot im Kontext des Kulturareals Südpol. Der architektonische Ausdruck der Schule, wie Volumen, Fassade und Inneres, orientiert sich am Genius Loci und spielt mit dem Bild des historischen Industriebaus: ein in vielen Beispielen optimaler Ausgangspunkt für Kulturschaffende und Kreative. 

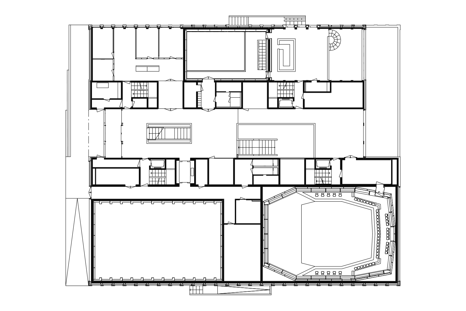
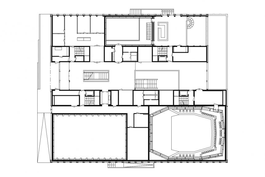
VIELFÄLTIGE RAUMABFOLGEN 
Der Grundriss ist in Schichten aufgebaut. Das Gebäude wird dabei als fünfgliedrige, gerichtete Anlage organisiert. Eine zentrale Längshalle als urbaner Innenraum oder „Stadt in der Stadt“ erschließt großzügig die Geschosse. Sie wird beidseits flankiert von zwei schmalen Infrastrukturstreifen, welche die Fluchttreppenhäuser, Lifte und Nebenräume aufnehmen. Vier Aufbauten stoßen auf dem Dach wie Kamine aus dem Gebäude. Die Lichthöfe darunter durchdringen das ganze Haus und dienen als Klangtürme. Im Parterre reagiert ein zweiseitiger Zugang zur Haupteingangshalle sowohl auf die übergeordnete Adressbildung als auch auf die unterschiedlichen Bedürfnisse an Öffentlichkeit und die damit verbundenen Betriebsabläufe. Die Hauptsäle wie der Kammermusiksaal, die Blackbox und der Jazzclub sind hier zentral angeordnet. Grundsätzlich ist an die zwei gleichwertigen Erschließungsschichten je ein Bund Räume mit der notwendigen Feinverteilung angefügt. Eine Vielzahl von Ensembleräumen und Einzelunterrichtszimmern folgt so in den Obergeschossen. Der räumliche Aufbau erzeugt vielfältige und spannende Raumabfolgen. In den allermeisten Fällen sorgen „Raum in Raum“ Konstruktionen für die Erfüllung der bauakustischen Anforderungen. 

LOWTECH-KONZEPT
Die Konstruktionsweise des Gebäudes ist sehr robust und entspricht der gerichteten Trag- und der entworfenen Raumstruktur. Mit der Mischbauweise von Ort- und Vorfabrikationsbeton wird geschickt auf die vorhandenen Spannweiten reagiert. Das Low-tech-Haustechnikkonzept entspricht dem gewählten architektonischen Ausdruck. Die Klinkerfassade übersetzt die physische Schwere und Prägnanz des Baukörpers ins Äußere. Die großflächigen und ruhigen Strukturierungen der Klinkerhülle bilden die innere Logik und mit ihr die Raumschichten ab. Relief, Filtermauerwerk und Lisenen sind Hauptmerkmale der Tektonik der Klinkerfassade. Die innere mineralische Materialwelt wird dabei sehr stimmungsvoll ergänzt und folgt dem architektonischen Credo einer „gepflegten Rauheit“ im Ausdruck. Das Projekt überzeugt in seinem gesamten Erscheinungsbild durch eine feinfühlige Auseinandersetzung mit dem Ort und der gestellten Bauaufgabe. Dadurch ergibt sich eine klingende, architektonische Manifestation mit einem ausdrucksstarken, skulpturalen Volumen in Klinkersteinen. 

 

Enzmann Fischer und Büro Konstrukt

City
Luzern, Schweiz
Client
LUPK (Luzerner Pensionskasse)
Usable area
7.743 m²
Construction time
2016 – 2020
Construction costs
83,5 Mio. EUR