Haus Kallen

Johannes Götz und Guido Lohmann

Haus Kallen

Markanter Familiensitz

Das Wohnhaus für zwei Generationen komplettiert den neuen Aussiedlerhof einer Bauernfamilie. Seine Gestalt ist angelehnt an die typischen Vierkanthöfe der Region.

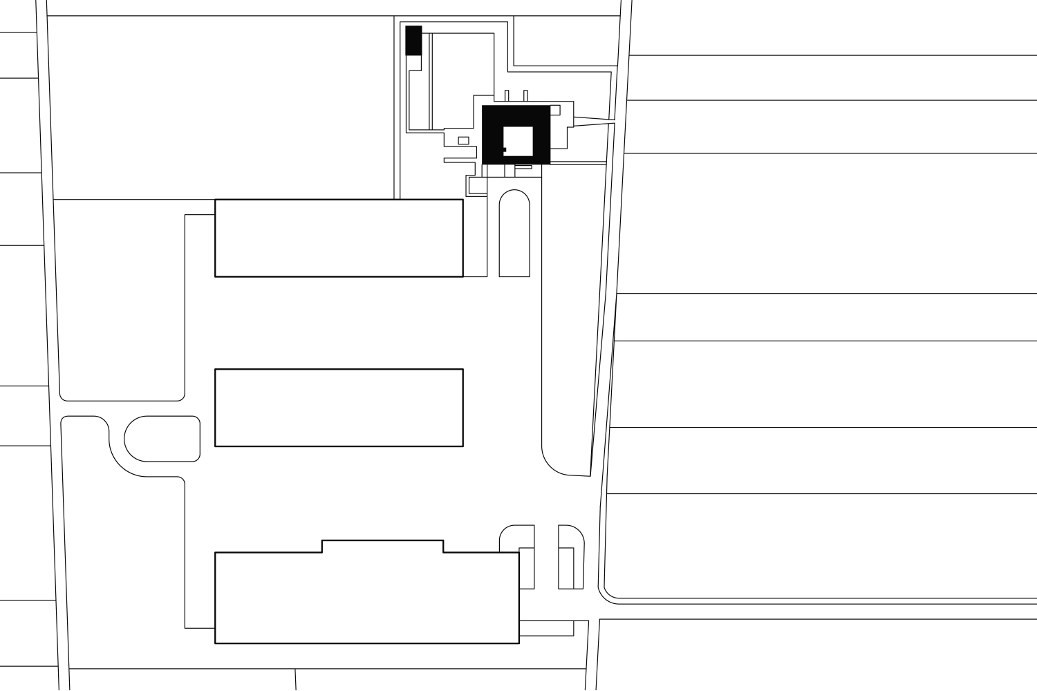
Inmitten des Dorfes Stürzelberg, eines Ortsteils von Dormagen, liegt der Hof von Max-Josef und Christa Kallen. Beide stammen nicht nur aus Familien, die seit Generationen Bauern sind, auch sie sind es mit Leib und Seele. Von ihren Eltern hatten sie den Hof zunächst als klassischen Familienbetrieb mit Ackerbau und Viehzucht übernommen. Der Preisverfall in der Landwirtschaft sowie die Potenziale der guten Böden und der nahen, großen Absatzmärkte führten in den 1990er-Jahren zu einer Spezialisierung auf Kartoffel-, Spargel- und Erdbeeranbau und zu einer erheblichen Expansion der bewirtschafteten Fläche. Der Hof und seine Gebäude genügten den neuen Anforderungen nicht mehr, sodass Familie Kallen entschied, von der Dorfmitte an den Ortsrand auszusiedeln. Im Jahr 2006 wurde der neue Betriebsstandort eingeweiht.

Er bestand zu diesem Zeitpunkt aus zwei großen Industriehallen, die um eine dritte erweitert werden sollten. Außerdem sollte ein Wohnhaus entstehen. Denn der Plan der Familie war es, nicht nur einen Wirtschaftsstandort zu begründen, sondern einen neuen Hof und einen neuen Familiensitz. Da inzwischen Sohn Johannes und dessen Frau Agathe mit im Betrieb waren, wünschten sich die Bauherren ein „Doppelhaus“. Mit der Aufgabe, ein Wohnhaus für beide Generationen zu entwerfen, wurde das Architekturbüro Johannes Götz betraut. Die besondere Herausforderung: Für die Schaffung eines solchen Hofes mit Familiensitz benötigt das Gebäude eine große, an den drei Industriehallen orientierte Kubatur, die das Haus zum Bestandteil eines ausgewogenen Ensembles macht – das Baurecht erlaubt im Außenbereich aber nur eine beschränkte Wohnfläche. Die Architekten lösten diesen Konflikt, indem sie ein relativ großes Volumen setzten und aus diesem einen Innenhof ausstanzten, der die verbleibende Wohnfläche auf das zulässige Maß beschneidet.

Das Haus erschließt sich in definierten Schritten. Man kommt durch ein Baumkarree darauf zu, das wie ein Filter zwischen Haus und Hof steht, und gelangt dann durch ein offenes Tor in den Innenhof. Dieser ist von vier tiefen Rundbogenpaaren umrahmt, die ihm eine prägnante Identität geben. Im Ziegelpflaster taucht das Bogenmotiv in abgewandelter Form als Kreis wieder auf. In der Flucht des Tordurchgangs liegt der Hauseingang. Er teilt die Grundrissfigur, sodass sich die gewünschten zwei Wohneinheiten in U-Form ergeben. Der Hof liegt außermittig im Baukörper. Dadurch sind die Flügel unterschiedlich tief. Im Dach sind die äußeren Flächen mit der gleichen Neigung ausgeführt, die inneren passen sich den Flügeltiefen an. Der vordere Flügel ist so schmal, dass die innere Dachfläche entfällt und ein Pultdach entsteht. An seiner Hofseite findet die Teilung des Baukörpers durch den Tordurchgang mit dem darüberliegenden Trockenraum aus Holz eine Entsprechung in Form einer großflächigen Holzbeplankung. Diese ist ebenso wie die Bögen, der Laden vor der hohen Loggia, die Materialien Backstein sowie Eichenholz und der an den Typus des Vierkanthofes angelehnte Entwurf eine Reminiszenz an alte Bauernhäuser des Rheinlandes. Das ist auch der umgebende, mit breiten Ziegelbänken gefasste Garten, der mit seinem Gartenhaus den Endpunkt der Gesamtanlage markiert.

Johannes Götz und Guido Lohmann

City
Dormagen, Deutschland
Client
Christine und Max-Josef Kallen, Agathe und Johannes Kallen
Architect profile
Plot size
1.400 m²
Usable area
470 m²
Enclosed volume
2.564 m²
Construction time
2015 – 2016