Leietheater Deinze

TRANS architectuur | stedenbouw

Eine Ode an die Luministen

EINE ODE AN DIE LUMINISTEN

Der Luminismus ist eine Stilrichtung der Malerei mit Figuren, deren Silhouette in Licht gehüllt ist. Die Luministen, zu denen auch Emile Claus (1849 – 1924) aus Deinze gehört, setzen in ihren Werken auf starke Kontraste von Sonnenlicht und Schatten, sodass die dargestellten Szenen gewissermaßen aufleuchten und dennoch realistisch bleiben. Das Leietheater interpretiert die Werke der Luministen und der Maler aus Deinze sowie der Leie-Region. 

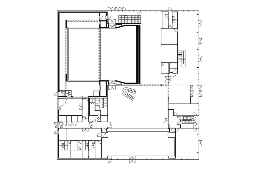
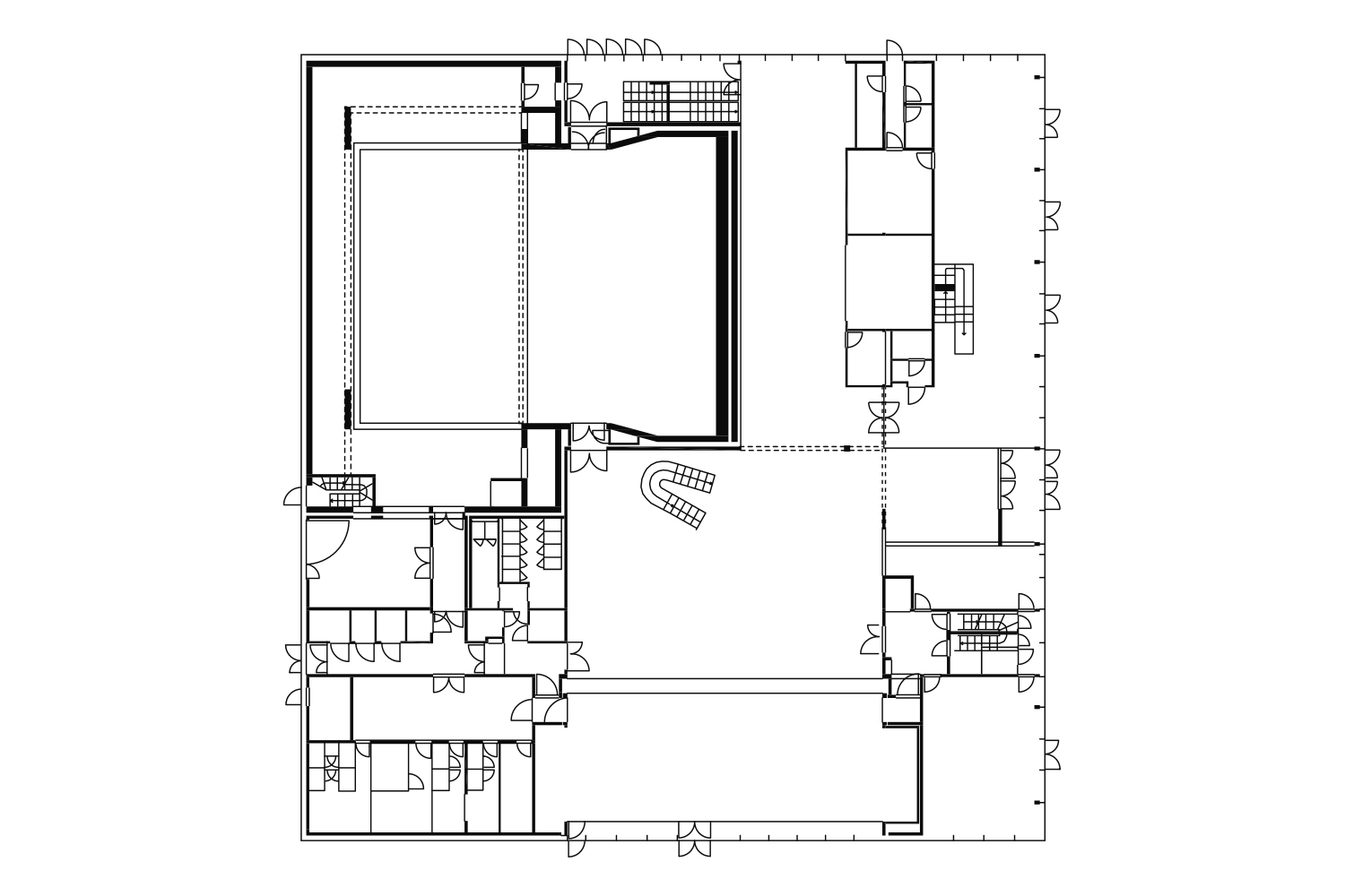
Das Leietheater hat eine einfache Silhouette, die in ein Backstein-Kleid gehüllt ist. Das Kleid besteht aus zwei Arten von Ziegeln: einem flachen, ungeschliffenen weißen Backstein und einem glasierten, glänzenden weißen Backstein. Die beiden Typen sind in sechs Mustern verarbeitet, die sich von flach bis dreidimensional entwickeln. Statt der Gebäudestruktur zu folgen, justieren die Muster das Bild, indem sie den gesamten Baukörper betonen. 

 

DIE WELT DES THEATERS

Die verschiedenen Ziegel und Muster verstärken die Kontraste zwischen Hell und Dunkel. Schatten werden stärker, Teile der Fassade leuchten auf. In der Nacht erfährt das Gebäude eine Metamorphose: Mondlicht spiegelt sich in den Backstein-Fassaden, der Aluminiumsockel glänzt im Licht der vorbeifahrenden Autos und Radfahrer. Die Welt des Theaters spielt sich oft im Halbdunkel ab. Es ist eine Welt, in der die Realität verschwimmt und die Fantasie an Kraft gewinnt. Das Gebäude fügt sich in diese Welt ein, zieht sich in den Schatten der Stadt zurück, um dann unerwartet aufzuleuchten und zu erstaunen. 


Aus städtebaulicher Sicht tritt das Leietheater einen Schritt zur Seite: Der Standort schafft Platz für einen großen Park, der sich bis zur Leie erstreckt, und legt das Theater auf wichtige Sichtachsen der Stadt. Ein Café an der Ecke aktiviert den öffentlichen Raum an einem Ort, an dem nach Vorstellungsende eine Leere in der städtischen Dynamik entstehen würde. Als abstrakte und zugleich vertraute Erscheinung leuchtet das Theater am Ufer der Leie, wo die Luministen einst in hellem Licht badende Szenen schufen.


TRANS ARCHITECTUUR 

City
Deinze, Belgien
Client
City of Deinze
Architect profile
Plot size
4.228 m²
Usable area
3.067 m²
Construction time
2015 – 2019
Construction costs
9.250.000 EUR