Wohnhochhaus Singerstraße
Giorgio Gullotta Architekten
Ungenutzte Potenziale Entfalten
Wo vor kurzem noch ein brach gelegtes Grundstück war, thront jetzt ein imposantes Wohnhochhaus in hell-grauem Backstein-Kleid. Zehn- geschossig und mit geschwungenen Balkonen schafft es neue Potenziale.

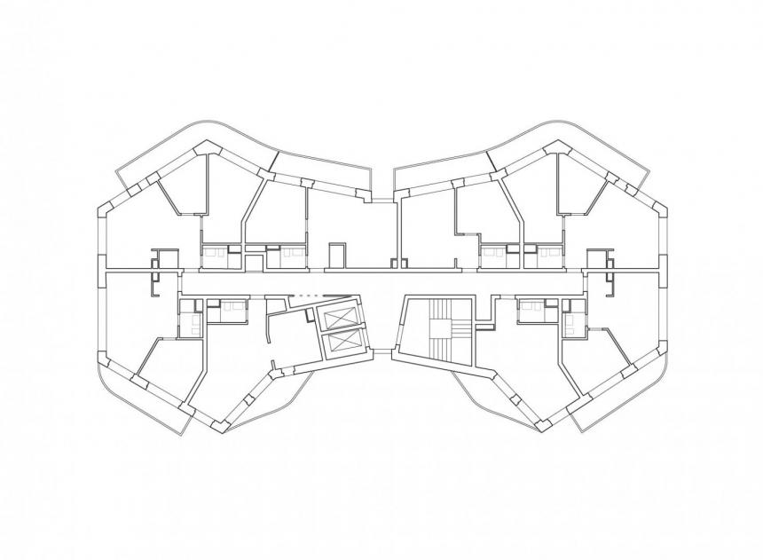
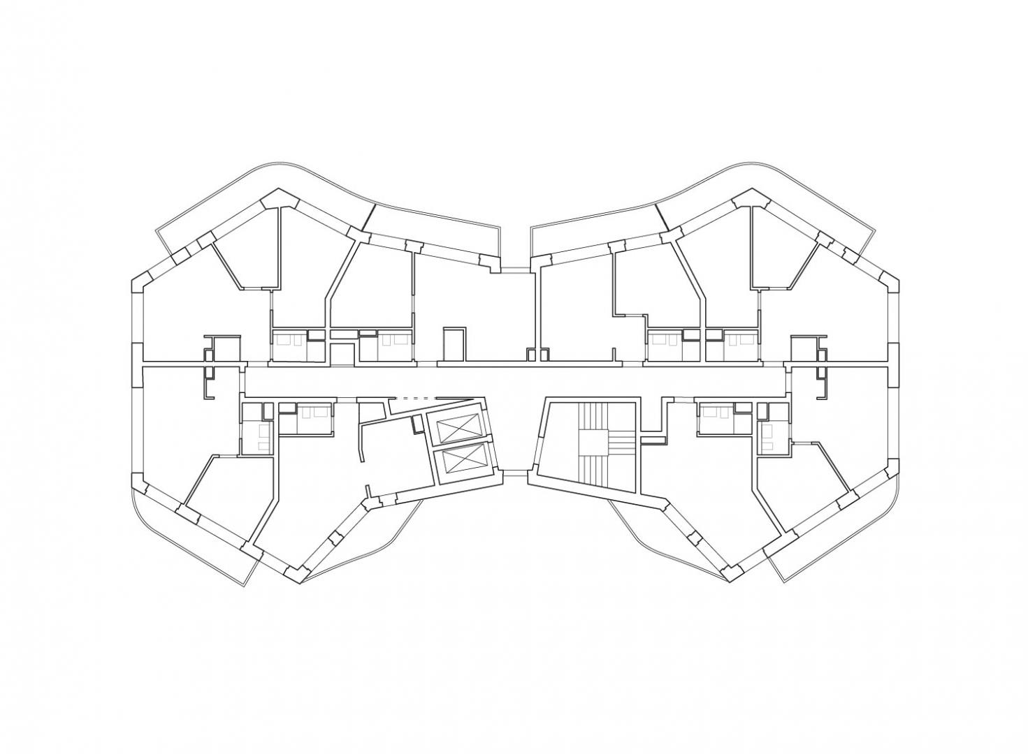
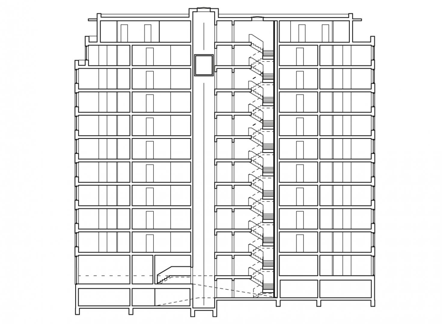
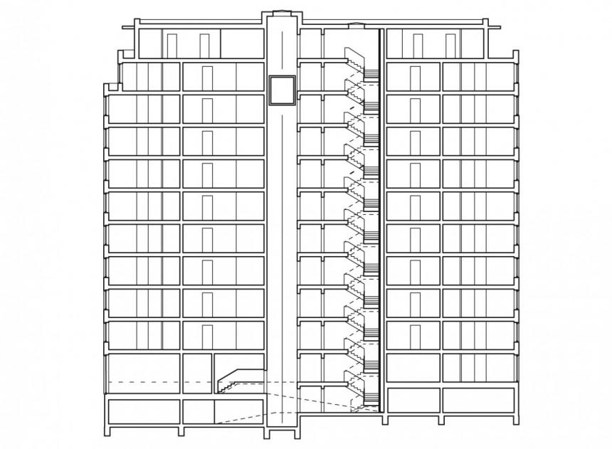
Das früher als Parkplatz genutzte und brachliegende Grundstück im Osten Berlins wurde durch den modernen 10-geschossigen Baukörper mit 71 Wohneinheiten städtebaulich sowie architektonisch aufgewertet und seiner zentralen Lage entsprechend umgenutzt. Die an der Singerstraße klaffende Baulücke wurde durch das neue Wohnhochhaus und das benachbarte bereits sanierte Wohnhochhaus Andreasstraße 22 neu belebt. Der in seinem Grundriss polygonale Baukörper ermöglicht für die einzelnen Wohnungen eine optimale Belichtung, Belüftung und Ausrichtung der Wohnräume. Die Verdrehung der Fassadenfronten entgegen der Nachbargebäude bietet den Bewohnern einen freien Ausblick. Der Abstand zur Brandwand ist vergrößert worden und eine direkte Belichtung zu allen Jahreszeiten möglich.
Die Wohnungen verfügen über eine qualitativ hochwertige Ausstattung. Die moderne, großzügige Lobby öffnet sich zur Singerstraße, heißt den Bewohner willkommen und bietet eine entspannte Aufenthaltsqualität. Durch großflächige Verglasungen entsteht ein lichtdurchfluteter Raum. Die interne Erschließung erfolgt über einen zentralen Erschließungskern mit einem Treppenhaus und zwei Aufzügen.
Das Gebäude ist in Stahlbeton-Skelettbauweise mit nicht tragenden Wohnungstrennwänden und einer hochwärmegedämmten Klinkerfassade konstruiert. Raffinierte Vor- und Rücksprünge in dem warm-grauen Klinkermauerwerk erzeugen ein spannendes Licht- und Schattenspiel und geben der Fassade ihre Struktur. Vertikale Glasfugen als Pfosten-Riegel-Konstruktion durchbrechen die horizontalen Balkonbänder und proportionieren die breiteren Gebäudefassaden. Die champagnerfarbenen Holz-Alu-Fenster sowie die großzügig horizontal geschwungenen Balkongeländer verleihen zusammen mit dem Klinker dem Wohnhochhaus eine elegante Leichtigkeit.
Giorgio Gullotta Architekten