Erweiterung des Humboldt-Gymnasiums mit Kammermusiksaal
NAK Architekten

KAMMERMUSIKSAAL IM WILDEN VERBAND
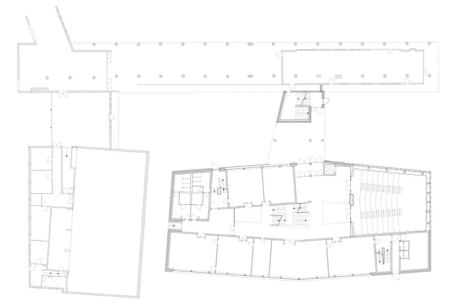
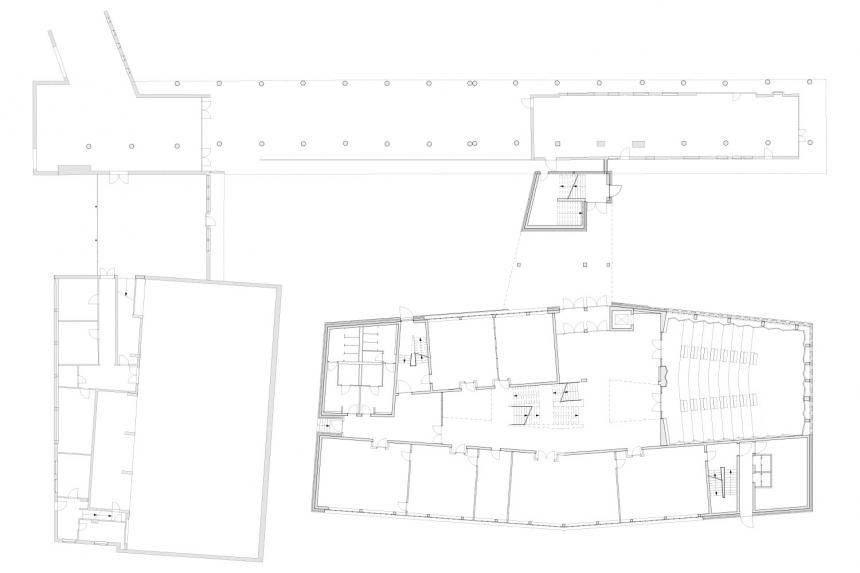
Der Bau des inzwischen denkmalgeschützten Humboldt-Gymnasiums wurde von 1957 bis 1959 vom Architekten Karl Band realisiert, der zum Kreis der Kölner Schule gehörte. Zusätzlich zum gymnasialen Vormittagsunterricht wird die Möglichkeit einer Ausbildung in einem musikgymnasialen Zweig angeboten, einer im weiten Umkreis einmaligen Einrichtung, welche in Zusammenarbeit mit der Rheinischen Musikschule besteht. Abends gibt es häufig Theateraufführungen, Ausstellungen und Konzerte – für entsprechende Veranstaltungen fehlte seinerzeit ein geeigneter Kammermusiksaal.
Nun ist der zur Straße hin orientierte Kammermusiksaal deutlich durch das verwendete Klinker- Filtermauerwerk als Sonderelement ablesbar. Durch diesen Filter mit dahinter liegender transluzenter Verglasung fällt gedämpftes und gleichmäßiges Licht in den Saal. Die Klinkerfassade nimmt das Thema des konischen Grundrisses auf und bildet durch die gedrehten Brüstungsbänder eine angenehme Varianz. Die glatten Fassadenbereiche sind im wilden Verband gemauert, die Brüstungsbänder im Stromlinienverband. Im Bereich der Treppenhausfenster ist der Verband gelocht ausgeführt, damit die Treppenhäuser belichtet werden und gleichzeitig die durchlaufende Gliederung der Fassadenbänder beibehalten wird. Die Fassade des Kammermusiksaales ist in doppelt gesetztem und geöffnetem Stromlinienverband gemauert. Als zusätzliche Aussteifung sind hier vertikale Gewindestangen in das gelochte Mauerwerk integriert.
NAK Architekten