Haus am Schwabinger Bach

Baumstark Bielmeier Architekten mit Axel Baudendistel

Haus am Schwabinger Bach

Architektonischer Diskurs

Urbanes Quartier, angrenzender Naturraum und vielfältige innerräumliche Beziehungen: Das Haus am Schwabinger Bach vereint kohärent Gegensätze. Das archaische Äußere beherbergt ein perfekt auf die Familie abgestimmtes Raumsystem.
Axel Baudendistel Zitat
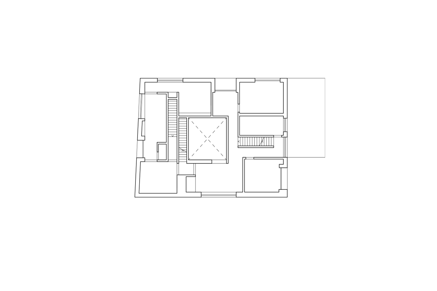
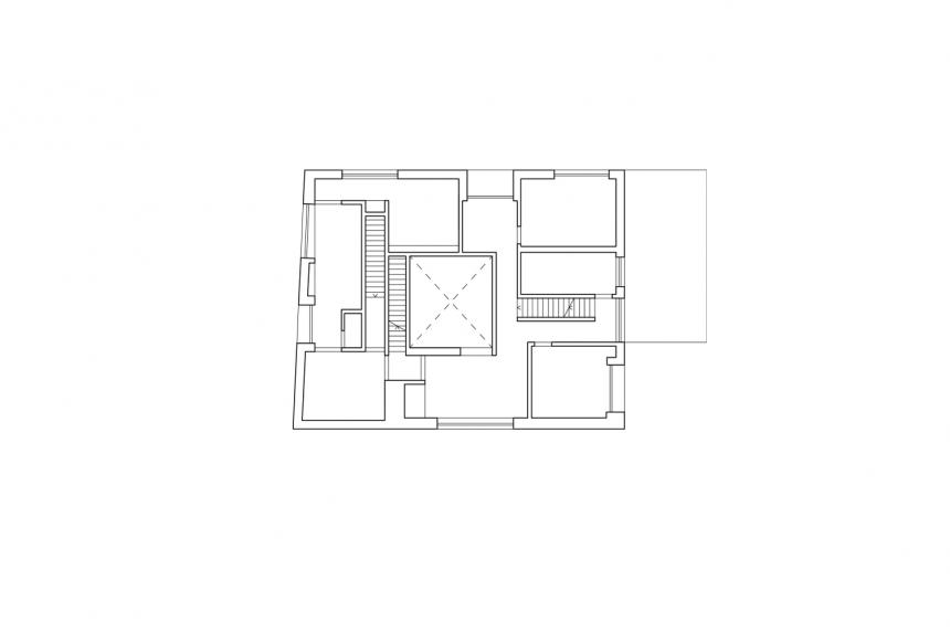
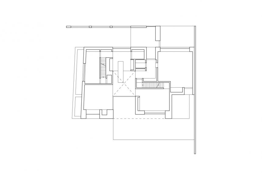
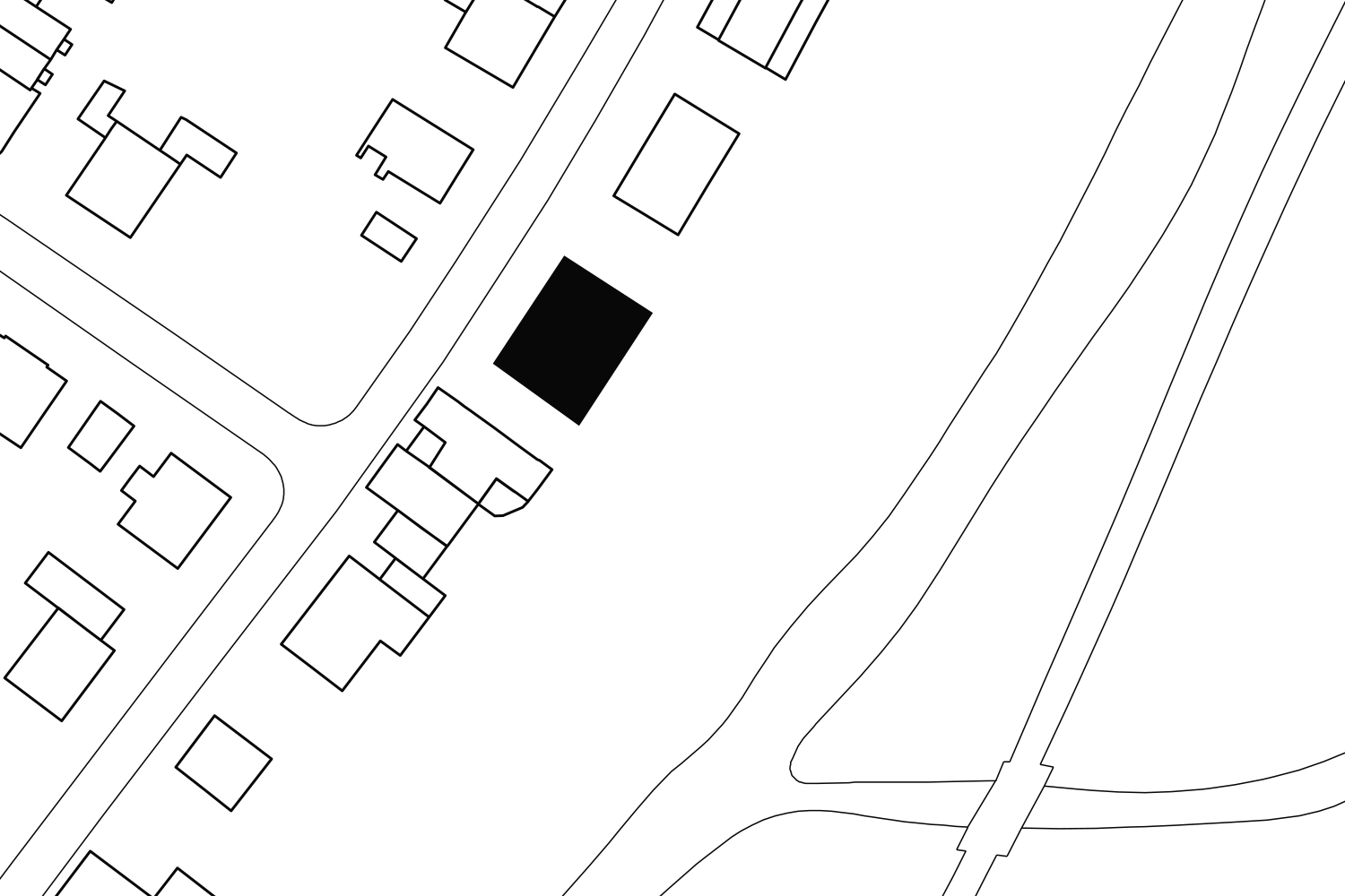
Das Haus am Schwabinger Bach in einem der nördlichen Stadtteile Münchens entstand aus einem Diskurs im Spannungsfeld zwischen Straßenraum, nahegelegenen Englischen Garten und innerräumlichen Beziehungen. Gleichwohl ruinenhaft-archaisch wie zeitlos entspringt die Form des Gebäudes keinem äußeren Gestaltungswillen, sondern einer ausgeklügelten inneren Logik.

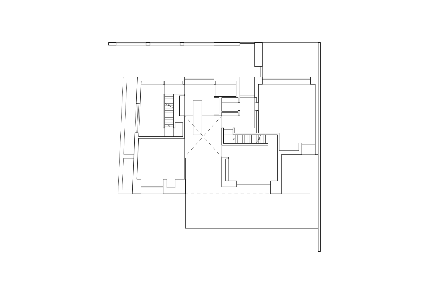
Der Entwurf orientiert sich an den Bedürfnissen der bewohnenden Familie und ordnet das gemeinschaftliche Lebenszentrum in der Mitte des Hauses an. Um diese Mitte herum liegt eine privatere Raumschicht, deren Nutzung sich über mehrere Geschosse hinweg sowohl zur Mitte hin als auch nach außen in den Garten und zum Straßenraum hin orientiert. Handgefertigter dänischer Backstein und große Fenster aus massivem Eichenholz verleihen den scharf geschnittenen Formen und Fassadenflächen durch ihre nuancierten Licht- und Schattenverläufe sowohl Maßstäblichkeit wie auch eine besonders sinnliche, haptische und handwerkliche Präsenz. Gleichwohl bekleidet und schützt der langformatige Stein die mehrschichtige, moderne Wandkonstruktion und kontrastiert mit den warmen Tönen und Oberflächen im Innern des Gebäudes. Außen also: solide, wehrhaft, ausladend, muskulös. Innen: bergend, labyrinthisch, verspielt und weich. Komplementäre Dispositionen, deren vermeintliche Gegensätze Spannung erzeugen und die verwendeten Teile zu einem kohärenten Ganzen zusammenfließen lassen. Die Architektur bildet hierbei lediglich eine Art Folie – ein Passepartout für das Alltägliche.


Baumstark Bielmeier Architekten GbR
mit Axel Baudendistel

City
München, Deutschland
Client
Privat
Plot size
1.020 m²
Usable area
656 m²
Construction time
2013 – 2016