Stylepark-Neubau am Peterskirchhof
NKBAK

Neubau trifft Denkmalschutz
Am Peterskirchhof in Frankfurt am Main ist ein Neubau entstanden, der eine denkmalgeschützte Anlage weiterbaut und den Fokus auf die verschiedenen Zeitschichten richtet.
Ein Wohn- und Geschäftshaus soll in einen vorhandenen Innenhof erweitert werden. Zuerst einmal erscheint daran nichts außergewöhnlich. Das Besondere an dieser Bauaufgabe jedoch – entgegen üblichen Hinterhofsituationen – ist die Sichtbarkeit der neuen Bebauung in Kombination mit dem angrenzenden Peterskirchhof. Diese parkähnliche Anlage mit ihrer umgrenzenden Friedhofsmauer ist denk-malgeschützt. Im Konzeptgedanken stehen nicht eine Abgrenzung, sondern das Weiterbauen und die Akzentuierung der verschiedenen vorhandenen Zeitschichten im Vordergrund.
Der Gedanke zur Umsetzung ist so alt wie die Baugeschichte selbst: Die vorhandene Mauer aus Sand- und Ziegelsteinen wird mit Ziegelsteinen weitergebaut. Der Neubau wird daher mit einer Klinkerfassade direkt auf die Friedhofsmauer aufgesetzt. Das Sichtmauerwerk wird mit verschiedenen Steinformaten horizontal geschichtet, sodass sich das Schichten auch in der Materialität manifestiert. „Ziegelsteine werden auf vorhandene Ziegelsteine gemauert. Logisch und einfach“, so Andreas Krawczyk. Was einfach wirkt, ist exakt geplant: Um die Friedhofs-mauer in der Fassade des Neubaus gestalterisch fortzuführen, wurde das Mauerwerk mit drei unterschiedlich hohen Ziegellagen aufgemauert. Die Formate hierfür waren Flensburger Format (ca. 11.200 Stk.), dänisches Normalformat (ca. 2.250 Stk.) und Hamburger Format (ca. 3.580 Stk.).
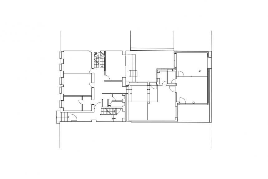
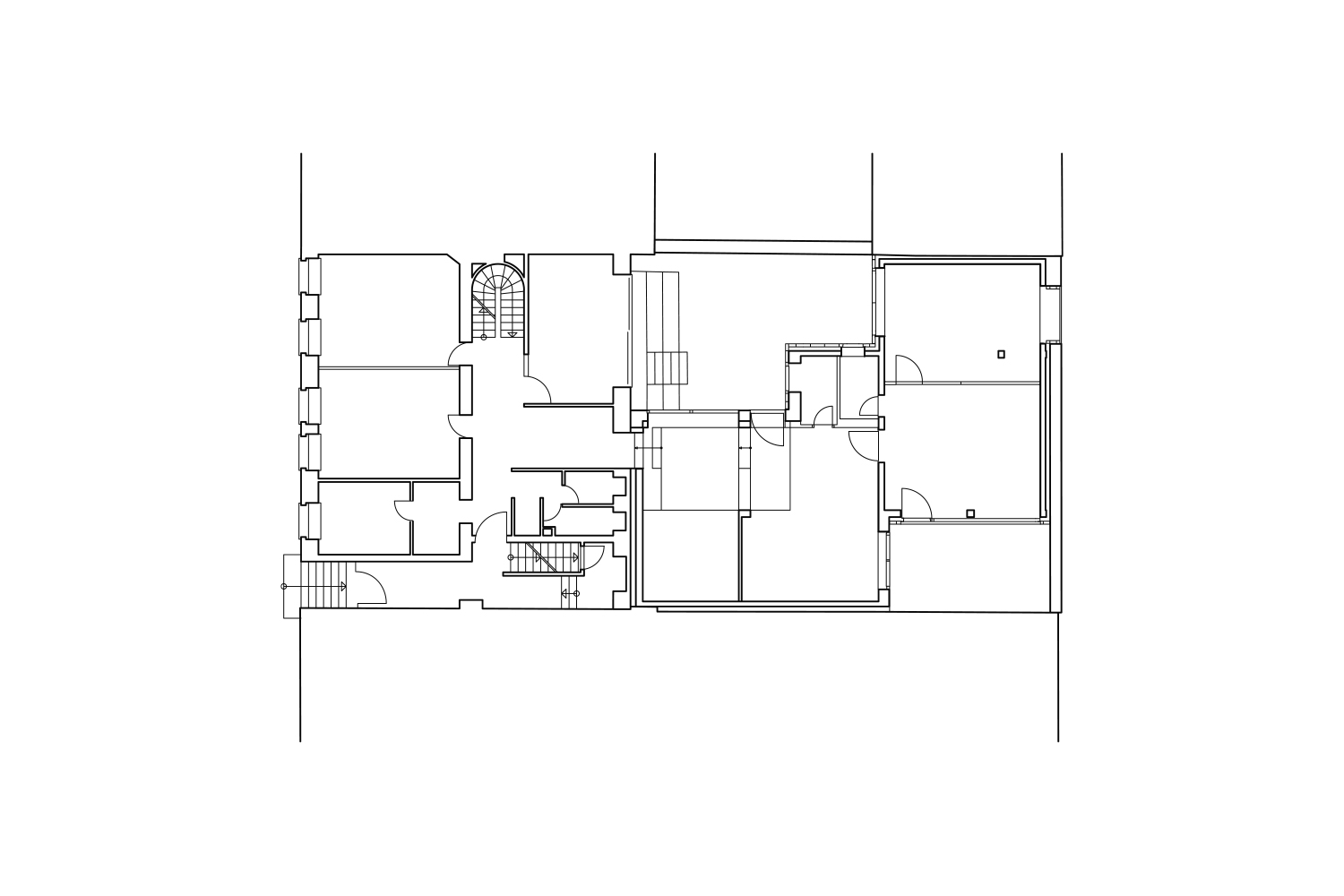
Das Baufeld des komplexen Baukörpers ist begrenzt durch umliegende Bestandsgebäude sowie die denk-malgeschützte Friedhofsmauer. Die Idee, diesen Hinterhof für einen Anbau zu nutzen, entstand aus dem Wunsch des Bauherrn, des Unternehmens Stylepark, nach einer größeren Nutzfläche für sein Team. Dazu sah das Architektur- und Designunternehmen die Chance, in dem Haus Wohnraum in der Frankfurter Innenstadt zu schaffen. Das neue Gebäude besitzt im Erdgeschoss zwei Höfe sowie großzügige Dachterrassen im ersten und zweiten Obergeschoss, die sowohl dem Neubau als auch dem Bestandsgebäude einen Mehrwert verschaffen. Im Erdgeschoss des Neubaus befinden sich die neuen Büroräume, die perfekt auf die Bedürfnisse des Unternehmens zugeschnitten sind: Zwei großzügige offene Arbeitsbereiche mit Rückzugsräumen sowie ein zentraler Coffeepoint als Treffpunkt für die Mitarbeiter stehen zur Verfügung. Die zwei zur Belichtung der Räumlichkeiten eingerichteten Innenhöfe werden in den Sommermonaten als Aufenthaltsräume genutzt und ermöglichen Blickbeziehungen zwischen den einzelnen Arbeitsplätzen im Gebäude.
Im ersten und zweiten Obergeschoss befindet sich jeweils eine Wohneinheit: eine Zwei-Zimmer-Wohnung mit 44 Quadratmetern Fläche und eine Ein-Zimmer-Wohnung mit 60 Quadratmetern Fläche. Da die Gliederung der Wohnungen nicht nur durch Wände, sondern vielmehr durch unterschiedliche Raumhöhen erfolgt, ermöglicht der Entwurf trotz beschränkter Wohnfläche einen großzügigen. Raumeindruck. Die Kubatur des Neubaus geht präzise auf die Baumasse und die Belichtungssituationen ein. Die Fensterausschnitte in verschiedenen Größen lassen den Park in die Wohnräume hin einwachsen und erzeugen ein breites Spektrum an Lichtstimmungen. Das Gefühl für Nuancen trägt das Ensemble aus Neubau und Denkmal so bis ins Innere.
NKBAK