Musée cantonal des Beaux-Arts
Barozzi Veiga
IM BACKSTEIN LIEGT DIE KUNST
Das Musée Cantonal des Beaux-Arts prägt als schützendes Backstein-Gebäude das neue Lausanner Kunstzentrum. Damit entwarf das spanische Büro einen Ort, an dem sich die schönen Künste wahrlich genießen lassen.

Im Jahr 2011 gewann Barozzi Veiga den internationalen Wettbewerb zur Erstellung eines Masterplans für den neuen Kunstbezirk im Schweizer Lausanne – Platform 10 – und entwarf und baute in der Folge das Musée cantonal des Beaux-Arts Lausanne.
Der Masterplan gab vor, auf dem Areal des ehemaligen Lokdepots einen neuen öffentlichen Raum mit Bezug zum bestehenden Bahnhof zu schaffen. Diese Aufgabe lösten Barozzi Veiga, indem sie das MCBA gemeinsam mit dem Neubau des Design- und Fotografie-Museum (Aires Mateus, Lissabon) um einen Freiraum herum anordneten. Auf diese Weise bildet die Architektur den Rahmen für das städtische Leben im neuen Kulturquartier Lausannes.
Das Musée cantonal des Beaux-Arts Lausanne befindet sich am Südrand des Platzes als monolithische, parallel zu den Schienen verlaufende Längsbebauung. Es definiert den Stadtraum und schützt ihn gleichzeitig vor der Lärmbelästigung durch die Züge. Das Projekt nimmt diesen Zustand auf und bringt die Vergangenheit dieses Platzes zum Ausdruck, indem es den ehemaligen industriellen Zustand mit pragmatischen Formen und durch die Erhaltung spezifischer Fragmente widerspiegelt.
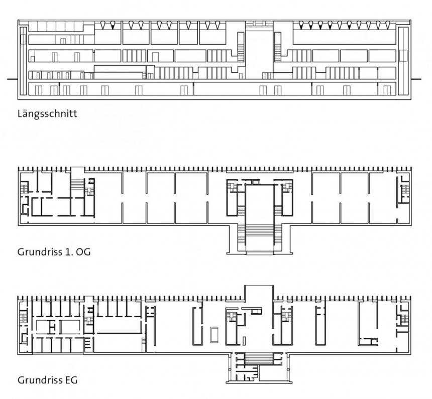
Der Entwurf bewahrt einen Teil der ursprünglichen Halle und überträgt sie als ein zentrales Element des Projekts. Das alte Bogenfenster wird von der Bahn aus gesehen zum Hauptprotagonisten der Gebäudefassade und entfaltet im Foyer seine Rolle als wesentlicher strukturierender Bestandteil der Raumfolge in dem Neubau.
Das Museum ist auf drei Stockwerke verteilt, die durch den durchgehenden Leerraum des Foyers, dar den Besucherverkehr und das Programmangebot strukturiert, miteinander verbunden sind. Das Erdgeschoss entwickelte sich als Erweiterung des öffentlichen Platzes und beherbergt die wichtigsten Angebote wie das Café, die Buchhandlung, das Auditorium usw. Die Fassade auf dieser Ebene ist sehr porös, um die Durchlässigkeit dieser internen Funktionen zum öffentlichen Außenraum des Platzes zu gewährleisten. Auf den oberen Ebenen, auf beiden Seiten des Foyers, befinden sich die Ausstellungsräume. Die permanente Galerie im Osten ist von der temporären Galerie im Westen getrennt. Dank unabhängiger vertikaler Umläufe, die künftig umfassende Ausstellungen ebenso ermöglichen wie kleinere Kapselkollektionen, können die Galerien mit einem einzigen, durchgehenden Rundgang oder in parallelen Rundgängen besichtigt werden.
Das Obergeschoss wird durch das nach Norden ausgerichtete modulare Sheddach, das das Sonnenlicht filtert und ausrichtet, natürlich beleuchtet. In dieses Sheddach ist ein internes Jalousiesystem eingelassen, das eine sorgfältige Kontrolle der in die Räume einfallenden Lichtmenge ermöglicht und eine gedimmte Atmosphäre schafft, um optimale Bedingungen für die Kunstwerke zu schaffen.
Die gesamte Gebäudefassade ist relativ hermetisch geschlossen. Um die Sammlungen zu schützen, hat das Museum nach Süden zur Bahnseite hin eine geschlossene, nach innen ausgerichtete Fassade. Eine offenere, durchlässigere und belebtere Fassade prägt die Nordansicht zum öffentlichen Raum hin.
Die Backsteinfassaden evozieren die Industriegeschichte des Ortes und geben dem Baublock Textur und ein lebhaftes Muster. Auf dem Platz durchbricht der Rhythmus der Vertikaljalousien die Massivität des Baublocks und gibt die Öffnungen frei. Nachts dienen diese Jalousien als Leinwand, um das aus dem Museum kommende Innenlicht zu streuen.
Barozzi Veiga