Kohanceram central office

Hooba design

Hooba design

Das Material als Experiment

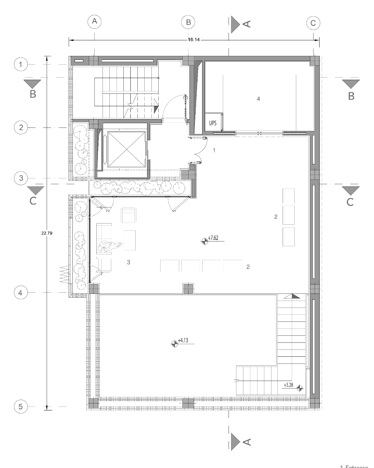
Das KohanCeram Central Office befindet sich gegenüber einer örtlichen Parkanlage und grenzt an die Sattari Schnellstraße in Teheran an. Das Projekt wurde für die Kohan Ceram Brick Manufacturing Company entwickelt und umfasst Galerien, Büroräume sowie Gästebereiche.

 

Die Herausforderung bestand darin, die Eigenschaften von Ziegeln als Baumaterial einer Neubewertung zu unterziehen. Das Erscheinungsbild der herkömmlichen Mauer wurde als neuartiger Block neu interpretiert, der nicht nur als Fassade dient, sondern auch schall- und wärmedämmend wirkt sowie für natürlichen Lichteinfall sorgt.

 

Der Block aus Ziegelsteinen und Glas beruht auf der Idee, die Mauer und das Fenster in einer Einheit zu verbinden. Eine Reihe von Experimenten mündete schließlich in eine Verbindung aus einem vorfabrizierten Ziegelstein mit einer handgefertigten Glasmasse. Zwischen die beiden Ziegelsteinschichten wurde sodann eine Lage Bauschaum als Schall- und Wärmeschutz eingebracht.

 

Hooba design

City
Teheran, Iran
Client
Hooman balazadeh
Architect profile
Plot size
213 m²
Built-up area
150 m²
Usable area
1.050 m²
Enclosed volume
150 m³