Finanzamt Zwickau – Erweiterung

KNOCHE ARCHITEKTEN

KNOCHE ARCHITEKTEN

FORTSETZUNG MIT RAFFINIERTEN DETAILS

Der Baukörper versteht sich als ergänzender Baustein in der bestehenden Stadtstruktur, er fügt sich daher hinsichtlich seines Volumens, der Höhenentwicklung, Dachform, Farbigkeit und Materialität selbstbewusst, aber sensibel in die Nachbarschaft ein. Er fungiert zudem als Komplettierung des Gesamtensembles für das Finanzamt, das aus sehr individuellen, teilweise denkmalgeschützten Gebäuden besteht, die aus unterschiedlichen Zeiten von 1900 bis 2000 stammen. Der Übergang zum Bestand erfolgt durch einen Zwischenbau, der sich durch seine geometrische Ausbildung und abweichende Materialität zurücknimmt.

 

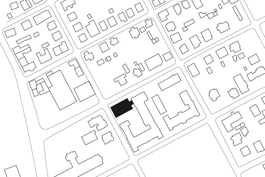
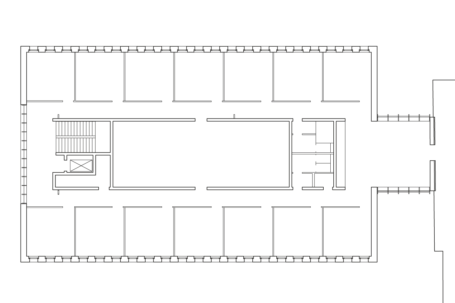
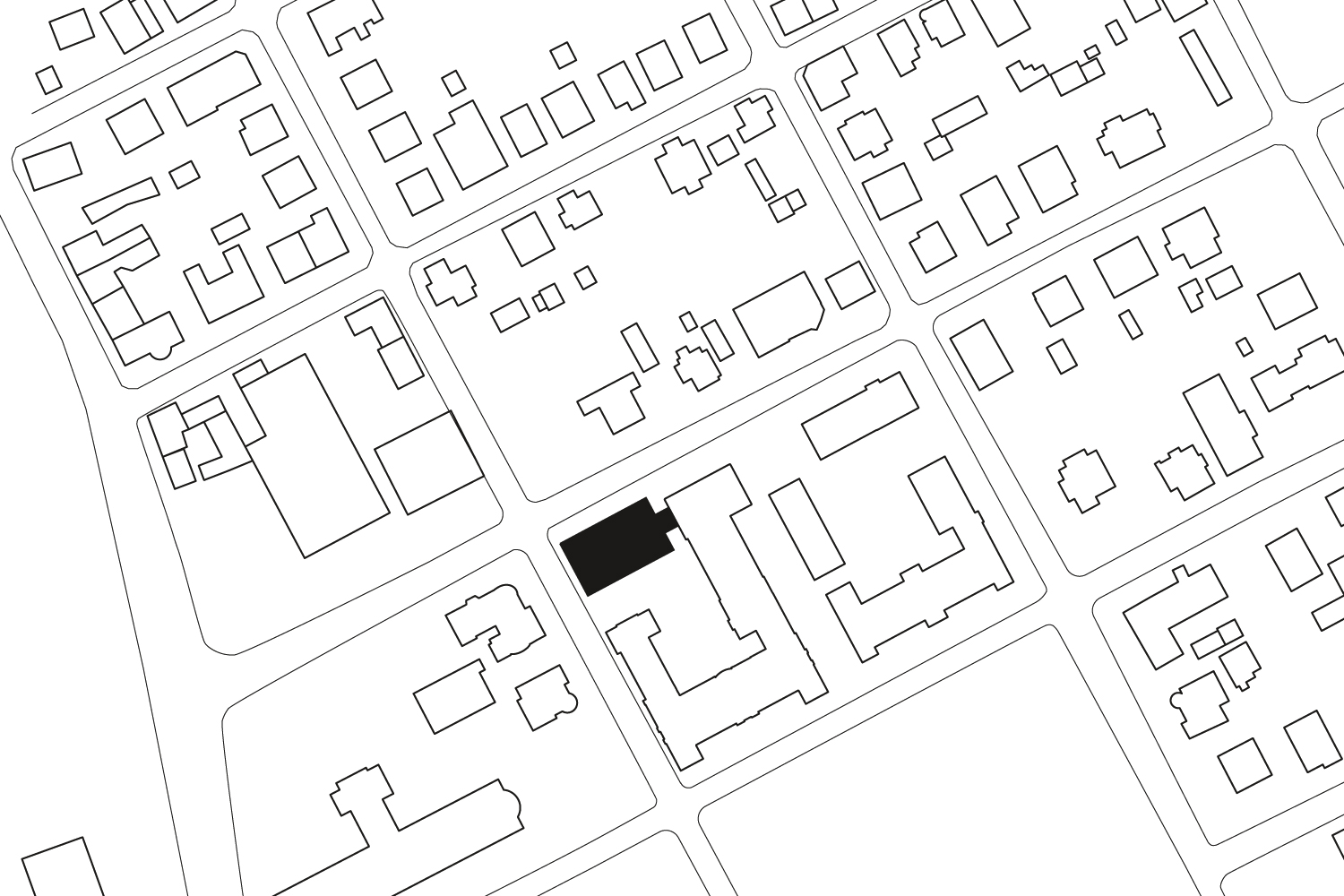
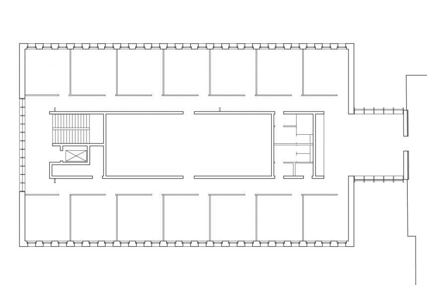
Die Gestaltung der Innenräume ist geprägt von einem klaren und funktionalen Grundriss. Die dreispännige Anordnung ermöglicht Büroräume an den Außenwänden und Aktenarchive in der Mitte. Das Dachgeschoss nimmt Bezug auf die Umgebung. Die kompakte Ausbildung des Baukörpers ist vorteilhaft im Hinblick auf Nachhaltigkeit und Energiekonzept, sodass die Umsetzung des gewählten Passivhausstandards begünstigt wird.

 

Die Fassaden werden geprägt von der streng funktional gereihten Anordnung stehender Öffnungen und der fein detaillierten Ziegelverkleidung aus hellockerfarbenen Steinen. Durch die Ziegelfassade wird das örtlich stark verbreitete Baumaterial aufgenommen und gleichzeitig eigenständig interpretiert. Die Anordnung der fein differenzierten Ziegeltexturen in Bändern, die an den Gebäudecken in der Höhenlage verspringen, sorgt für ein flächiges und abstraktes Erscheinungsbild des Gebäudes. So wird mit zeitgenössischen Mitteln auf den großen Detailreichtum der historischen Nachbarfassaden Bezug genommen.

 

Der Ziegelverband ist im flämischen Verband ausgeführt. Die Läufersteine des Verbandes bleiben in allen Bereichen immer gleich. Die Binder werden in den Brüstungsbereichen etwas herausgezogen, während sie in Höhe der Fenster an den Stirnseiten leicht nach innen gesetzt werden. Die reliefierte Ausführung wurde im Detail mit Verbandsvertretern der Ziegelindustrie konzipiert. In einem Fassadenmuster wurden insbesondere die geplanten Reliefs und die Aspekte der Maßhaltigkeit, der Farbigkeit, Fugenausbildung und Fugenfärbung präzise bewertet.

 

Knoche Architekten

City
Zwickau, Deutschland
Client
Staatsbetrieb Sächsisches Immobilien- und Baumanagement
Architect profile
Plot size
6.330 m²
Built-up area
3.530 m²
Usable area
2.025 m²
Enclosed volume
14.423 m³
Construction time
2016 – 2018
Construction costs
6,2 Mio. EUR