Pfirsichhaus

Frederic Schnee

Pfirsichhaus

Wohnhof bei Peking

Das Pfirsichhaus am Stadtrand von Peking ist das Ergebnis einer intensiven Auseinandersetzung mit dem Bautyp des Wohnhofes im ländlichen Nordchina. Die Architektur, wo Neubau und Bestand durch angemessenen Umgang vereint werden sollen, setzte ein Verständnis des Kontextes und der Bauhistorie voraus. Für den Erfolg des Projektes war die Partizipation von lokalen Handwerkern von Beginn der Planung unabdingbar. Recycelte blaue und rote Ziegel ergänzen und definieren die Fassade des Projektes.

Der Selbstbau für den Eigenbedarf ist im ländlichen Raum Chinas weit verbreitet. Die Wiederherstellung des Privateigentums auf dem Land in den 1970er Jahren geht auf die Agrarreform der 1950er zurück, die es nicht schaffte, Volkskommunen auf dem Land großflächig zu etablieren. Die Revision bekräftigte den Begriff des Privateigentums als Ausdruck der Leistung und als Erzeugnis des Familienbundes. Das Landhaus in Nordchina ist eine bemerkenswerte Wohnform des Bautyps, den Wohnhof, der das Ergebnis eines langen Prozesses der Interaktion zwischen der gebauten Form und den sozialen, wirtschaftlichen und kulturellen Bedürfnissen und Gewohnheiten der dortigen Bevölkerung widerspiegelt.

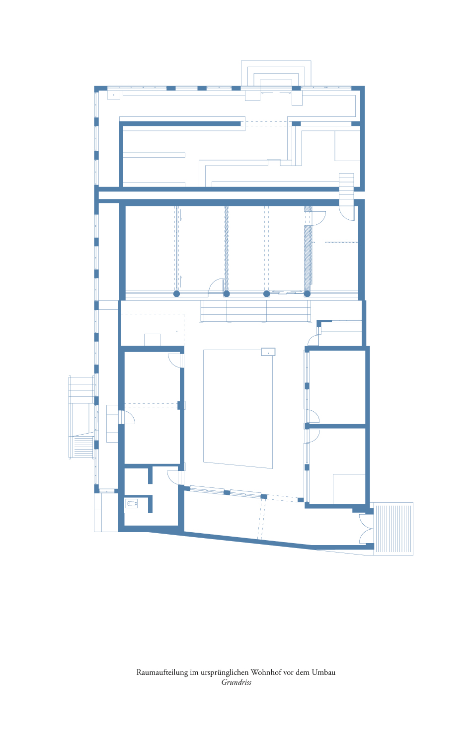
Die Aufgabe, den vorhandenen Wohnhof zu sanieren und zu ergänzen, erforderte eine akribische Untersuchung und Auseinandersetzung mit den Lebensformen im ländlichen Raum Pekings. Eine ausführliche Analyse der Bautypologie, der gebauten Umgebung, des sozialen und historischen Kontexts und schließlich der Anforderungen für die neue Nutzung waren vor dem Entwurfsprozess unabdingbar. In einer Vorstudie wurden der Standort und seine früheren Gebäude dokumentiert und grafisch rekonstruiert. Eine Bauchronik, die in den 1950er Jahren beginnt, zeigt die verschiedenen Zustände und Veränderungen, die der Ort und die Gebäude erfuhren.

Eine der wichtigsten Eigenschaften des chinesischen Wohnhofes ist seine Flexibilität zur Anpassung, Erweiterung und Transformation. Der Neubau, der an das erhaltene Hauptgebäude anschließt, ist so entworfen, dass der frühere Raum des Hofes angehoben wurde, um Platz für einen Laden im Erdgeschoss zu schaffen. Der ursprüngliche Boden im Erdgeschoss wurde abgesenkt und eine neue Bodenplatte in das bestehende Gebäude für das neue Obergeschoss gezogen. Die Raumaufteilung des neuen Grundrisses ist dem typischen Wohnhof in Nordchina nachempfunden, wobei während der Planung immer wieder Komplikationen wegen der Berücksichtigung der Prinzipien des Feng Shui und der lokalen Bautradition auftauchten. Besondere Aufmerksamkeit galt der Orientierung und dem Raster des Grundrisses sowie der Positionierung von Stützen und Wandöffnungen.

Das Gebäude ist auf einem Grundstück mit einer Nord-Süd-Achse gelegen, wobei das Hauptgebäude sich nach Süden öffnet. Der Eingang befindet sich – typisch für traditionelle chinesische Landhäuser – in der südöstlichen Ecke. Deckenhöhen und Wandabstände mussten einer bestimmten Hierarchie folgen. Der blaue Ziegelstein prägt das historische Peking bis heute und ist in der nordöstlichen Region von China vorherrschend, wird aber heutzutage immer weniger im Bau verwendet. Billigere rote Ziegel werden heute überwiegend in selbstgebauten Landhäusern verwendet. In dem Projekt ‚Pfirsichhaus’ wurden recycelte Ziegel aus der Umgebung wiedereingesetzt. Die Fassadengestaltung mit zwei verschiedenen Ziegelfarbtönen löst den Kontrast auf und schafft ein Gleichgewicht. Darüber hinaus verschmelzen sichtbare Brandspuren auf den roten Ziegeln die beiden Töne miteinander.

Frederic Schnee

Architect
Frederic Schnee
Plot size
493 m²
Built-up area
325 m²
Usable area
390 m²
Enclosed volume
1.641 m²