Neubau Besucher- und Kundenzentrum Kärcher-Areal

Reichel Schlaier Architekten

Neubau Besucher- und Kundenzentrum Kärcher-Areal

Neues Leben in der alten Ziegelei

Das Besucher- und Kundenzentrum der Firma Kärcher respektiert die Geschichte und die Dimensionen seiner Nachbarschaft. Mit seinen warmen Tönen wirkt es einladend und hell.

 

Der Bauherr, das in Winnenden bei Stuttgart beheimatete, international tätige Familienunternehmen Alfred Kärcher GmbH & Co. KG, das durch die gelben Reinigungsgeräte bekannt wurde, ist in den vergangenen Jahren stark gewachsen. Da auf dem historischen Firmen-Areal für den gestiegenen Flächenbedarf kein Platz mehr zur Verfügung stand, erwarb das Unternehmen ein 130.000 qm großes Areal einer ehemaligen Ziegelei für künftige Erweiterungen. Das Gelände liegt in unmittelbarer Nähe des Hauptsitzes und ist durch eine Bahnlinie von diesem getrennt.

Ende 2012 lobte der Bauherr für die Aufgabe einen internationalen Wettbewerb aus, aus dem der Entwurf von Reichel Schlaier Architekten als Sieger hervorging. Als erster Bauabschnitt waren neben Büroflächen für 700 Mitarbeiter auch ein Vortragssaal für 800 Personen sowie Ausstellungsflächen mit Präsentationsräumen und einem Café geplant. Diese Erweiterungsflächen wurden über eine Fußgängerbrücke mit dem bestehenden Firmenareal auf der anderen Seite der Gleise verbunden. Als Reminiszenz und markantes Zeichen der bisherigen Ziegelei wurde der historische Schornstein erhalten und in die Anlage integriert. Das Umfeld des neuen Areals ist mit kleinformatigen Ein- und Mehrfamilienhäusern, Industriebauten und Einkaufszentren, Bahnareal, Gleisanlage und großen Parkplatzflächen sehr heterogen. Übereinstimmendes Merkmal der Bebauung ist dabei die – wie im gesamten Stadtbereich – geringe Höhe von zwei bis vier Geschossen.

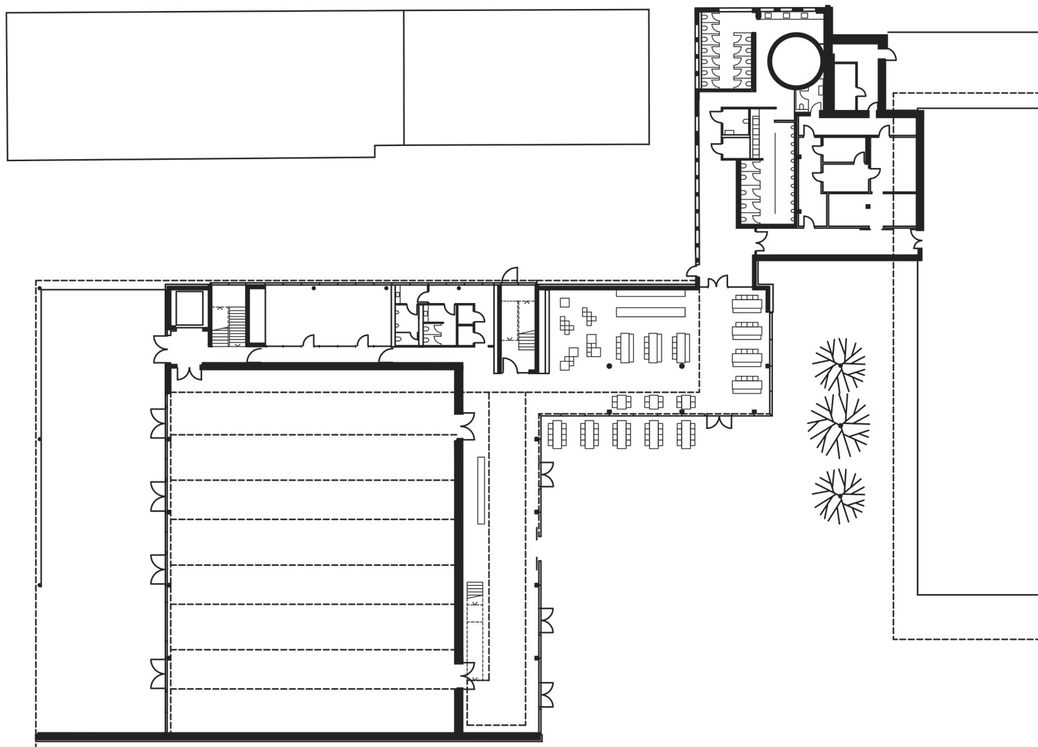
Reichel Schlaier Architekten schlugen deshalb im Wettbewerb vor, das umfangreiche Raumprogramm nicht in einem großen, hohen Baukörper unterzubringen, sondern auf drei Gebäude mit den unterschiedlichen Nutzungen Verwaltung, Veranstaltung und Präsentation zu verteilen. Dabei sollten die Nutzungen der einzelnen Gebäude durch ihre unterschiedlichen Typologien klar ablesbar sein. Zwischen den Gebäuden entsteht eine schöne Platzsituation, ein Ort zum Treffen, zum gemeinsamen Arbeiten und zum Austausch mit Kunden. Auch Messen, die im Besucher- und Kundenzentrum stattfinden, können sich bei Bedarf auf den Platz hin erweitern. Das somit entstandene Forum verbindet das Besucher- und Kundenzentrum, das Auditorium und das Bürogebäude und wird zum markanten Zentrum des neuen Areals. Die neue Fußgängerbrücke über die Bahngleise verbindet das bestehende Kärcher- Gelände direkt mit dem Platz und dem Bürogebäude. Im Besucher- und Kundenzentrum sind Ausstellungsbereiche und Seminarräume, in denen die Produktpalette den Kunden vorgestellt werden kann, sowie ein Shop und Café untergebracht.

Das winkelförmige Gebäude mit großflächigen Fassaden aus Sichtmauerwerk begrenzt den Platz nach Norden und Westen. Das Material Backstein verweist zum einen auf die historische Ziegelei, an die noch der Schornstein erinnert, und schafft zum anderen einen klaren Kontrast zu den vollständig verglasten Gebäuden für Büros und Veranstaltungen. Die im wesentlichen von oben belichteten Räume für Präsentation und Ausstellung erlauben dabei große und ungeteilte Backsteinflächen, die den Platz einfassen und bei Sonnenschein in warmes Licht tauchen. Man betritt das Gebäude durch eine L-förmig, entlang des Platzes verlaufende drei Meter hohe, verglaste Fuge. Auf der Nordseite des Platzes gelangt man in ein zweigeschossiges Café, in dem sich Mitarbeiter zum Austausch untereinander oder mit Kunden treffen können. Auf der Westseite schließt das Foyer der Präsentations- und Messebereiche an.

Auf der Zwischenebene darüber, die sich als leichte Stahlkonstruktion von den Wänden löst, befindet sich ein besonderer Ausstellungsbereich: In der nur von oben belichteten Fläche werden Preise und Auszeichnungen der Firma ausgestellt, sie kann aber auch für Wechselausstellungen genutzt werden. Direkt vom Foyer gelangt man in den zentralen Ausstellungsraum: eine 850 qm große und acht Meter hohe Halle, die flexibel auch für Messen genutzt werden kann. Von hier hat man direkten Zugang zu einem überdachten Außenbereich, in dem auch die größeren Produkte des Unternehmens, wie zum Beispiel Kehrmaschinen, präsentiert werden können. Auf der Nordseite der Halle schließen sich auf zwei Ebenen Konferenz- und Seminarräume an. Die Räumlichkeiten im Besucher- und Kundenzentrum bieten sowohl die Gelegenheit, im kleinen Kreise auf individuelle Kundeninteressen einzugehen, als auch Großveranstaltungen für Kunden und Mitarbeiter zu organisieren.

 

Reichel Schlaier Architekten

City
Winnenden, Deutschland
Client
Alfred Kärcher GmbH & Co. KG
Plot size
52.441 m²
Built-up area
2.550 m²
Usable area
4.600 m²
Enclosed volume
32.400 m³
Construction time
2013 – 2015
Construction costs
3,2 Mio. EUR