Volta Galvani Eindhoven

Geurst & Schulze architecten

Volta Galvani Eindhoven

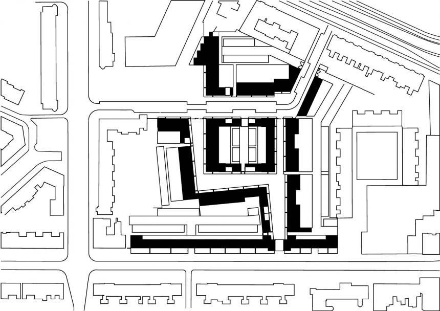
Urbanität und Gemeinschaft

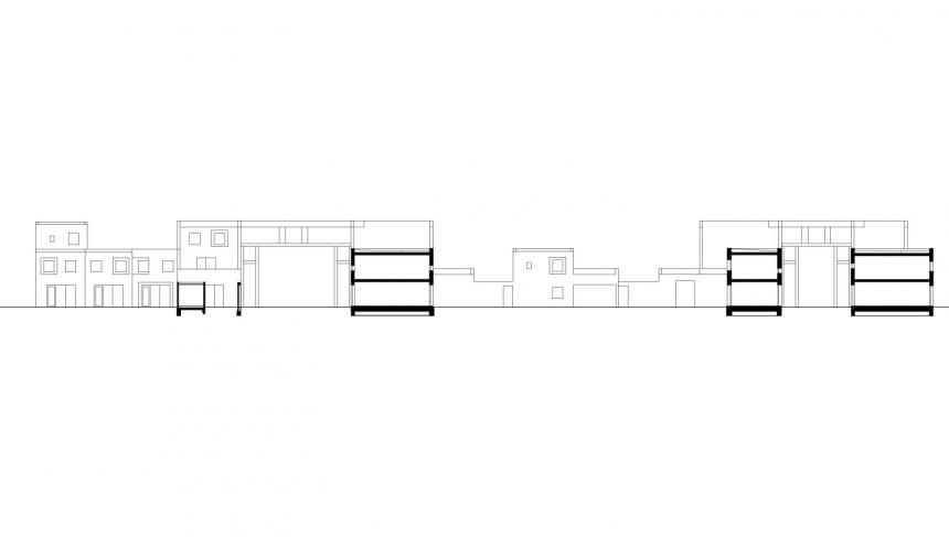
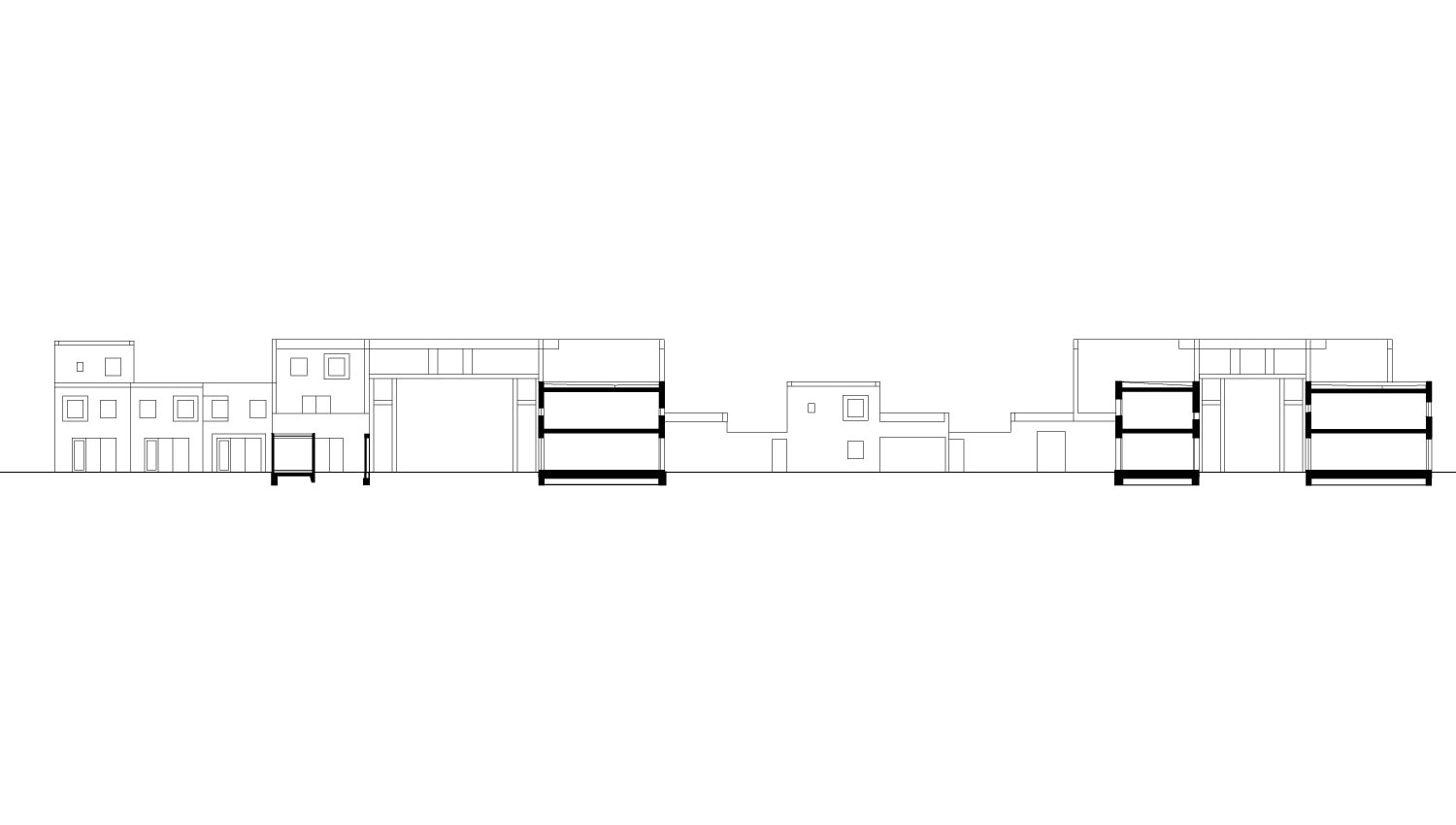
Bunter Backstein, Arkaden, ein Stadttor und die konsequente Vermeidung von Vorgärten lassen die Siedlung „Volta Galvani“ in Eindhoven zu einem neuen Typus von Stadtquartier werden.

 

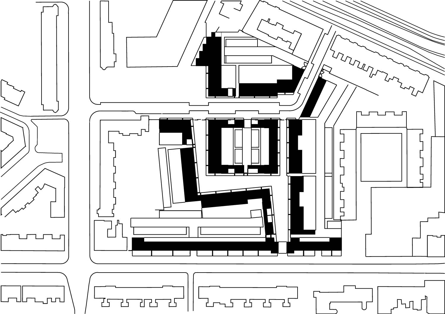
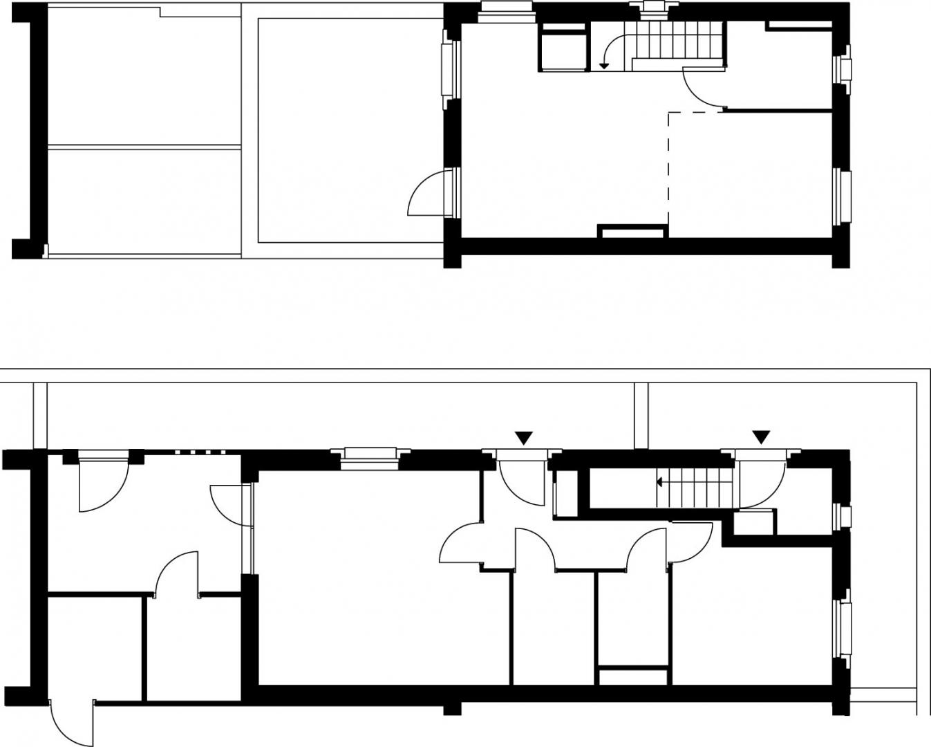
Das Wohnquartier ist Teil der Neugestaltung des Eindhovener Stadtteils Woensel West. Die Edisonstraat liegt im Herzen dieses Stadtteils. Entlang der Straße bieten Studios, Geschäfte und Werkstätten Abwechslung und sind mit den Wohnungen über ihnen verbunden. Das autofreie Wohnquartier wird durch ein gewölbtes Tor betreten, das an die Form einer Glühbirne erinnert, wie sie einst von Edison entwickelt wurde. Die ebenerdigen Wohnungen liegen an einer inneren Straße, die zur neuen Gemeindeschule an der Wenckenbachstraat führt. Die Anordnung der Gebäude, mit schmalen Straßen und ohne Vorgärten, führt einen neuen Stil der Stadtarchitektur in ein bestehendes suburbanes Umfeld ein und legt mehr Wert auf das Wohlbefinden der Bewohner. Der Einbezug von gewerblichen Elementen in die Edisonstraat trägt wesentlich zur Belebung dieses Quartiers bei. Die hinzugefügte Arkade und ein Torgang zur Stadt lassen eine neue Form urbaner Symbolik entstehen.

Auf der Rückseite der Häuser gibt es spezielle Parkhöfe für die Autos der Bewohner. Die farbigen Fassaden zur Innenstraße hin unterstreichen den individuellen Charakter der Wohnungen und verleihen dieser urbanen Landschaft ein mediterranes Flair.

 

Geurst & Schulze architecten

City
Eindhoven, Niederlande
Client
Trudo Eindhoven and DNC Vastgoedontwikkeling Eindhoven
Architect
Geurst & Schulze architecten
Architect profile
Plot size
15.900 m²
Built-up area
4.780 m²
Usable area
10.320 m²
Enclosed volume
31.500 m³
Construction time
2012 – 2013
Construction costs
10 Mio. EUR