Kultur- und Kongresszentrum Jordanki

Menis Arquitectos

Kultur- und Kongresszentrum Jordanki

Kultur- und Kongresszentrum Jordanki

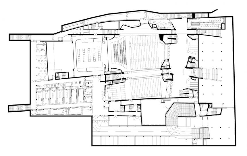
Die Gebäudestruktur schafft um ihre zonierten Kerne ein spannendes Raumgefüge, das immer wieder neue skulptural wirkende Bereiche eröffnet oder verschließt.

 

Das CKK Jordanki liegt an einem das historische Stadtzentrum umgebenden grünen Ring mit Blick auf die Weichsel. Die Materialität bezieht sich auf das Backsteingotik-Erbe von Torun, in der fast alle Fassaden der Altstadt aus roten Ziegeln bestehen. Die Außenseite des Gebäudes besteht aus weißem Beton, in den eine rote Innenverkleidung aus Ziegelbruch eingelassen ist. Als Konzertsaal angedacht lässt es sich teilen, kann an unterschiedliche Kapazitäten angepasst und sogar nach außen hin geöffnet werden. Das verwendete Material (Picado) ist eine von Fernando Menis entwickelte Mischung aus Beton und anderen Materialien, das für hervorragende akustische Ergebnisse sorgt.

 

Menis Arquitectos

City
Torun, Polen
Client
Mostostal Warszawa S. A., Acciona Infrastruktura S. A.
Architect profile
Plot size
46.971 m²
Built-up area
21.837 m²
Usable area
18.585 m²
Enclosed volume
158.183 m³
Construction costs
51 Mio. EUR