Wohnkomplex Pas-de-Calais

FRES architectes with KENK architecten

Wohnkomplex Pas-de-Calais

Blickfang mit Regionalbezug

Mit seiner dunklen Backsteinfassade und den hellen Fensterrahmen unterscheidet sich dieser Wohnkomplex deutlich von seiner Umgebung. Dennoch erweist er der Kohleregion Pas-de-Calais seine Referenz.

 

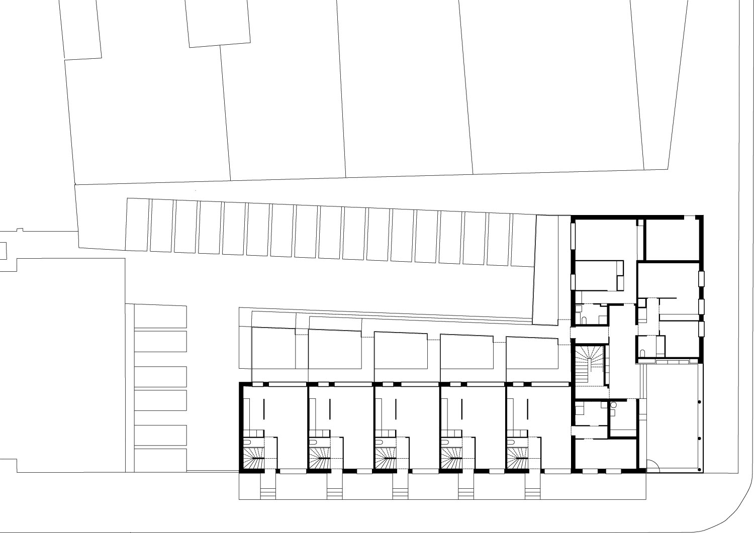
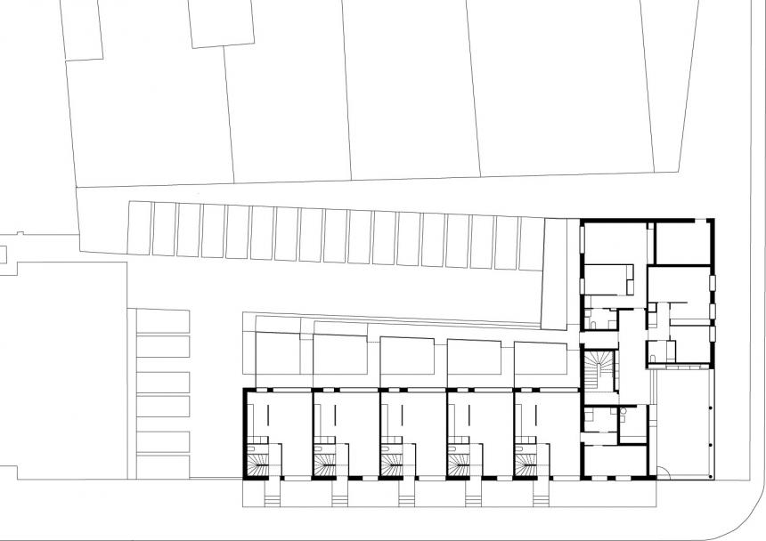
Das Projekt befindet sich am Rande von Béthune, in einem Bezirk, der an einem Programm der Nationalen Agentur für die Stadterneuerung teilnimmt. In diesem Projekt entstehen 23 „halbgemeinschaftliche“ Sozialwohnungen. Die Inspiration für diese Gestaltung beruht auf Forschungsergebnissen, die feststellten, dass an der Schnittstelle zwischen Individuum und Kollektiv sowohl durch Nachhaltigkeit als auch durch die Vorteile eigenständigen Wohnens neue Konzepte für Lebensqualität verwirklicht werden können. Es wurde versucht, eine besondere Gebäudetypologie mit sehr unterschiedlichen Elementen zu realisieren: individuelle Wohneinheiten mit Garten, Penthouse-Duplex mit gemeinsamer Terrasse, Erdgeschosswohnungen mit Garten und Panoramawohnungen, von Ein- bis hin zu Dreispännern, mit Terrassen, die den Blick auf den Glockenturm von Béthune und den Kohlebergbau am Horizont freigeben.

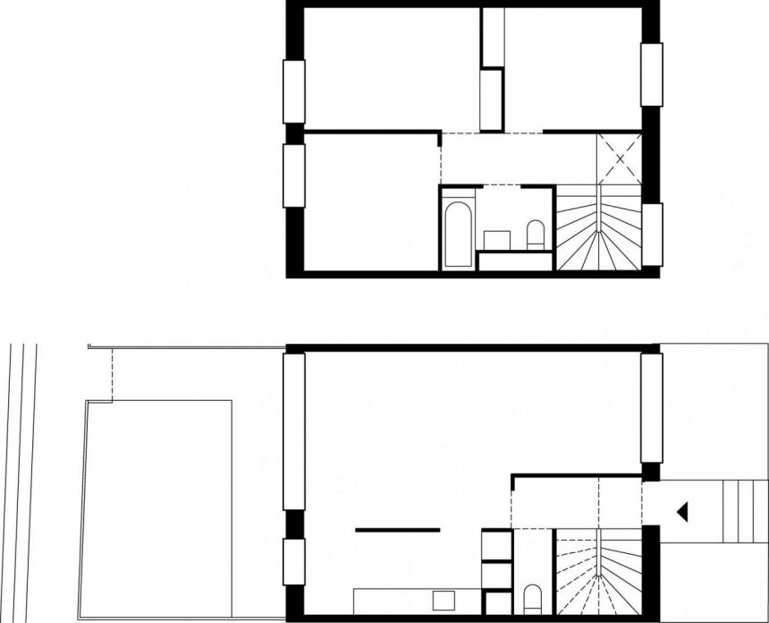
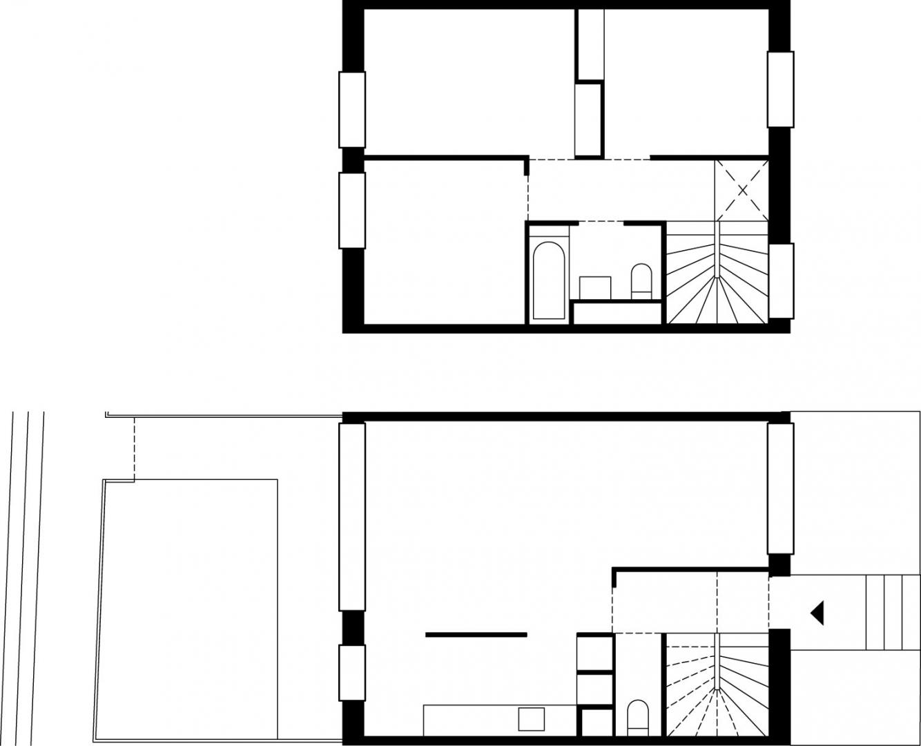
Die Anlage steht im Winkel von zwei Stadtachsen, dem Boulevard de Hollande und dem Boulevard de Varsovie. Um dem städtischen Umfeld Rechnung zu tragen, orientiert sie sich am Verlauf der Straßen und ist dort, wo diese aufeinandertreffen, erhöht. Einschnitte verleihen der Fassade Rhythmus und erzeugen private wie gemeinschaftlich genutzte Terrassen. Fünf „ineinander übergehende“ Zweifamilieneinheiten auf der unteren Ebene der Anlage und vier dieser Einheiten im oberen Stock, jeweils durch einen Durchgang verbunden, sind als „individuelle Wohneinheiten“ entlang des Boulevards de Hollande konzipiert. Entlang des Boulevards de Varsovie finden sich die „kollektiven Wohneinheiten“, Simplex-Wohneinheiten bis in den zweiten Stock und fünf Triplex-Apartments mit Doppelhöhe in den obersten Stockwerken. Auf die „Zugänge“ wurde bei der Gestaltung besonderes Augenmerk gelegt. Die Erdgeschosswohnungen befinden sich etwas über dem Niveau der Straße, um eine gewisse Intimität zu gewährleisten.

Ein kleines Landschaftsprojekt im Innenhof unterstützt diesen Ansatz. Die Haustüren der einzelnen Häuser sind mit Klingeln und Briefkästen versehen, ausladende Vordächer bieten Schutz vor der Witterung. Die baulichen Elemente leiten unmerklich über von den öffentlichen zu den privaten Bereichen, wobei der Eingangsbereich architektonisch so gestaltet ist, das die Bewohner sich beim Durchqueren der Gemeinschaftseinrichtungen zusehends „zu Hause“ fühlen. Die Fenster und Ziegelsteine wurden sorgfältig ausgewählt und verwendet. Die Außenwände sind als Doppelwände mit Beton, Isolationsmaterial und Ziegelsteinen gestaltet. Der Eingangsbereich weist Schiebetüren aus tropischem Movingui-Holz auf und nimmt einen eigenen Raum ein. Die Ausbuchtung nach draußen erweitert die bauliche Anlage und belebt die Fassaden durch die wandernden Schatten.

Der große Glasflächenanteil und die funktionalen Geländer tragen besonders zur Helligkeit und Qualität der Appartements bei. In Pas-de-Calais sind Ziegel sehr präsent. Mit der Entscheidung für dieses Material sollte eine gute Integration des Gebäudes in seinen Kontext erreicht und gleichzeitig der traditionelle Ansatz mit einem zeitgemäßen Touch neu interpretiert werden, unter anderem durch ungewöhnliche Materialkombinationen. Die Unregelmäßigkeiten des Ziegels beleben die Fassade mit vielen Lichtvariationen.

 

FRES architectes

City
Béthune, Pas-de-Calais, Frankreich
Client
Pas-de-Calais Habitat
Architect
Main architect: FRES architectes; Associate architect: KENK architecten
Architect profile
Plot size
1.395 m²
Built-up area
589 m²
Usable area
1.756 m²
Enclosed volume
7.970 m³
Construction time
2006 – 2012
Construction costs
2,8 Mio. EUR