Hochschule Ansbach Hörsaal- und Verwaltungsgebäude
Staab Architekten

KUBUS MIT LICHTUNG
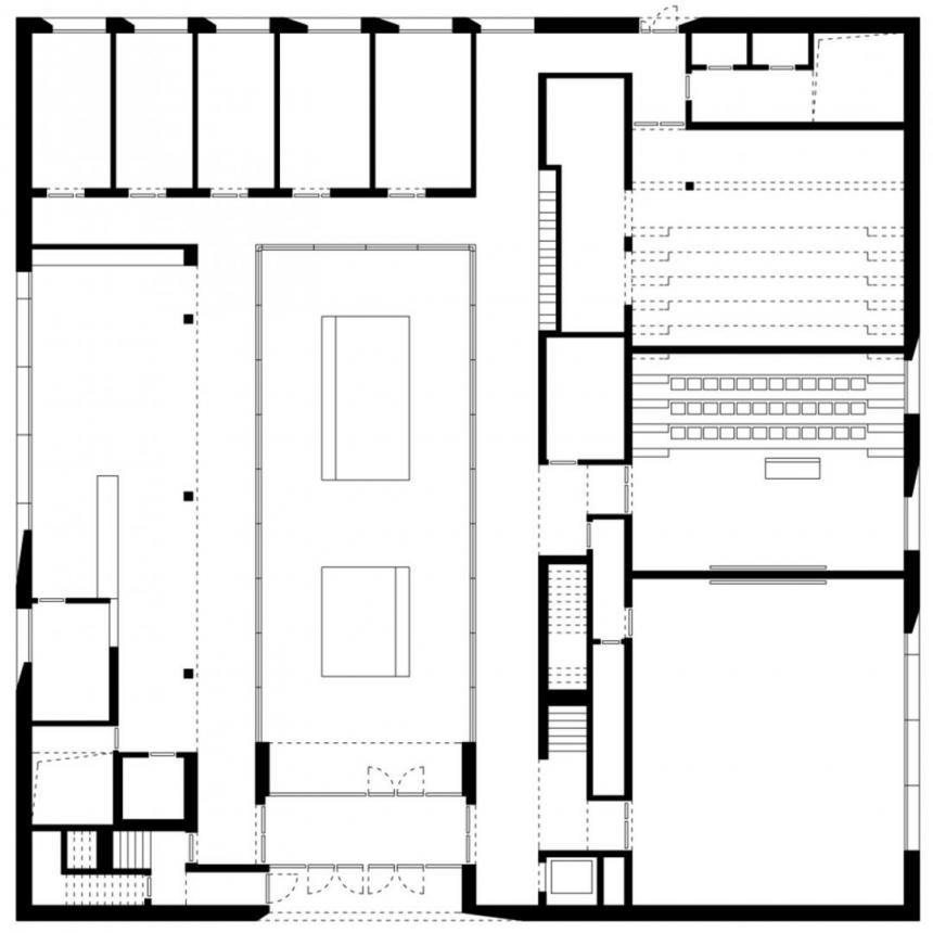
Der eigene Charakter des Gebäudes wird von außen durch die je nach Nutzung angeordneten Fenster bestimmt. Der Lichthof strukturiert im Inneren die Raumanordnung.
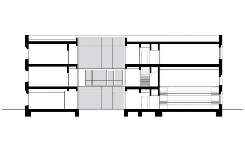
Als klare, ruhige neue Setzung auf dem Universitätsgelände hat der Neubau an allen Außenseiten im Dialog zu den bestehenden Gebäuden eine massive Lochfassade aus Ziegelstein erhalten. Die Plastizität wird durch innen bündige Fenster und tiefe Leibungen aus Metall unterstützt. Die eigentlichen Fensteröffnungen werden durch die Erfordernisse der dahinter liegenden, unterschiedlich genutzten Räume bestimmt. Über schräge Leibungsbleche, seitlich und oben, wird aus diesen funktional notwendigen Öffnungen in der vorderen Ebene der Ziegelfassade ein neues Gesamtbild erzeugt.
Der Innenhof bildet das gemeinsame Zentrum der Anlage und ist im Gegensatz zur massiven Lochfassade als Einschnitt im Gebäude raumhoch verglast. Der von außen kompakte dreigeschossige Baukörper mit quadratischem Grundriss wird durch den außermittig sitzenden Innenhof räumlich und funktional in die zwei Bereiche Verwaltung und Unterrichtsräume/Hörsaal gegliedert. Die Erschließung erfolgt auf beiden Seiten jeweils entlang der Innenhoffassaden.
Staab Architekten