Sporthalle Richard-Wagner-Grundschule

MAEDEBACH & REDELEIT ARCHITEKTEN

Sporthalle Richard-Wagner-Grundschule in Berlin

FALTTECHNIK DER DDR-MODERNE

SPORTHALLE RICHARD-WAGNER-GRUNDSCHULE 

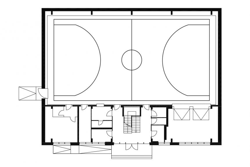
Die Sporthalle ist ein Typenprojekt, das während der 1970er- und 1980er-Jahre in der DDR vielfach eingesetzt wurde. Charakteristisch ist die Dachkonstruktion aus vorgespannten trapezförmigen Faltwerkträgern. Die früher häufig anzutreffende Silhouette verschwindet inzwischen zunehmend aus dem Stadtbild. Bei der umfassenden Sanierung kam es den Architekten darauf an, die VT-Falten – im Äußeren wie im Inneren – sichtbar zu lassen und sie nicht unter Dämmpaketen und abgehängten Decken zu verbergen. Der charakteristische Linienzug wird durch den prägnanten farbigen Dachrand betont und erlebbar gemacht.

Der Baukörper der Halle erhielt eine neue Fassade aus gelben Hartbrandklinkern, die im sogenannten römischen Verband, das heißt mit dicken Lagerfugen und trockenen Stoßfugen, vermauert wurden. Er betont die Horizontalität des Hallenbaukörpers, der auf diese Weise eine gute Basis für die bekrönende Dachlandschaft bildet. Die Stoßfugen sind nicht wirklich offen, eine Mörteltasche lässt sie lediglich unsichtbar erscheinen. 

Prägend für das Innere ist die Prallwand aus hellem Naturholz, die sich als akustisch wirksame Wandverkleidung bis unter die Decke zieht. So konnte die profilierte Decke unbekleidet und die Tragwirkung der VT-Falten lesbar bleiben.

 

MAEDEBACH & REDELEIT ARCHITEKTEN

City
Berlin, Deutschland
Client
Bezirksamt Lichtenberg von Berlin
Usable area
714 m²
Construction time
2017 – 2018