Neubau Krematorium St. Gallen
Andy Senn Architekt BSA SIA

ORT der Ruhe und Geborgenheit
Dunkelbraune Backsteine schaffen im Krematoriums-Neubau St. Gallen eine Kultur der Vertrautheit. Durch das partielle Lochmauerwerk entstehen interessante Licht- und Schattenspiele.
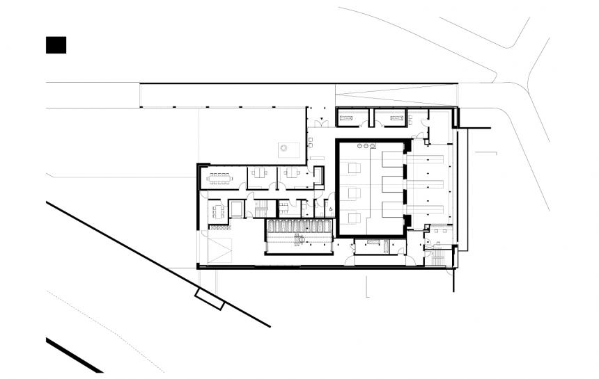
Das Grundstück liegt nordwestlich der bestehenden Anlage und ist stark von teilweise steilen Böschungen geprägt. Der Neubau fügt sich entlang dem Verlauf der nördlichen Böschungskante in das Gelände ein und wird dadurch leicht aus der Geometrie der bestehenden Urnenanlage gedreht. Als Rückgrat des Bauvolumens führt der offene Kolonnadengang zum Eingang und verbindet die Zugangsstraße mit dem Friedhof. Im Wechsel von Tageslicht und Schatten markiert er auf symbolische Weise den Übergang von außen nach innen. Über diesen offenen Kolonnadeneingang wird der Trauernde geschützt zum Eingang geleitet. Zwischen den Säulen öffnet sich der Raum jeweils zur Landschaft und bietet die Möglichkeit, sich zu sammeln und langsam und in Ruhe anzukommen. Die Wandscheiben aus Lochmauerwerk lenken den Blick und die Bewegung Richtung Eingang. In der klaren Begrenzung des hellen Empfangsraumes wirkt die Natur des begrünten Innenhofes durch die dünne Trennlinie der raumhohen Fenster sehr präsent nach. Diese Thematik des Überganges und der Trennung wird durch den Wechsel von innen und außen, geschlossen und offen, Tageslicht und Schatten in den für die Besucher zugänglichen Räumen ihrer jeweiligen Bedeutung entsprechend weitergeführt. Die Aufbahrungsräume bleiben rundum geschlossen und erhalten nur durch das Oberlicht ein Streiflicht auf die Wandfläche. Der Andachtsraum und der Kultraum sind an der Ostseite zum Friedhof hin orientiert. Durch die thermische Trennung der raumhohen Fensterfront filtert das vorgelagerte Lochmauerwerk den Lichteinfall und die Ausblicke. So entsteht im Inneren durch die Motive der Lichtzeichnungen die erforderliche sakrale Stimmung jenseits einer vorgefassten Ikonographie. Der Übergang zum Ofenraum rückt den Akt der Verbrennung ins Zentrum.
Die skulpturale Gebäudeform tritt im Grünraum der Friedhofsanlage mit einer Haut aus dunkelbraunen Klinkersteinen in Erscheinung. Ein Material das mit seinen erdigen Farbnuancen und der Kontinuität seiner kleinteiligen Fügung für jede Kultur eine Vertrautheit ausstrahlt. Die Wände wurden außen im flämischen Verband gemauert und partiell als Lochmauerwerk ausgebildet. In der Kombination von Perforation, Ornament und Textur entsteht eine Ziegeloberfläche mit interessanten Licht- und Schattenspielen. Im Innenraum wird dasselbe Sichtmauerwerk in den öffentlich zugänglichen Räumen verwendet. So bilden die umgrenzenden Mauern einen einheitlichen, monolithischen Raum mit einer erfassbaren und ablesbaren Oberfläche. Zusammen mit den natur- belassenen Materialien des Holzbodenbelags, der lehmverputzten Decke und den Holzfenstern wirkt der Raum als ein Ort der Ruhe und Geborgenheit. Der Standort für das neue Krematorium ähnelt heute einer terrassierten Waldwiese, in die sich der Neubau einfügt. Die Zugangswege greifen armförmig ost- und westseitig in die Landschaft und verbinden sich mit dem bestehenden Wegenetz. Der behindertengerechte Zugang von Ost und von West erfolgt fliessend zur bestehenden Umgebung. Trotz enger Platzverhältnisse und der Vielzahl von technischen Anforderungen wird auch die neue Umgebung durch den parklandschaftlichen Charakter geprägt und erhält durch den Einbezug der Landschaft eine neue Großzügigkeit.
Andy Senn Architekt BSA SIA