LT House

Tropical Space

LT House

Spiel der Elemente

Ein kleines Haus in einem neuen Wohngebiet im Long Thanh-Bezirk: Die Gemeinschaftsbereiche dieses Einfamilienhauses sind so konzipiert, dass dort Wind, Schatten und Sonne erfahrbar werden.

 

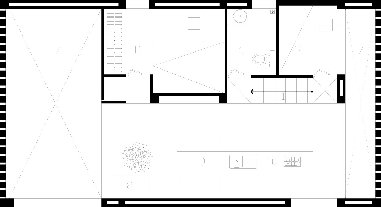
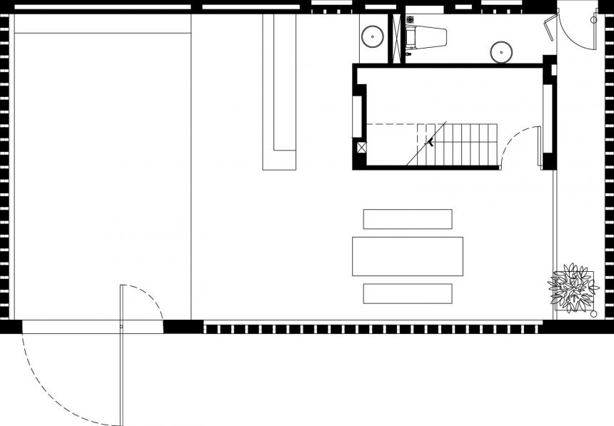
Angesichts der beschränkten Flächenmaße wollten die Architekten die privaten Bereiche auch gemeinschaftlich nutzbar gestalten, um mehr Platz zu schaffen. Die Einrichtung ist schlicht und einfach herzustellen. Um Kosten zu sparen, hat der Besitzer die Materialien eingekauft und die Möbel alle selbst hergestellt. Damit konnten die Kosten in diesem Bereich deutlich gesenkt werden. Vorgarten und Hinterhof dienen als Pufferräume, um die von außen kommende Hitze zu reduzieren. Der Vorgarten ist ein Bereich zum Entspannen, beispielsweise beim Morgenkaffee. Hier treffen Wind, Sonnenlicht und der Schatten der Ziegelmauer aufeinander. Das Erdgeschoss ist ein Multifunktionsbereich. Es wird sowohl für Treffen mit Freunden als auch künftig für ein kleines Café genutzt.

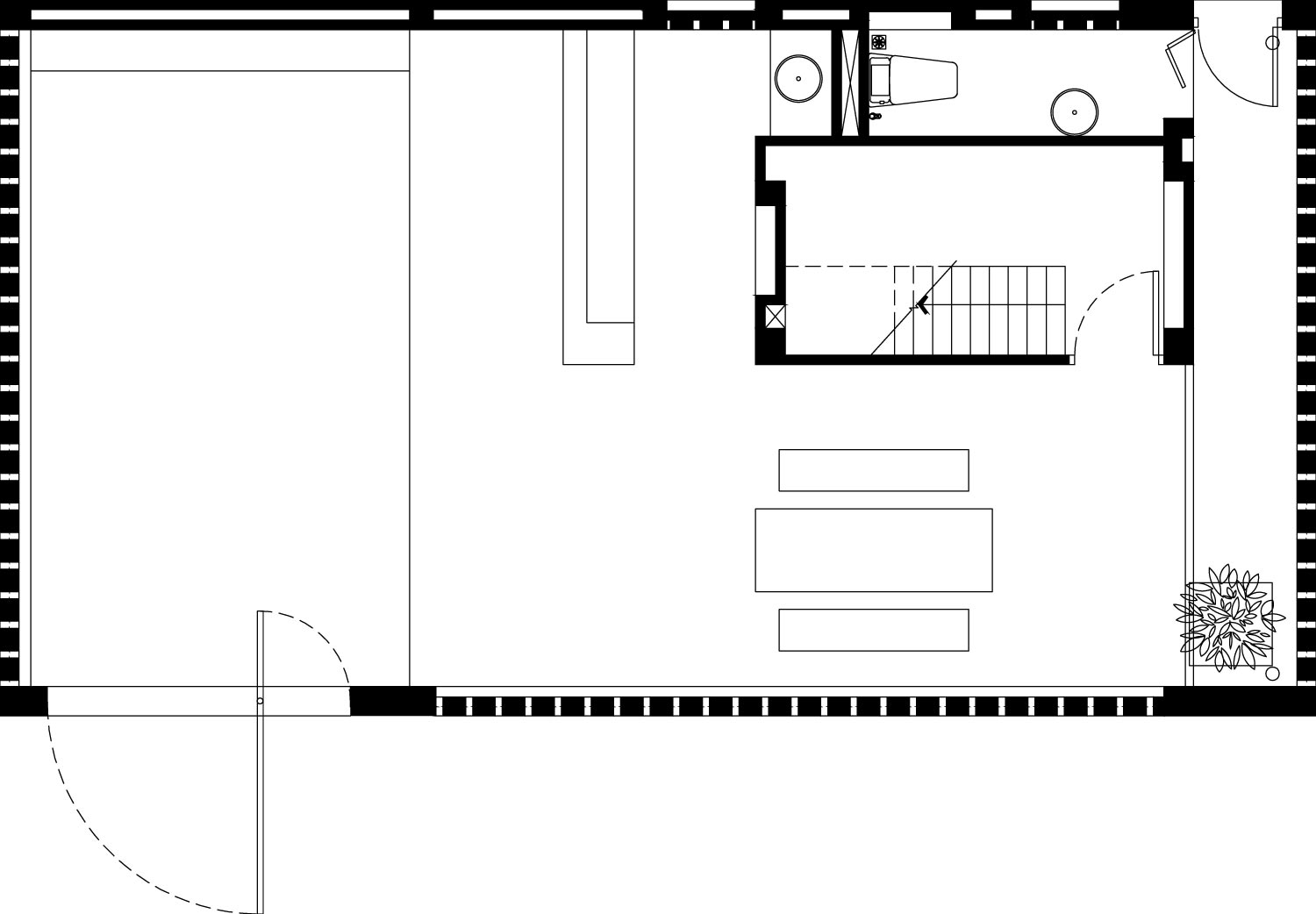
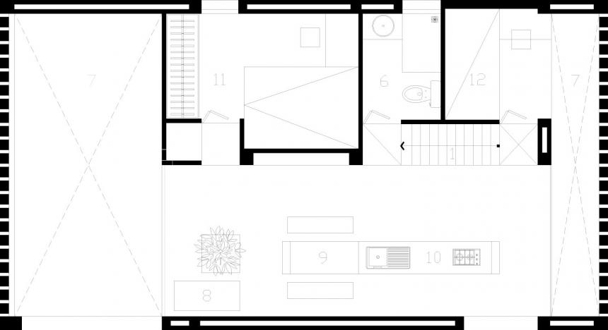
Im Zwischengeschoss befinden sich zwei Schlafzimmern (eines für das Paar, eines für das künftige Baby) sowie die Küche und der Esstisch. Dieser Gemeinschaftsraum ist so konzipiert, dass die Benutzer auf dem Weg vom Erdgeschoss zur Treppe und zu diesem Gemeinschaftsraum sowohl eine Brise als auch Schatten und Sonnenlicht spüren. LT House ist Teil eines Forschungsprojekts über erschwinglichen Wohnraum vom vietnamesischen Architektenbüro Tropical Space. Das Team hat es sich zum Ziel gesetzt, in ganz Vietnam schöne und angenehme Lebensräume für Arbeitnehmer mit mittlerem Einkommen zu schaffen.


Tropical Space

City
Vietnam
Client
Nguyen Hai Long, Tran Thi Ngu Ngon
Architect profile
Plot size
208 m²
Built-up area
66 m²
Usable area
108 m²
Enclosed volume
396 m³