K House
Sauerbruch Hutton

ELEGANTES FARBENSPIEL
Die farbige Außenhaut aus teilglasiertem Klinkermauerwerk gibt dem Haus eine gewisse Gleichzeitigkeit von formaler Strenge und spielerischer Leichtigkeit.
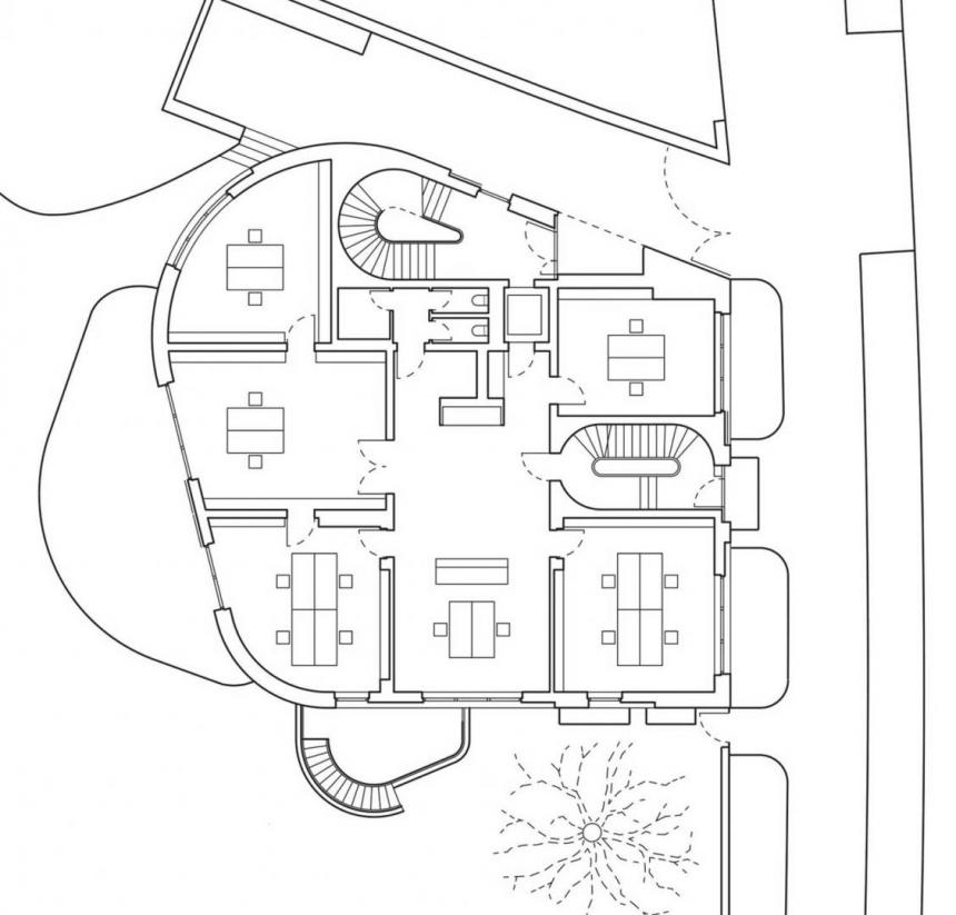
Das K House liegt in einem Villenviertel am Rande des Englischen Gartens in München. Das Haus beherbergt eine großzügige zweigeschossige Wohnung für die Besitzerin und ihre umfangreiche Sammlung zeitgenössischer Kunst, ein Pied-à-terre im Penthouse sowie Büroräume im Erdgeschoss und ersten Obergeschoss. Auf der Basis eines klassischen Villengrundrisses ist jedes der fünf Geschosse individuell angelegt, sodass in Proportion, Atmosphäre und Orientierung sehr unterschiedliche Räume für Arbeiten, Wohnen, Ausstellen und gesellschaftliche Anlässe innerhalb der geschlossenen Kubatur des Hauses zusammengefasst sind. Die Variation des Grundrissthemas ist auch in der Ansicht des Hauses erkennbar: Die symmetrisch angelegte, klassisch-strenge Straßenfassade zeigt auf den zweiten Blick subtile Abweichungen, während die plastischen Seiten- und Rückfassaden des Hauses die unterschiedlichen Innenraumsituationen klar erkennen lassen.
Eine farbige Außenhaut aus teilglasiertem Mauerwerk verleiht dem Bau plastische Einheitlichkeit bei farbiger Differenzierung. Das Haus ist mittels kontrastierenden Tonscherben zunächst in eine helle obere und eine dunkle untere Zone gegliedert. Bei näherer Betrachtung tritt die Wirkung der farbigen Glasuren in den Vordergrund, die dem Volumen eine Oberfläche unbestimmter Räumlichkeit und Materialität verleihen. Das frei komponierte Farbspiel mit der scheinbar unendlichen Zahl gleicher Klinker unterstützt eine gewisse Gleichzeitigkeit von formaler Strenge und spielerischer Leichtigkeit.
Sauerbruch Hutton